Variant 38-139
Ausbaustufe

Bei unserer QNG+-Line können Sie zwischen unterschiedlichen Ausbaustufen wählen. Definieren Sie selbst, welche Leistungen Hanse Haus übernehmen soll und welche Arbeiten Sie in Eigenleistung erbringen möchten.
Variant 38-139
Wände

Wenn Sie die Maler- und Spachtelarbeiten in Ihrem Fertighaus selbst übernehmen möchten, haben Sie mit dem Materialpaket Wände die Möglichkeit, das benötigte Material in den passenden Mengen ganz bequem zu Ihrem Grundstück liefern zu lassen.
- Kein Material benötigtWir besorgen das Material für den Ausbau (Wände) selbst.
Bitte beachten Sie: Hierdurch ist keine QNG-Zertifizierung möglich!
Variant 38-139
Böden

Das Materialpaket Bodenbeläge enthält die Bodenbeläge für Ihr Haus, die Sie bei der Bemusterung ausgewählt haben, und zusätzlich das Material, das Sie zum Verlegen benötigen.
- Keine BodenbelägeWir besorgen Bodenbeläge und Zubehör selbst.
Bitte beachten Sie: Hierdurch ist keine QNG-Zertifizierung möglich!
Variant 38-139
Türen

Auch Ihre in der Bemusterung ausgewählten Innentüren bringen wir Ihnen gerne vorbei – zusammen mit dem benötigten Material für den Einbau.
- Keine TürenWir besorgen unsere Türen und das Zubehör selbst.
Bitte beachten Sie: Für eine QNG-Zertifizierung (und somit die höchstmögliche Fördersumme) sind alle drei Materialpakete notwendig!
Variant 38-139
Nachhaltigkeit

Die Häuser aus unserer QNG+-Line können mit einer Photovoltaik-Anlage und einer Dämmung unterhalb der Fundamentplatte geplant werden.
Diese Maßnahmen sorgen nicht nur für eine günstige, nachhaltige und umweltfreundliche Energieversorgung, sondern ermöglicht auch die QNG-Zertifizierung Ihres Hauses. Um von der höchsten Förderstufe der KfW-Neubauförderung zu profitieren, wird diese Zertifizierung benötigt.
- QNG-FörderpaketWir möchten ein Förderpaket, das alles beinhaltet, was für eine QNG-Zertifizierung und somit für die höchste Förderkreditsumme notwendig ist:
1. "Qualitätssiegel Nachhaltiges Gebäude (QNG)"
2. PV-Anlage mit 7,36 KWp und 6,3 kWh Batterie
3. Dämmung 140 mm unter der Fundamentplatte24.963 €24.963 € - PV-AnlageWir möchten eine PV-Anlage mit Speicher bestehend aus:
1. 7,36 KWp Photovoltaik-Anlage
2. 6,3 kWh Batteriesystem
ohne zusätzliche Dämmung unter der Fundamentplatte und keine QNG-Zertifizierung15.750 €15.750 € - Dämmung unterhalb der FundamentplatteWir möchten eine 140 mm Dämmung unter der Fundamentplatte zur Erfüllung der Vorgaben eines Energieeffizienzhauses 40 oder höher
ohne PV-Anlage und keine QNG-Zertifizierung.6.213 €6.213 € - StandardausführungWir benötigen keine PV-Anlage, keine zusätzliche Dämmung und keine QNG-Zertifizierung.
Bitte beachten: Dadurch ist es nicht möglich ein Energieeffizienzhaus 40 zu bauen und Sie können nicht von der höchsten Förderstufe der KfW-Neubauförderung profitieren.
Variant 38-139
Dämmung unterhalb der Fundamentplatte

Die Effizienzhaus-Stufe ist ein Maßstab für die Energieeffizienz von Wohnhäusern, die am Gesamtenergiebedarf und an der Wärmedämmung festgemacht wird. Die Effizienzhaus-Stufe 40 ist Voraussetzung für die Neubau-Förderung der KfW.
Variant 38-139
Dachanpassungen

Um Ihr Variant 38-139 ganz nach Ihren Vorstellungen zu gestalten, haben Sie optional die Möglichkeit, die Dachüberstände zu vergrößern oder Sonderdacheindeckungen zu wählen. Die Bilder dienen der Veranschaulichung.
-
Standarddach & DacheindeckungWir wählen die Standard-Dacheindeckung Frankfurter Pfanne Classic Novo Matt in einer Farbe laut Muster und den standardmäßigen Dachüberstand. -
SonderdacheindeckungWir entscheiden uns für die Sonderdacheindeckung (Aktion) mit Taunus Pfanne Star matt statt der Standard-Dacheindeckung.400 €400 € -
Vergrößerung der DachüberständeWir möchten die Dachüberstände auf ca. 80 cm vergrößern.5.840 €5.840 € -
Größere Dachüberstände und SonderdacheindeckungWir bevorzugen, beide Optionen zu kombinieren:
- Sonderdacheindeckung (Aktion) mit Taunus Pfanne Star matt
- Vergrößerung der Dachüberstände auf ca. 80 cm.6.240 €6.240 €
Variant 38-139
Schornstein
Sie möchten Ihr Eigenheim mit einem Kaminofen ausstatten? Dann gibt es hier den passenden Schornstein dazu.
- Kein SchornsteinWir planen keinen Kaminofen und benötigen keinen Schornstein.
- SchornsteinEinzügiger Schornstein Schiedel SIKP18 für Festbrennstoff mit verklinkertem oder verputztem Kaminkopf, Zuluftführung über Ringspalt im Schornstein ca. 297 cm² Gesamtfläche.
(Rahmenbedingung:
An diesem Schornstein kann nur eine bauseitig raumluftunabhängige, vom DIBt zertifizierte Feuerstätte (kein Pelletofen) angeschlossen werden, wenn
- die wirksame Höhe < 10 m
- der Abgasmassenstrom < 14,2 g/s
- die Nennwärmeleistung < 10 KW
ist.)4.650 €4.650 € - DifferenzdruckwächterDifferenzdruckwächter (Leda Luc) bei Kombination von Lüftungsanlagen und Schornstein.1.363 €1.363 €
- Erweiterungen1 Lichtkuppeldachfenster, 2 Standroste ca. 88 cm und 1 Trittrost für Schornsteinfeger.940 €940 €
Variant 38-139
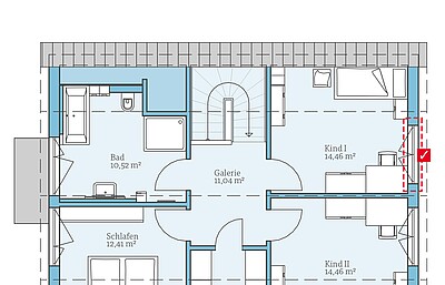
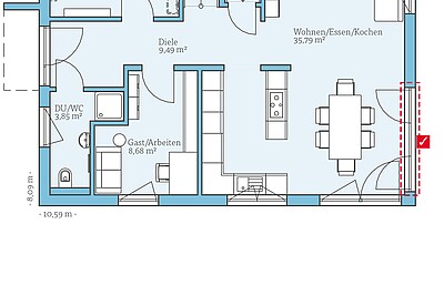
Fensteroptionen im Erdgeschoss

Praktische Grundrisse und eine helle, freundliche Wohnatmosphäre – das ist unsere QNG+-Line. Wer noch mehr Sonne ins Haus lassen möchte, kann optional zusätzliche Fenster einplanen.
-
Keine Anpassungen im ErdgeschossWir behalten die Größe und die Anzahl der Fenster bei, die im Grundriss eingeplant sind. -
Zusätzliches Fenster im WohnbereichWir möchten ein zusätzliches Fenster im Wohnbereich einplanen.2.337 €2.337 € -
Größeres Fenster in der KücheWir möchten das im Standard-Grundriss eingeplante Fenster in der Küche vergrößern.830 €830 € -
Größere Terrassentür im Essbereich IWir möchten die im Standard-Grundriss eingeplanten Terrassentüren im Essbereich vergrößern.2.316 €2.316 € -
Größere Terrassentür im Essbereich IIWir möchten eine größere Terrassentür im Essbereich einbauen.688 €688 €
Variant 38-139
Fensteroptionen im Dachgeschoss
Praktische Grundrisse und eine helle, freundliche Wohnatmosphäre – das ist unsere QNG+-Line. Wer noch mehr Sonne ins Haus lassen möchte, kann optional zusätzliche Fenster einplanen.
-
Keine Anpassungen im DachgeschossWir behalten die Größe und die Anzahl der Fenster bei, die im Grundriss eingeplant sind. -
Bodentiefes Fenster im Kinderzimmer IWir möchten ein größeres Fenster im Kinderzimmer einplanen.527 €527 € -
Bodentiefes Fenster im Kinderzimmer IIWir möchten ein größeres Fenster im 2. Kinderzimmer einplanen.527 €527 €
Variant 38-139
WC

Bereits im Standard ist das Gäste-WC des Variant 38-139 sehr gut ausgestattet. Besonders für Familien mit Kindern kann aber eine zweite Duschmöglichkeit im Haus eine große Bereicherung sein.
-
Standard-Gäste-WCWir möchten das Gäste-WC im Erdgeschoss so planen, wie es im Standard-Grundriss vorgesehen ist (ohne Dusche). -
Dusch-Bad statt Gäste-WC im ErdgeschossWir wählen das Dusch-Bad bestehend aus:
- Standard-Duschwanne
- Standard-Duschabtrennung
- Waschtisch
- Hänge-WC
- 8 m² Standard-Wandfliesen4.339 €4.339 €
Variant 38-139
Badezimmer

Bereits im Standard ist das Badezimmer des Variant 38-139 sehr gut ausgestattet. Besonders für Familien mit Kindern kann aber eine noch geräumigere Dusche eine große Bereicherung sein.
- Standard-Badezimmer im DachgeschossWir möchten das Badezimmer so planen, wie es im Standard-Grundriss vorgesehen ist.
-
Größere Dusche im Bad im DachgeschossWir entscheiden uns für eine größere Dusche.459 €459 €
Variant 38-139
Küche

Sie möchten beim Hausbau so viel wie möglich aus einer Hand? Dann kümmern wir uns gerne auch um Ihre Küche.
-
Keine Küche benötigtWir besorgen unsere Küche selbst. -
Küche gemäß BeschreibungWir möchten eine Küchenzeile mit:
- einer Länge von 4,25 m
- einer Kochinsel B 1,85 × T 1,10 m
- 43 Fronten (matt/glänzend) zur Auswahl
- Markenelektrogeräten von Bosch
LIEFERUNG & MONTAGE13.500 €13.500 €
Variant 38-139
Treppe

Bei unseren Häusern aus der QNG+-Line ist im Standard eine offene Buchentreppe enthalten. Gegen Aufpreis stehen Ihnen weitere Optionen zur Gestaltung Ihrer Treppe offen. Optional kann für mehr Stauraum eine Abstellkammer unter der Treppe eingeplant werden. Die Bilder dienen zur Veranschaulichung.
-
StandardtreppeWir wählen die im Standard enthaltene offene Treppe. -
Geschlossene StufenWir wählen statt der offenen Treppe eine Innentreppe mit Setzstufen.539 €539 € -
TreppenabgangsverkleidungWir wählen geschlossene Stufen und eine Standard-Treppenabgangsverkleidung unterhalb der Innentreppe.3.426 €3.426 € -
Tür unter TreppeWir wählen eine geschlossene Treppe mit Treppenabgangsverkleidung und einer Tür (nur in der Ausbaustufe Schlüsselfertig möglich).3.779 €3.779 €
Variant 38-139
Treppenfarbe

Damit sich die Treppe perfekt in Ihren Einrichtungsstil einfügt, können Sie sich optional für eine gebeizte Treppe entscheiden und aus zehn verschiedenen Farben wählen.
-
Standard BuchenholzWir entscheiden uns für eine Vollholztreppe aus keilgezinktem Buchenholz mit transparenter Oberflächenversiegelung. -
Gebeizte TreppeWir wählen eine gebeizte Innentreppe nach Mustervorlage (10 Farben zur Auswahl).863 €863 €
Variant 38-139
Smarthome

Optional können Sie Ihr Fertighaus mit einem Smarthome-System von Loxone ausstatten. So sorgen Sie für noch mehr Wohnkomfort, Sicherheit und eine besonders effiziente Energienutzung in Ihrem Haus. Die Bilder dienen der Veranschaulichung.
Bereits im Standard sind im Erdgeschoss zehn elektronische Rolladenantriebe mit je einer Schaltersteuerung enthalten.
-
Loxone Paket: Rollladen/RaffstoreWir wählen das Loxone-Paket, mit dem sich Rollläden/Raffstores intelligent steuern lassen.5.941 €5.941 € -
Loxone Paket: Rollladen/Raffstore + Heizung, LichtWir wählen das Loxone-Paket, mit dem sich Rollläden/Raffstores, Heizung und Licht intelligent steuern lassen.13.298 €13.298 € -
Kein SmarthomeWir haben kein Interesse an einem Smarthome-Paket und entscheiden uns für die Standard-Ausstattung wie oben beschrieben.
Variant 38-139
Sicherheitspakete

Zuhause möchte man sich rundum sicher fühlen. Deshalb werden für unsere Fenster und Terrassentüren standardmäßig einbruchhemmende Bauteile nach DIN EN 1627 eingesetzt, die alle mindestens die Widerstandsklasse RC1N besitzen, die Terrassentüren im EG sogar RC2.
Optional können Sie sich auch bei den Fenstern für einen noch stärkeren Einbruchschutz nach der Widerstandsklasse RC2 nach DIN EN 1627-1630 (Sicherheitsglas P4A mit Flügelrahmen verklebt, mit abschließbarer Griffolive) entscheiden.
-
Standard-Fenster & -TürenWir möchten Standard-Fenster und -Türen wie oben beschrieben einplanen. -
R2C für Fenster im ErdgeschossWir entscheiden uns bei den Fenstern im Erdgeschoss für die Widerstandsklasse R2C.1.036 €1.036 € -
R2C für Fenster im DachgeschossWir entscheiden uns bei den Fenstern im Dachgeschoss für die Widerstandsklasse R2C.1.273 €1.273 € -
R2C für Fenster im Erd- und DachgeschossWir entscheiden uns bei den Fenstern im Erd- und Dachgeschoss für die Widerstandsklasse R2C.2.309 €2.309 €
Variant 38-139
Technikraum

Der Hauswirtschafts- und Technikraum im Variant 38-139 ist so geplant, dass genug Platz für ein praktisches Ausgussbecken zur Verfügung steht. Die Bilder dienen der Veranschaulichung.
- Kein Ausgussbecken im TechnikraumWir benötigen kein Ausgussbecken im Technikraum.
-
Ausgussbecken im Technikraum1 Stück Stahlausgussbecken inkl. Warm- und Kaltwasseranschluss im Technikraum.435 €435 €
Variant 38-139
Hauseingangsbereich

Wie wäre es mit einem Haustürvordach oder einem Haustür-Seitenteil für Ihr Fertighaus? Es schützt den Hauseingang vor Regen, während es gleichzeitig zu einem optischen Highlight wird. Die Bilder dienen der Veranschaulichung.
-
Keine Anpassungen im EingangsbereichWir möchten den Hauseingang ohne Haustürvordach und ohne den integrierten Briefkasten wie im Standard planen. -
HaustürvordachWir möchten ein Haustürvordach, 2,45 m x 1,00 m mit Seitenwand.5.201 €5.201 € -
Haustürvordach mit BriefkastenWir möchten ein Haustürvordach, 2,45 m x 1,00 m mit Seitenwand inkl. Briefkasten in der Wandnische.5.884 €5.884 € -
Haustür-Seitenteilca. 50cm breit. Kunststoff farbig foliert.1.491 €1.491 €