Villa 124
Ausbaustufe

Bei unserer QNG+-Line können Sie zwischen unterschiedlichen Ausbaustufen wählen. Definieren Sie selbst, welche Leistungen Hanse Haus übernehmen soll und welche Arbeiten Sie in Eigenleistung erbringen möchten.
Villa 124
Wände

Wenn Sie die Maler- und Spachtelarbeiten in Ihrem Fertighaus selbst übernehmen möchten, haben Sie mit dem Materialpaket Wände die Möglichkeit, das benötigte Material in den passenden Mengen ganz bequem zu Ihrem Grundstück liefern zu lassen.
- Kein Material benötigtWir besorgen das Material für den Ausbau (Wände) selbst.
Bitte beachten Sie: Hierdurch ist keine QNG-Zertifizierung möglich!
Villa 124
Böden

Das Materialpaket Bodenbeläge enthält die Bodenbeläge für Ihr Haus, die Sie bei der Bemusterung ausgewählt haben, und zusätzlich das Material, das Sie zum Verlegen benötigen.
- Keine BodenbelägeWir besorgen Bodenbeläge und Zubehör selbst.
Bitte beachten Sie: Hierdurch ist keine QNG-Zertifizierung möglich!
Villa 124
Türen

Auch Ihre in der Bemusterung ausgewählten Innentüren bringen wir Ihnen gerne vorbei – zusammen mit dem benötigten Material für den Einbau.
- Keine TürenWir besorgen unsere Türen und das Zubehör selbst.
Bitte beachten Sie: Für eine QNG-Zertifizierung (und somit die höchstmögliche Fördersumme) sind alle drei Materialpakete notwendig!
Villa 124
Dachform

Walmdach oder Satteldach? Bei unseren Häusern mit zwei Vollgeschossen aus der QNG+-Line können Sie aus diesen beiden Dachformen Ihren Favoriten wählen.
Villa 124
Nachhaltigkeit (Satteldach)

Die Häuser aus unserer QNG+-Line können mit einer Photovoltaik-Anlage und einer Dämmung unterhalb der Fundamentplatte geplant werden.
Diese Maßnahmen sorgen nicht nur für eine günstige, nachhaltige und umweltfreundliche Energieversorgung, sondern ermöglicht auch die QNG-Zertifizierung Ihres Hauses. Um von der höchsten Förderstufe der KfW-Neubauförderung zu profitieren, wird diese Zertifizierung benötigt.
- QNG-FörderpaketWir möchten ein Förderpaket, das alles beinhaltet, was für eine QNG-Zertifizierung und somit für die höchste Förderkreditsumme notwendig ist:
1. "Qualitätssiegel Nachhaltiges Gebäude (QNG)"
2. PV-Anlage mit 7,2 KWp und 6,3 kWh Batterie
3. Dämmung 140 mm unter der Fundamentplatte24.475 €24.475 € - PV-AnlageWir möchten eine PV-Anlage mit Speicher bestehend aus:
1. 7,2 KWp Photovoltaik-Anlage
2. 6,3 kWh Batteriesystem
ohne zusätzliche Dämmung unter der Fundamentplatte und keine QNG-Zertifizierung16.150 €16.150 € - StandardausführungWir benötigen keine PV-Anlage, keine zusätzliche Dämmung und keine QNG-Zertifizierung.
Bitte beachten: Dadurch ist es nicht möglich ein Energieeffizienzhaus 40 zu bauen und Sie können nicht von der höchsten Förderstufe der KfW-Neubauförderung profitieren.
Villa 124
Nachhaltigkeit (Walmdach)

Die Häuser aus unserer QNG+-Line können mit einer Photovoltaik-Anlage und einer Dämmung unterhalb der Fundamentplatte geplant werden.
Diese Maßnahmen sorgen nicht nur für eine günstige, nachhaltige und umweltfreundliche Energieversorgung, sondern ermöglicht auch die QNG-Zertifizierung Ihres Hauses. Um von der höchsten Förderstufe der KfW-Neubauförderung zu profitieren, wird diese Zertifizierung benötigt.
- QNG-FörderpaketWir möchten ein Förderpaket, das alles beinhaltet, was für eine QNG-Zertifizierung und somit für die höchste Förderkreditsumme notwendig ist:
1. "Qualitätssiegel Nachhaltiges Gebäude (QNG)"
2. PV-Anlage mit 6,75 KWp und 6,5 kWh Batterie
3. Dämmung 140 mm unter der Fundamentplatte24.145 €24.145 € - PV-AnlageWir möchten eine PV-Anlage mit Speicher bestehend aus:
1. 6,75 KWp Photovoltaik-Anlage
2. 6,3 kWh Batteriesystem
ohne zusätzliche Dämmung unter der Fundamentplatte und keine QNG-Zertifizierung15.820 €15.820 € - StandardausführungWir benötigen keine PV-Anlage, keine zusätzliche Dämmung und keine QNG-Zertifizierung.
Bitte beachten: Dadurch ist es nicht möglich ein Energieeffizienzhaus 40 zu bauen und Sie können nicht von der höchsten Förderstufe der KfW-Neubauförderung profitieren.
Villa 124
Dämmung unterhalb der Fundamentplatte (Satteldach)

Wir möchten eine 140 mm Dämmung unter der Fundamentplatte zur Erfüllung der Vorgaben eines Energieeffizienzhauses 40 oder höher
ohne PV-Anlage und keine QNG-Zertifizierung.
Villa 124
Dämmung unterhalb der Fundamentplatte (Walmdach)
Wir möchten eine 140 mm Dämmung unter der Fundamentplatte zur Erfüllung der Vorgaben eines Energieeffizienzhauses 40 oder höher
ohne PV-Anlage und keine QNG-Zertifizierung.
- Energieeffizienzhaus 40Wir möchten eine 140 mm Dämmung unter der Fundamentplatte zur Erfüllung der Vorgaben eines Energieeffizienzhauses 40 oder höher.5.461 €5.461 €
- Standard-BodenplatteWir möchten ein Haus auf einer Fundamentplatte errichten, um die Werte eines Energieeffizienzhaus 55 zu erreichen.
Villa 124
Dacheindeckung

Um Ihre Villa 124 ganz nach Ihren Vorstellungen zu gestalten, haben Sie optional die Möglichkeit, die Dachüberstände zu vergrößern oder Sonderdacheindeckungen zu wählen. Die Bilder dienen der Veranschaulichung.
-
Standard DacheindeckungWir wählen die Standard-Dacheindeckung Frankfurter Pfanne Classic Novo Matt in einer Farbe laut Muster. -
SonderdacheindeckungWir entscheiden uns für die Sonderdacheindeckung (Aktion) mit Taunus Pfanne Star matt statt der Standard-Dacheindeckung.400 €400 €
Villa 124
Dachüberstände

Das Dach prägt den Charakter eines Hauses. Um Ihre Villa 124 ganz nach Ihren Vorstellungen zu gestalten, haben Sie optional die Möglichkeit, die Dachüberstände zu vergrößern. Die Bilder dienen der Veranschaulichung.
-
StandarddachWir wählen den standardmäßigen Dachüberstand. -
Vergrößerung der DachüberständeWir möchten die Dachüberstände auf ca. 80 cm vergrößern.6.880 €6.880 €
Villa 124
WC

Bereits im Standard ist das Gäste-WC in der Villa 124 sehr gut ausgestattet. Besonders für Familien mit Kindern kann aber eine zweite Duschmöglichkeit im Haus eine große Bereicherung sein.
-
Standard-Gäste-WCWir möchten das Gäste-WC im Erdgeschoss so planen, wie es im Standard-Grundriss vorgesehen ist (ohne Dusche). -
Dusch-Bad statt Gäste-WC im ErdgeschossWir wählen das Dusch-Bad bestehend aus:
- Standard-Duschwanne 90/90 cm
- Standard-Duschabtrennung
- Waschtisch
- Hänge-WC
- 8 m² Standard-Wandfliesen4.572 €4.572 € -
Dusch-Bad mit großer Dusche statt Gäste-WC im ErdgeschossWir wählen das Dusch-Bad bestehend aus:
- Sonder-Duschwanne 120/90 cm
- Duschabtrennung
- Waschtisch
- Hänge-WC
- 8 m² Standard-Wandfliesen4.955 €4.955 €
Villa 124
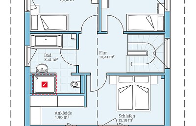
Badezimmer

Bei unserer Villa 124 aus der QNG+-Line haben Sie die Möglichkeit, die Ankleide zu einer Schranknische umzuplanen und das Bad zu vergrößern. Und wie wäre es mit einer besonders geräumigen Dusche?
-
Standard-Badezimmer im ObergeschossWir möchten das Badezimmer so planen, wie es im Standard-Grundriss vorgesehen ist. -
Größere Dusche im Bad im ObergeschossWir entscheiden uns für eine größere Dusche (120/100 cm).383 €383 € -
Vergrößertes Bad im ObergeschossWir möchten das Bad auf ca. 12,5 m² vergrößern. -
Vergrößertes Bad und größere DuscheWir möchten das Bad auf ca. 12,5 m² vergrößern und entscheiden uns für eine größere Dusche.383 €383 €
Villa 124
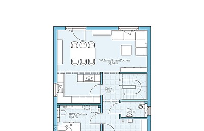
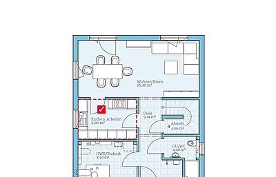
Küchenbereich

Offene Küche oder geschlossene Küche? Oder lieber Platz schaffen für ein Gäste- und Arbeitszimmer? Das Erdgeschoss unserer QNG+-Line 124 lässt sich flexibel nach Ihren Wünschen planen.
-
Standard-KüchengrundrissWir wählen die offene Küche, wie sie im Standard-Grundriss eingeplant ist. -
Geschlossene KücheWir wählen die geschlossene Küche statt des offen geplanten Wohn-, Ess- und Kochbereichs.2.551 €2.551 € -
Zusätzliches Arbeits-/Gästezimmer statt KücheWir wählen das zusätzliche Arbeits- bzw. Gästezimmer im Erdgeschoss anstelle der Küche.3.402 €3.402 €
Villa 124
Küche

Sie möchten beim Hausbau so viel wie möglich aus einer Hand? Dann kümmern wir uns gerne auch um Ihre Küche.
-
Keine Küche benötigtWir besorgen unsere Küche selbst. -
Küche gemäß BeschreibungWir möchten eine Küchenzeile mit:
- einer Länge von 4,25 m
- einer Kochinsel B 1,85 × T 1,10 m
- 43 Fronten (matt/glänzend) zur Auswahl
- Markenelektrogeräten von Bosch
LIEFERUNG & MONTAGE13.500 €13.500 €
Villa 124
Zusätzliches Fenster im EG

Praktische Grundrisse und eine helle, freundliche Wohnatmosphäre – das ist unsere QNG+-Line. Wer noch mehr Sonne ins Haus lassen möchte, kann optional zusätzliche Fenster einplanen.
-
Kein zusätzliches Fenster im ErdgeschossWir behalten die Anzahl der Fenster bei, die im Standard-Grundriss eingeplant ist. -
Zusätzliches Fenster im EssbereichWir möchten ein zusätzliches Fenster im Essbereich einplanen.1.451 €1.451 €
Villa 124
Zusätzliche Fenster im OG

Praktische Grundrisse und eine helle, freundliche Wohnatmosphäre – das ist unsere QNG+-Line. Wer noch mehr Sonne ins Haus lassen möchte, kann optional zusätzliche Fenster einplanen.
-
Kein zusätzliches Fenster im ObergeschossWir behalten die Anzahl der Fenster bei, die im Standard-Grundriss eingeplant ist. -
Zusätzliches Fenster im FlurWir möchten ein zusätzliches Fenster im Flur über der Geschosstreppe einplanen.1.755 €1.755 € -
Zusätzliches Fenster Kind IWir möchten im Raum Kind I ein zusätzliches Fenster einplanen.1.451 €1.451 € -
Zusätzliches Fenster Kind IIWir möchten im Raum Kind II ein zusätzliches Fenster einplanen.1.755 €1.755 € -
Zusätzliches Fenster im Bad/in der AnkleideWir möchten im Bad bzw. in der Ankleide (abhängig davon, ob das Bad vergrößert wurde) ein zusätzliches Fenster einplanen.1.389 €1.389 €
Villa 124
Treppe

Bei unseren Häusern aus der QNG+-Line ist im Standard eine offene Buchentreppe enthalten. Gegen Aufpreis stehen Ihnen weitere Optionen zur Gestaltung Ihrer Treppe offen. Optional kann für mehr Stauraum eine Abstellkammer unter der Treppe eingeplant werden. Die Bilder dienen zur Veranschaulichung.
-
StandardtreppeWir wählen die im Standard enthaltene offene Treppe. -
Geschlossene StufenWir wählen statt der offenen Treppe eine Innentreppe mit Setzstufen.540 €540 € -
TreppenabgangsverkleidungWir wählen geschlossene Stufen und eine Standard-Treppenabgangsverkleidung unterhalb der Innentreppe.3.043 €3.043 € -
Tür unter TreppeWir wählen eine geschlossene Treppe mit Treppenabgangsverkleidung und einer Tür (nur in der Ausbaustufe Schlüsselfertig möglich).3.409 €3.409 €
Villa 124
Treppenfarbe

Damit sich die Treppe perfekt in Ihren Einrichtungsstil einfügt, können Sie sich optional für eine gebeizte Treppe entscheiden und aus zehn verschiedenen Farben wählen.
-
Standard BuchenholzWir entscheiden uns für eine Vollholztreppe aus keilgezinktem Buchenholz mit transparenter Oberflächenversiegelung. -
Gebeizte TreppeWir wählen eine gebeizte Innentreppe nach Mustervorlage (10 Farben zur Auswahl).863 €863 €
Villa 124
Smarthome

Optional können Sie Ihr Fertighaus mit einem Smarthome-System von Loxone oder einer intelligenten Rollladensteuerung von Homematic IP ausstatten. So sorgen Sie für noch mehr Wohnkomfort, Sicherheit und eine besonders effiziente Energienutzung in Ihrem Haus. Die Bilder dienen der Veranschaulichung.
Bereits im Standard sind im Erdgeschoss zehn elektronische Rolladenantriebe mit je einer Schaltersteuerung enthalten.
-
Homematic IP-Paket: RollladenWir wählen die intelligente Rollladensteuerung von Homematic IP für bis zu zehn elektrische Rollläden.1.940 €1.940 € -
Loxone Paket: Rollladen/RaffstoreWir wählen das Loxone-Paket, mit dem sich Rollläden/Raffstores intelligent steuern lassen.5.941 €5.941 € -
Loxone Paket: Rollladen/Raffstore + Heizung, LichtWir wählen das Loxone-Paket, mit dem sich neben den Rollläden/Raffstores auch Heizung und Licht intelligent steuern lassen.13.298 €13.298 € -
Kein SmarthomeWir haben kein Interesse an einem Smarthome-Paket und entscheiden uns für die Standard-Ausstattung wie oben beschrieben.
Villa 124
Sicherheitspakete

Zuhause möchte man sich rundum sicher fühlen. Deshalb werden für unsere Fenster und Terrassentüren standardmäßig einbruchhemmende Bauteile nach DIN EN 1627 eingesetzt, die alle mindestens die Widerstandsklasse RC1N besitzen, die Terrassentüren im EG sogar RC2.
Optional können Sie sich auch bei den Fenstern für einen noch stärkeren Einbruchschutz nach der Widerstandsklasse RC2 nach DIN EN 1627-1630 (Sicherheitsglas P4A mit Flügelrahmen verklebt, mit abschließbarer Griffolive) entscheiden.
-
Standard-Fenster und -TürenWir möchten Standard-Fenster und -Türen wie oben beschrieben einplanen. -
R2C für Fenster im ErdgeschossWir entscheiden uns bei den Fenstern im Erdgeschoss für die Widerstandsklasse R2C.913 €913 € -
R2C für Fenster im ObergeschossWir entscheiden uns bei den Fenstern im Obergeschoss für die Widerstandsklasse R2C.1.169 €1.169 € -
R2C für Fenster im Erd- und ObergeschossWir entscheiden uns bei den Fenstern im Erd- und Obergeschoss für die Widerstandsklasse R2C.2.082 €2.082 €
Villa 124
Hauseingangsbereich

Wie wäre es mit einem Haustürvordach für Ihr Fertighaus? Es schützt den Hauseingang vor Regen, während es gleichzeitig zu einem optischen Highlight wird. Die Bilder dienen der Veranschaulichung.
-
Keine Anpassungen im EingangsbereichWir möchten den Hauseingang ohne Haustürvordach und ohne den integrierten Briefkasten wie im Standard planen. -
HaustürvordachWir möchten ein Haustürvordach, 2,45 m x 1,00 m mit Seitenwand.5.540 €5.540 € -
Haustürvordach mit BriefkastenWir möchten ein Haustürvordach, 2,45 m x 1,00 m mit Seitenwand inkl. Briefkasten in der Wandnische.6.216 €6.216 €


