Monat für Monat ein Traumhaus: Mit unserem neuen Format "Haus des Monats" stellen wir Ihnen jeden Monat ein besonderes Highlight vor – transparent, fair und perfekt auf Ihre Wünsche zugeschnitten.
Den Anfang macht im November unser QNG⁺-Line Variant 38-139 – ein modernes, energieeffizientes Zuhause, das wirklich keine Wünsche offenlässt.
Verwirklichen Sie Ihr persönliches Traumhaus
Das kompakte Einfamilienhaus vereint clevere Architektur mit optimaler Raumnutzung – perfekt für Eltern mit zwei Kindern.
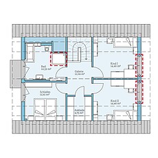
Erdgeschoss
- Heller Wohn- und Essbereich mit offener Küche
 - Büro/Gästezimmer
 - Gäste-WC (optional mit Duschmöglichkeit)
 - optional Abstellraum unter der Treppe
 - optional L-förmiges Haustürvordach und -Seitenteil
 - HWR/Technik (optional im Keller)
 
Dachgeschoss
- Zwei Kinderzimmer (optional mit bodentiefen Fenstern)
 - Elternschlafzimmer
 - Ankleidezimmer
 - Modernes Bad mit Badewanne und Dusche
 
Technik
- Effiziente Luft-Wasser-Wärmepumpe inkl. kontrollierter Be- und Entlüftungsanlage mit Wärmerückgewinnung
 - Optional Photovoltaikanlage
 - Optional Effizienzhaus 40/40 Plus/QNG-Zertifizierung
 - Netzwerkverkabelung CAT 7
 
Weitere Planungsoptionen
 Abstellraum unter der Treppe, L-förmiges Haustürvordach und -Seitenteil, Dusche im Gäste-WC, größere Fenster und Terrassentür, größerer Dachüberstand, größere Dusche, bodentiefe Fenster:
Eigenleistung oder einzugsbereit
 Der Preis für Ihr Variant 38-139 aus der QNG+-Line ist abhängig davon, für welche Ausbaustufe und welche Planungs- und Ausstattungsoptionen Sie sich entscheiden:
Ausbauhaus – ab 242.294 €
 Ideal für Bauherren, die mit Eigenleistungen bares Geld sparen möchten und dennoch auf die bewährte Hanse Haus Qualität setzen. Fundierte handwerkliche Erfahrung der Bauherren ist aber notwendige Voraussetzung, um aus dem Ausbauhaus ein Wohlfühl-Zuhause zu schaffen.
Technikfertig – ab 297.912 €
 Zusätzlich zu den beim Ausbauhaus erfolgten Leistungen wird der Estrich, die Elektro-, Wasser-/Abwasser- und Heizungsinstallation von Hanse Haus ausgeführt. Das Verfliesen der Bäder und die Montage der Sanitärobjekte sind noch nicht erfolgt.
Fast fertig – ab 317.864 €
 Alle Gewerke wie beim Ausbauhaus und beim technikfertigen Haus sind erledigt. Zusätzlich sind bereits die Bäder inklusive Sanitärobjekten, Wand- und Bodenfliesen fertig. Nur Maler-/Spachtelarbeiten, Bodenbeläge und Innentüren sind beim fast fertigen Haus von Hanse Haus Eigenleistung.
Schlüsselfertig – ab 352.510 €
 Komplett nach Ihren Wünschen einzugsbereit fertiggestellt. Nach der Schlüsselübergabe fehlen nur noch die passende Küche und Ihre individuelle Hauseinrichtung.
Förderung und Finanzierung
 Mit der KfW-Förderung „Wohneigentum für Familien“ (WEF) haben Familien mit geringerem oder mittlerem Einkommen die Möglichkeit, zinsvergünstigte Kredite für den Hausbau zu beantragen.
Durch die vergünstigten Zinssätze können Familien beim Bau eines klimafreundlichen Hauses bis zu 42.500 Euro im Vergleich zu nicht staatlich geförderten Krediten sparen.
Wenn der Neubau zusätzlich mit dem Qualitätssiegel Nachhaltiges Gebäude (QNG) zertfiziert wird, steigt der mögliche Kreditbetrag und die Ersparnis erhöht sich auf rund 55.000 Euro.
MERKMALE
  
| DACHFORM | Satteldach | 
| DACHNEIGUNG | 38 ° | 
| KNIESTOCK | 120 cm | 
| WOHNFLÄCHE | 122,57 m2 | 
| GRUNDFLÄCHE | 139,29 m2 | 
| ANZAHL GESCHOSSE | 1,5 | 
Der Traum vom Eigenheim beginnt jetzt
Fordern Sie jetzt unverbindlich und kostenfrei alle Informationen zu Ihrem Traumhaus inklusive Grundrissen und Preisen an. Füllen Sie einfach das Formular aus und entdecken Sie Ihr zukünftiges Zuhause!











