Alle unter einem Dach: So macht Familienleben Spaß
Das Doppelhaus 176 schafft auf seinen zwei Vollgeschossen und im zusätzlich nutzbaren Dachgeschoss ein wahrhaft großzügiges Raumangebot. Der alltagstaugliche und familienfreundliche Grundriss bietet mit 176 m² vielfältige Nutzungsmöglichkeiten.
Zusätzlich zu den Wohnräumen im Erdgeschoss und den Schlafräumen im Obergeschoss stehen in diesem Doppelhaus im Dachgeschoss zwei weitere Räume zur Verfügung, die sich z. B. als drittes Kinderzimmer, Arbeits-/Gästezimmer oder als Hobbyraum nutzen lassen.
Optional kann der Hausentwurf mit einem Haustürvordach erweitert werden, das den Eingangsbereich vor Wind und Wetter schützt.
| Merkmale | |
|---|---|
| Dachform | Satteldach |
| Dachneigung | 35° |
| Kniestock | Fußpfette |
| Wohnfläche je Einheit | 152,62 m² |
| Grundfläche je Einheit | 174,63 m² |
| Anzahl Geschosse | 2,5 |
Beispiel
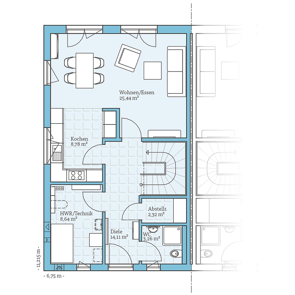
Grundrisse
Bekommen Sie durch die Grundrisse einen Eindruck von diesem Haus. Wir zeigen Ihnen unsere Planungsvorschläge, die natürlich auf Wunsch individuell umgeplant werden können.


Fordern Sie ganz unverbindlich & kostenfrei unser Fertighaus-Katalog mit ausführlichen Hinweisen zum Unternehmen sowie alle Hausentwürfe oder Bauleistungs- und Ausstattungsbeschreibungen an. Darüber hinaus erhalten Sie in unserer Aktionsbroschüre die Preise für unsere Aktionshäuser.












