Discover tiny house floor plans
Which Tiny House suits you best?Particularly compact and with all rooms on one level? Or with a cosy sleeping gallery under the roof? Our architects have designed some well thought-out tiny house floor plans with different sizes of living space for you, which score points with practical planning details and plenty of living comfort. Browse through the lovingly designed floor plans, which are sorted in ascending order of overall size, and plan the Tiny House of your dreams with us.
Tiny house floor plan with 39.5 m² of floor space
Tiny house floor plan with 51 m² of floor space
Tiny house floor plan with 53 m² of floor space
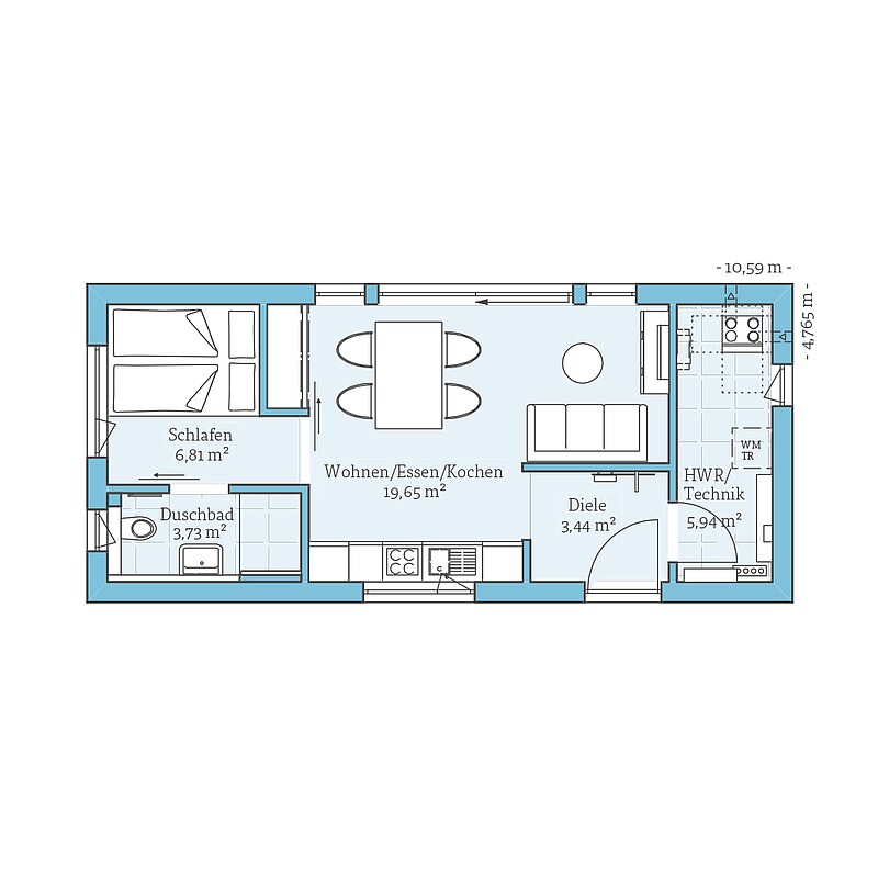
Tiny house floor plan with 57 m² of floor space
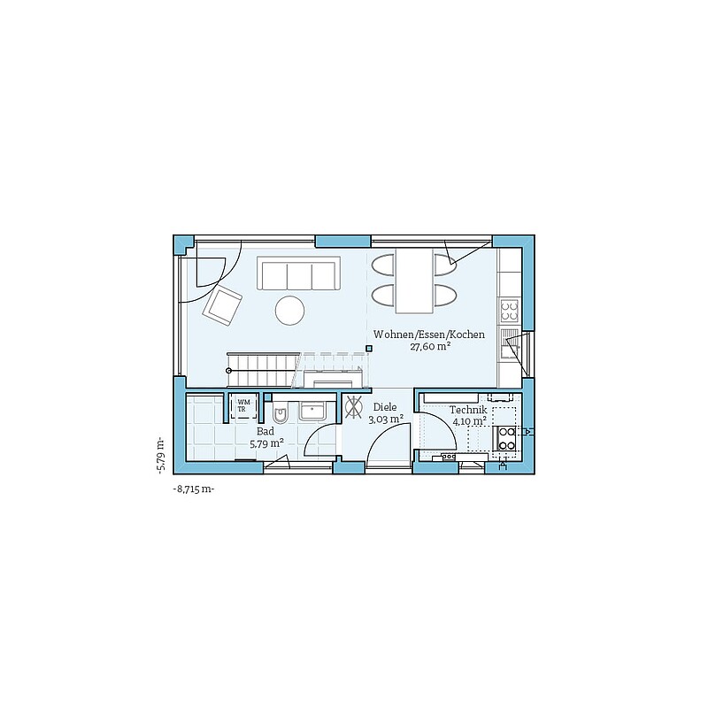
Tiny house floor plan with 59.5 m² of floor space
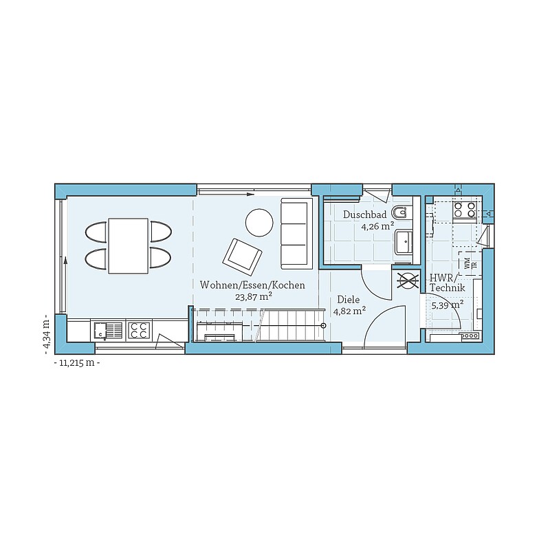
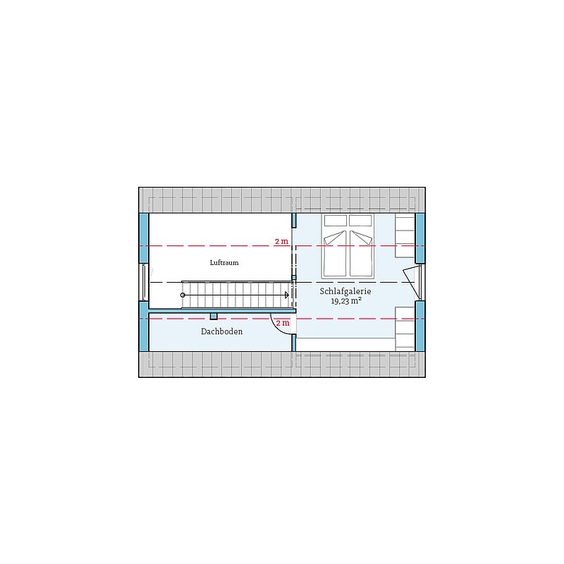
Tiny house floor plan with 67 m² of floor space


Floor plans for Tiny Houses
A Tiny House is much smaller than an average detached house, so clever details are even more important when planning the floor plan. Nevertheless, many of our eleven tips for the perfect floor plan also apply here.
From the optimal orientation of the house to possible regulations from the development plan and suitability for everyday use - here you will find everything you need to know about your tiny house floor plan.
Important information about our Tiny House floor plans
With the small living space of Tiny Houses, a well thought-out floor plan plays a particularly important role in creating a practical, friendly home that is suitable for everyday use. A perfect floor plan suits you and your ideas of living in a tiny house, fits in with the conditions on your property and makes optimum use of its orientation. It is also compatible with any specifications that apply to your building area.
In the Tiny Houses from Hanse Haus, a utility room is part of the floor plan - the compact houses are designed so that you can live comfortably in them all year round. In addition to the all-round thermal insulation, this also includes the utility room, which provides space for the house and heating technology.
Our six tiny house designs, which can serve as a planning basis for you, show what a cleverly planned floor plan can look like. Our colleagues will be happy to advise you and work with you to design the ideal floor plan for your tiny house.
At Hanse Haus, you have the option of adapting our example floor plans individually or designing a completely free floor plan for your Tiny House at no additional planning costs.
As inspiration for you, our experienced architects have designed six floor plans with different living concepts. Regardless of whether you want a sleeping gallery under the roof, a second floor or a separate study - together with our advisors, you can plan exactly the Tiny House that suits your ideas and in which you feel completely at home.
- Think about what is important to you in your tiny house and how much space you want before you start planning the floor plan. It is also best to include your everyday life and possible changes in your considerations.
The first cornerstone for planning your Tiny House floor plan may be the development plan that applies to your property. You should therefore find out in good time whether there are any requirements that you need to fulfil.
In the next step, the plot itself plays an important role: adapting the Tiny House floor plan to the location of the plot and its orientation provides a lot of additional living comfort in the Tiny House. It is therefore best to get an overview of what you should include in the planning before you start.
It's also best to think about how much space you need in your tiny house and what you want for your future home. Then all you really need to do is make an appointment with a Hanse Haus consultant in your area: We will be happy to advise you and work with you to find the ideal floor plan for your Tiny House.
All Tiny House floor plans share the special feature that they are planned on a very small living space. Cooking, eating, living, sleeping, bathroom and utility room are accommodated in our Tiny Houses on 39 to 60 square metres. Clever planning details ensure that the available space is utilised sensibly, while comfort and a friendly living atmosphere are not lost:
- Large windows, for example, let in plenty of light and visually enlarge the interior.
- The sleeping area can be located in an alcove that can be separated by a sliding door, as in our Tiny 39 design, or in a cosy gallery under the roof - as in our Tiny 53, for example.
- Storage space can be created through skilful planning, for example with cupboard niches. In our Tiny 59, for example, the space under the stairs and under the roof is also used as storage space.
- Spreading the living areas over two floors, as in our Tiny 67, creates a lot of space with a particularly small footprint.
Request without obligation & free of charge our prefabricated house catalog with detailed information about the company as well as all house designs or construction performance and equipment descriptions. In addition, you will find the prices for our campaign houses in our campaign brochure.












