Alltagstauglich mit hellem Wohnambiente
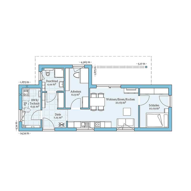
Die Raumaufteilung des Tiny 57 zeigt sich alltagstauglich und praktisch. Das Schlafzimmer und das Arbeits- oder Gästezimmer sind in zwei separaten, klar abgetrennten Räumen untergebracht. Der offene Wohn-, Ess- und Kochbereich nimmt das Zentrum des 57 Quadratmeter Hauses ein. Von dort aus gelangt man auf die überdachte Terrasse, die das Tiny House um einen geschützten Sitzplatz im Freien erweitert.
Während das Wohn- und das Schlafzimmer bis zum First des Pultdachs offen sind und besonders luftig wirken, lässt sich über der Diele und dem Arbeitszimmer zusätzlicher Stauraum unter dem Dach schaffen.
| Merkmale | |
|---|---|
| Dachform | Pultdach |
| Dachneigung | 15° |
| Wohnfläche | 57,00 m² |
| Grundfläche | 57,00 m² |
Anbau
Möglichkeiten
- Überdachter Freisitz
- Carport
Beispiel
Grundrisse
Bekommen Sie durch die Grundrisse einen Eindruck von diesem Haus.


Fordern Sie ganz unverbindlich & kostenfrei unser Fertighaus-Katalog mit ausführlichen Hinweisen zum Unternehmen sowie alle Hausentwürfe oder Bauleistungs- und Ausstattungsbeschreibungen an. Darüber hinaus erhalten Sie in unserer Aktionsbroschüre die Preise für unsere Aktionshäuser.










