Wohnen und Arbeiten als perfektes Duo –
durchdacht geplant, flexibel nutzbar
Kein Pendeln mehr
Sparen Sie Zeit und Stress – das Büro ist direkt im Haus.
Ruhe & Fokus
Privatsphäre fürs Arbeiten – Rückzug ganz ohne Störung.
Mitwachsende Räume
Flexibel nutzen – für Arbeit, Familie, Gäste oder zur Vermietung.

Wenn Zuhause mehr kann
Ob ein ruhiges Büro im Haus, eine flexible Einliegerwohnung mit separatem oder gemeinsamem Eingang oder ein komplett abgetrennter Anbau: Mit Hanse Haus gestalten Sie Ihr Zuhause so, dass Wohnen und Arbeiten ideal zusammenpassen – heute und in Zukunft.
Infopaket anfordern Haus-Assistent starten

Welche Wohnlösung passt zu Ihrem Alltag?
Drei Wege, ein Ziel
Vergleichen Sie unsere Konzepte und finden Sie heraus, welche Lösung am besten zu Ihren Wohn- und Arbeitsbedürfnissen passt.
| Lösung | Für wen geeignet? | Trennung möglich? | Später nutzbar als |
|---|---|---|---|
| Büro im Haus | Home Office | ✖ integriert | Gäste, Hobby, Kind |
| ELW – gemeinsamer Eingang | Familien, Flexibilität | △ teilweise getrennt | Gäste, Pflege, Büro |
| ELW – getrennter Eingang | Selbstständige, Praxis | komplett getrennt | Büro, Praxis, Miete |
Drei Konzepte, die Wohnen und Arbeiten clever verbinden
Wir zeigen Ihnen drei Hausbeispiele, die exemplarisch zeigen, wie vielseitig Wohnen und Arbeiten bei Hanse Haus geplant werden kann – ob integriert, mit gemeinsamem Zugang oder als klar getrennte Einheit. Und das Beste: Jedes Haus lässt sich individuell an Ihre Wünsche anpassen.
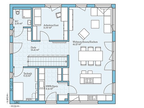
Büro im Haus
#1
Platz für Fokus – direkt im eigenen Zuhause
Dieses Haus zeigt perfekt, wie entspannt das Arbeiten im eigenen Zuhause funktionieren kann.
Ein separates Arbeitszimmer liegt gut erreichbar im Erdgeschoss – direkt neben der Diele und mit Zugang zum Gäste-WC. Ideal, wenn man Home Office, Selbstständigkeit oder flexible Arbeitsmodelle unter einem Dach unterbringen will, ohne auf Ruhe und Struktur zu verzichten.
Und wenn das Leben sich verändert? Dann wird daraus einfach ein Gästezimmer oder ein Raum für die Familie.
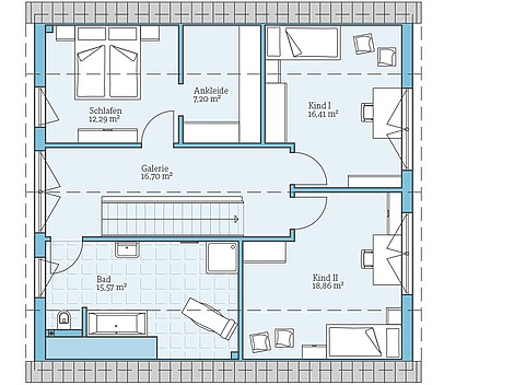
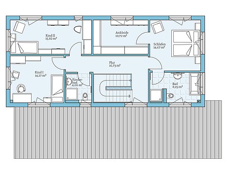
Flexibel mit einem Eingang – aber zwei Bereichen
Dieses Haus zeigt, wie flexibel Wohnen und Arbeiten unter einem Dach gestaltet werden kann – selbst bei nur einem Eingang.
Die Einliegerwohnung ist direkt vom gemeinsamen Eingangsbereich aus erreichbar und lässt sich wunderbar als Praxis, Büro oder Rückzugsort für das Arbeiten nutzen. Gleichzeitig bleibt genug Abstand zum restlichen Wohnbereich, sodass beides nebeneinander funktionieren kann .
Später auch ideal für Gäste, Familie oder zur Vermietung.

Arbeiten in der Einliegerwohnung mit eigenem Eingang
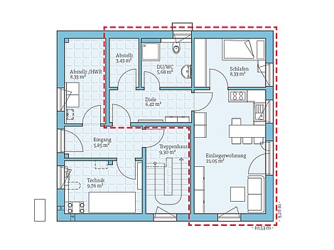
#3
Getrennt vom Alltag – ideal für Kunden und Termine
Dieses Haus zeigt, wie Wohnen und Arbeiten ganz klar voneinander getrennt werden können – ohne Kompromisse.
Die Einliegerwohnung liegt im Untergeschoss und hat einen eigenen Eingang. Perfekt für alle, die beruflich regelmäßig Besuch bekommen oder ihre Arbeit bewusst vom Familienalltag trennen möchten. Der komplett ausgestattete Bereich bietet alles, was man braucht: Küche, Bad, Wohn- und Arbeitsfläche – ganz autark.
Und wenn sich die Pläne ändern? Dann wird daraus eine kleine Wohnung zur Vermietung oder ein Rückzugsort für Angehörige.

Arbeiten im Anbau – ganz ohne Kompromisse
Dieses Haus zeigt, wie ideal sich Arbeiten und Wohnen voneinander trennen lassen – räumlich und gedanklich.
Der separate Anbau mit eigenem Eingang bietet perfekte Bedingungen für alle, die beruflich regelmäßig Kunden oder Patienten empfangen oder einfach absolute Ruhe brauchen, um konzentriert zu arbeiten. Und nach Feierabend? Einfach die Tür schließen – und im Haupthaus in den Privatmodus wechseln.
Ob Büro, Praxis oder kleine Wohnung: Der Anbau lässt sich vielseitig nutzen und wächst flexibel mit dem Leben mit.

In wenigen Klicks zur passenden Hauslösung
- > 38.600 zufriedene Hanse Haus-Bauherren
- 13. Mal in Folge: fairster Fertighausanbieter
- Ausgezeichnetes Preis-Leistungs-Verhältnis

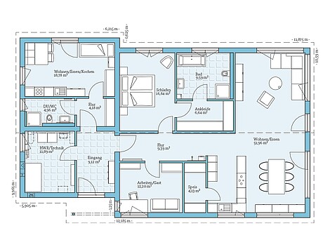
Bungalow mit integriertem Praxisbereich
Ein Blick in diesen Bungalow zeigt, wie Hanse Haus das Wohnen und Arbeiten zuhause möglich macht – mit Raum für heute und Ideen für morgen.
So gelingt das Wohnen und Arbeiten unter einem Dach
Ja! Ob als Gästezimmer, Rückzugsort für die Familie oder vermietbare Einheit – unsere Lösungen sind flexibel geplant und lassen sich mit der Zeit anpassen.
Je nach Wunsch mit gemeinsamem oder separatem Eingang, eigener Küche und Bad. Wir beraten Sie individuell, welche Variante zu Ihrem Grundstück und Alltag passt.
Je nach Bundesland und Nutzung (z. B. barrierefreie ELW oder energetische Bauweise) sind Förderungen möglich – wir unterstützen Sie gern bei der Recherche.
Ja. In Kombination mit einer separaten Einheit und eigenem Eingang sind auch berufliche Nutzungen mit Kunden möglich.
Viele Hanse-Häuser lassen sich flexibel anpassen – auch mit Arbeitszimmer, ELW oder Anbau. Sprechen Sie uns an, wir finden gemeinsam die passende Lösung.
Vom ersten Beratungsgespräch bis zur Schlüsselübergabe begleitet Sie ein persönliches Team. So entsteht Ihr Zuhause Schritt für Schritt – stressfrei und durchdacht.

Fordern Sie ganz unverbindlich unser Fertighaus-Katalogpaket an – mit Hausentwürfen, Bauleistungs- und Ausstattungsbeschreibungen sowie hilfreichen Informationen rund um das Bauen mit Hanse Haus. Inklusive: Aktionsbroschüre mit aktuellen Preisen für unsere Aktionshäuser.



















