Haus mit Einliegerwohnung: Grundrisse entdecken
Welche Möglichkeiten gibt es, eine Einliegerwohnung in Ihr neues Zuhause zu integrieren? Und welche davon passt am besten zu Ihren Wünschen und Ihrem Grundstück? Um Ihnen einen ersten Überblick zu geben, haben unsere Architekten Beispiel-Entwürfe für Sie vorbereitet, von denen Sie sich inspirieren lassen können. Nutzen Sie diese Vorschläge als Grundlage für Ihr individuell geplantes Haus mit Einliegerwohnung oder setzen Sie mit uns völlig frei Ihre Vorstellungen um.
Grundrisse Haus mit Einliegerwohnung im Anbau entdecken
Die folgenden Grundrisse zeigen, wie eine Einliegerwohnung in einem eingeschossigen Anbau geplant werden kann. Besonders bei Häusern ohne Keller ist diese Variante sehr beliebt. Ein großer Vorteil ist die räumliche Trennung von Haupt- und Einliegerwohnung. Auch im Garten lässt sich leicht ein eigener Bereich für beide Parteien schaffen. Mit dem Anbau muss der Grundriss des Haupthauses gegenüber einem herkömmlichen Einfamilienhaus nur minimal angepasst werden.
Haus mit Einliegerwohnung: Grundrisse mit 160 m² Grundfläche
Haus mit Einliegerwohnung: Grundrisse mit 186 m² Grundfläche

Grundrisse Haus mit Einliegerwohnung im Erdgeschoss entdecken
Die folgenden Grundrisse zeigen, wie sich eine Einliegerwohnung direkt in den Baukörper integrieren lässt – eine gute Lösung für Planungen ohne Keller, bei denen kein Anbau gewünscht oder möglich ist. Die zweite Wohneineheit wird im Erdgeschoss untergebracht und kann trotzdem einen eigenen Eingang erhalten. Die Vorteile: Ein kompakter Baukörper ohne Anbau reduziert den Wärmeverlust. Außerdem ist die Erweiterung des Hauptgrundrisses meist günstiger als ein Anbau.
Haus mit Einliegerwohnung: Grundrisse mit 181 m² Grundfläche
Haus mit Einliegerwohnung: Grundrisse mit 209 m² Grundfläche
Haus mit Einliegerwohnung: Grundrisse mit 211 m² Grundfläche
Haus mit Einliegerwohnung: Grundrisse mit 212 m² Grundfläche
Haus mit Einliegerwohnung: Grundrisse mit 232 m² Grundfläche

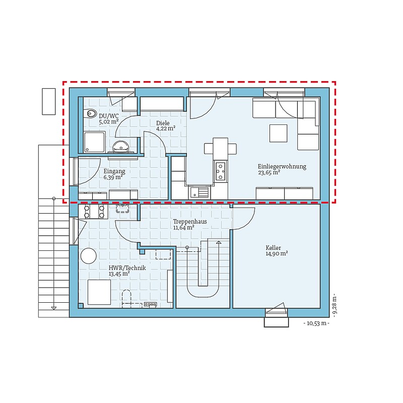
Grundrisse Haus mit Einliegerwohnung im Keller entdecken
Die folgenden Grundrisse zeigen, wie eine Einliegerwohnung im Keller eines Einfamilienhauses mit Hanglage untergebracht werden kann. So lässt sich der Keller, der auf Grundstücken mit Gefälle oft sowieso notwendig ist, sinnvoll nutzen und zusätzlicher Wohnraum mit viel natürlichem Licht aus bis zu drei Richtungen schaffen. Der Vorteil: das Haupthaus und die Einliegerwohnung sind räumlich getrennt und können mit eigenen Eingängen geplant werden.
Haus mit Einliegerwohnung: Grundrisse mit 243 m² Grundfläche
Haus mit Einliegerwohnung: Grundrisse mit 245 m² Grundfläche


Grundrisse für Häuser mit Einliegerwohnung
Besonderheiten
Die geplante Größe der Einliegerwohnung, die Gegebenheiten auf dem Grundstück und die Art und Weise, wie die zweite Wohneinheit integriert werden soll - das alles beeinflusst den Grundriss beim Haus mit Einliegerwohnung.
Unsere elf Tipps für den perfekten Grundriss verraten Ihnen, was es bei der Planung sonst noch zu beachten gilt: von der optimalen Ausrichtung des Hauses bis hin zu mögliche Vorgaben aus dem Bebauungsplan.
Wichtige Infos rund um unsere Grundrisse mit Einliegerwohnung
- Eine Einliegerwohnung ist eine zusätzliche Wohnung mit untergeordneter Bedeutung (und somit weniger Fläche) in einem Eigenheim.
- Eine eigene Haustür ist nicht zwingend erforderlich, jedoch ist eine abschließbare Wohnungstür unabdingbar.
- Eine ELW verfügt über eigene sanitäre Anlagen sowie eine Koch- und Schlafmöglichkeit.
Vielleicht finden Sie hier eine Alternative zu unseren Einliegerwohnung-Grundrissen:
Während sich der Grundriss eines Hauses mit Einliegerwohnung in vielen Punkten nicht von der Planung eines Einfamilienhauses unterscheidet, gibt es einige Punkte, die man hierbei unbedingt beachten sollte. Eine davon ist die Entscheidung, wie die ELW in das Haus integriert werden soll. Hierbei müssen einige Faktoren beachtet werden, die sich oft gegenseitig bedingen:
Grundriss mit Einliegerwohnung im Keller oder im Erdgeschoss planen
- Soll das Haus am Hang errichtet werden, bietet es sich meistens an, die Einliegerwohnung in den Keller des Grundrisses zu planen, da sowieso ein Keller gebaut werden muss und dieser aufgrund der Hanglage aus drei Richtungen mit Tageslicht versorgt werden kann.
- Wird ein Haus auf einem flachen Grundstück mit Keller geplant, stellt sich die Frage, wie man genug Sonnenlicht in die ELW im Keller bekommt. Hierzu kann zum Beispiel die Erde vor einer Wand abgegraben und somit eine Art Terrasse geschaffen werden. Die dadurch möglichen großen Fensterflächen spenden Tageslicht.
- Ermöglicht die im Bebauungsplan festgelegte Grundflächenzahl überhaupt eine Einliegerwohnung im Erdgeschoss oder wird die bebaute Fläche dann zu groß?
- Muss das Haus aus anderen Gründen ohne Keller geplant werden, erübrigt sich die Frage.
Die Art des Zusammenlebens sollte im Grundriss berücksichtigt werden
- Wie viel wollen Sie vom Leben der anderen Partei mitbekommen?
- Soll es einen gemeinsamen Eingang geben oder getrennte Eingänge?
- Kann der Garten gemeinsam genutzt werden oder wäre eine räumliche Trennung sinnvoller?
- Gibt es Probleme, wenn manche Räume wie Technik-, Abstell- oder Waschräume gemeinsam genutzt werden sollen?
Hierbei gibt es einige Fakten zu beachten
- Möchten Sie die ELW vermieten oder soll sie selbst genutzt werden (z.B. als Büro)?
- An wen wollen Sie die ELW vermieten? Sollen die Großeltern mit einziehen, kann man das Zusammenleben anders planen, als wenn die Einliegerwohnung für eine Pflegekraft gedacht ist oder einfach als zusätzliche Einkommensquelle an einen dauerhaften Mieter oder an Feriengäste vermietet wird.
- Wird sich die Art der Nutzung gegebenenfalls im Laufe der Jahre ändern? Zum Beispiel zunächst in Vermietung und später für die Großeltern?
- Falls Sie mit dem Gedanken spielen, die Immobilie wieder zu verkaufen, sollten Sie beachten, ob Ihr Grundriss für eine möglichst große Zielgruppe passend oder sehr speziell auf wenige Anwendungsmöglichkeiten zugeschnitten ist.
Fordern Sie ganz unverbindlich & kostenfrei unser Fertighaus-Katalog mit ausführlichen Hinweisen zum Unternehmen sowie alle Hausentwürfe oder Bauleistungs- und Ausstattungsbeschreibungen an. Darüber hinaus erhalten Sie in unserer Aktionsbroschüre die Preise für unsere Aktionshäuser.

























