Viel Kopffreiheit im Doppelhaus
Hausentwürfe mit 25° Dachneigung und einem hohen Kniestock sind bei unseren Hanse Haus Bauherren sehr beliebt.
Die Gründe: viel Kopffreiheit im Dachgeschoss, die moderne Außenansicht und eine Architektur, die in vielen Baugebieten genehmigt wird.
Der Fertighaus Entwurf Doppelhaus 25-125 zeigt, wie sich das Wohnkonzept auch als klassisches Doppelhaus umsetzen lässt.
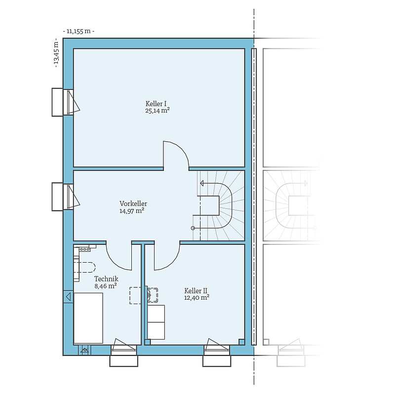
Jede Doppelhaushälfte hat 125 m² Nettogrundfläche und kann auf Wunsch mit einem Keller ergänzt werden. Im Keller ist dann auch der beste Platz für die Haus- und Heiztechnik, so dass im Erdgeschoss Raum für ein Gäste- oder Arbeitszimmer frei wird.
| Merkmale | |
|---|---|
| Dachform | Satteldach |
| Dachneigung | 25° |
| Kniestock | 200 cm |
| Wohnfläche je Einheit | 116,64 m² |
| Grundfläche je Einheit | 125,56 m² |
| Anzahl Geschosse | 1,5 |
Anbau
Möglichkeiten
- Haus- und Heiztechnik im Keller
- Arbeits- oder Gästezimmer im Erdgeschoss
Beispiel
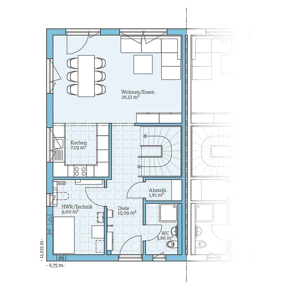
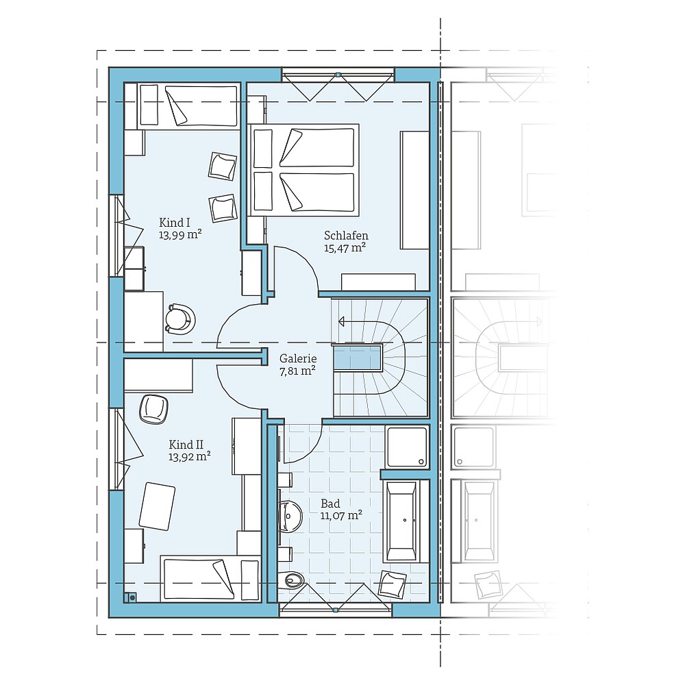
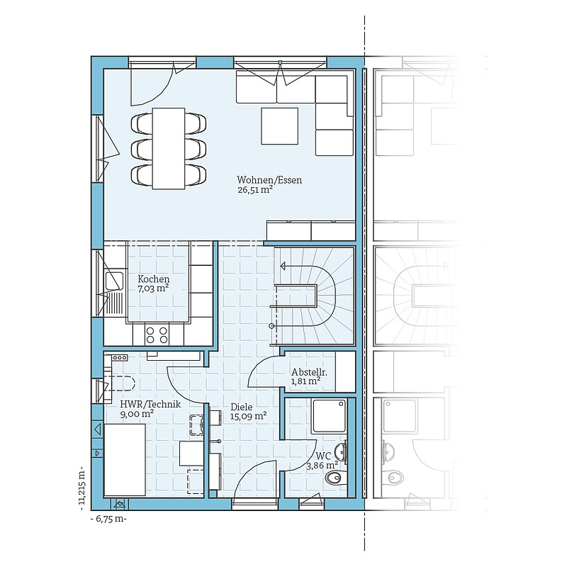
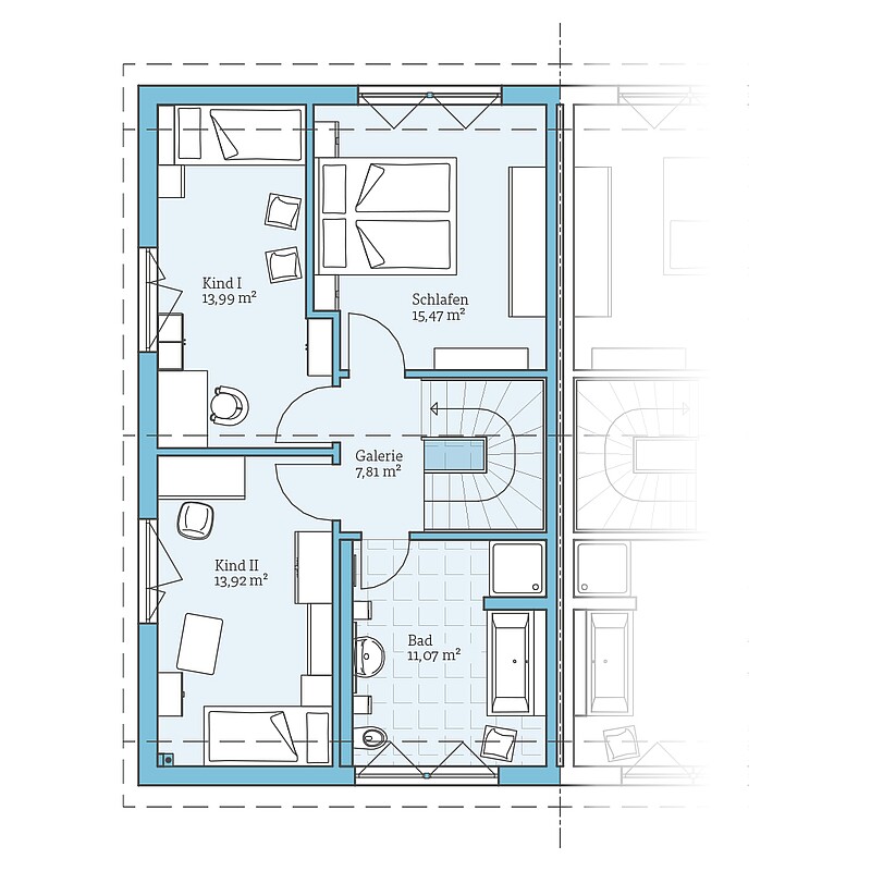
Grundrisse
Bekommen Sie durch die Grundrisse einen Eindruck von diesem Haus. Wir zeigen Ihnen unsere Planungsvorschläge, die natürlich auf Wunsch individuell umgeplant werden können.
Zusätzlich haben wir für dieses Haus interessante Planungsoptionen vorbereitet. Klicken Sie sich durch und sehen Sie selbst, welche Varianten wir uns überlegt haben.


Fordern Sie ganz unverbindlich & kostenfrei unser Fertighaus-Katalog mit ausführlichen Hinweisen zum Unternehmen sowie alle Hausentwürfe oder Bauleistungs- und Ausstattungsbeschreibungen an. Darüber hinaus erhalten Sie in unserer Aktionsbroschüre die Preise für unsere Aktionshäuser.













