Wertvollen Baugrund optimal nutzen
Dank seiner kompakten Außenmaße ist das Variant 35-137 ideal für kleinere Baugrundstücke geeignet. Durch eine clevere Grundrissplanung ist das gefühlte Raumangebot wesentlich größer als vermutet.
Die funktionelle Aufteilung des Erdgeschosses in einen offenen Wohn-, Ess- und Kochbereich, den geräumigen Eingangsbereich, ein Gäste-WC und den praktischen Hauswirtschaftsraum ist voll und ganz auf Alltagstauglichkeit ausgerichtet.
Wird das Haus mit Keller gebaut, kann der Hauswirtschaftsraum zum Arbeits- oder Gästezimmer umfunktioniert werden.
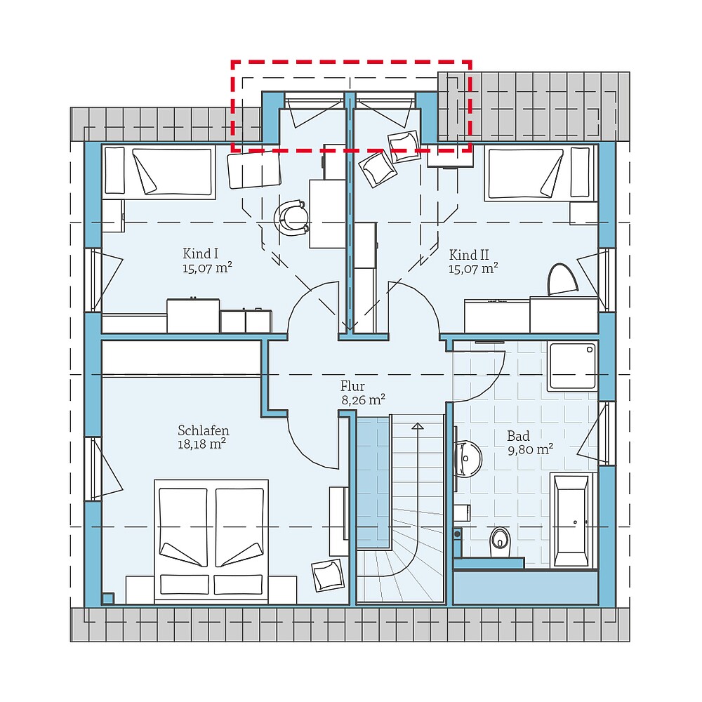
Durch den 120 cm hohen Kniestock dieses Hauses aus unserer Hausserie Variant mit Satteldach ist auch der Raum im Dachgeschoss komfortabel nutzbar. Neben den beiden Kinderzimmern stehen hier noch ein Elternschlafzimmer und das Bad zur Verfügung.
| Merkmale | |
|---|---|
| Dachform | Satteldach |
| Dachneigung | 35° |
| Kniestock | 120 cm |
| Wohnfläche | 120,57 m² |
| Grundfläche | 136,54 m² |
| Anzahl Geschosse | 1,5 |
Anbau
Möglichkeiten
- Zwerchgiebel mit Satteldach oder Tonnendach
Beispiel
Grundrisse
Bekommen Sie durch die Grundrisse einen Eindruck von diesem Haus. Wir zeigen Ihnen unsere Planungsvorschläge, die natürlich auf Wunsch individuell umgeplant werden können.
Zusätzlich haben wir für dieses Haus interessante Planungsoptionen vorbereitet. Klicken Sie sich durch und sehen Sie selbst, welche Varianten wir uns überlegt haben.


Fordern Sie ganz unverbindlich & kostenfrei unser Fertighaus-Katalog mit ausführlichen Hinweisen zum Unternehmen sowie alle Hausentwürfe oder Bauleistungs- und Ausstattungsbeschreibungen an. Darüber hinaus erhalten Sie in unserer Aktionsbroschüre die Preise für unsere Aktionshäuser.














