Wohnkonzepte ganz einfach individualisieren
Was macht man, wenn man etwas mehr Raum benötigt, aber nicht gleich den kompletten Grundriss verändern möchte?
Bei unseren Hanse Haus-Fertighäusern ist das meistens ganz leicht: Mit vielen Anbauoptionen lassen sich die Grundrisse einfach erweitern und man schafft zusätzlichen Platz.
Das Ausstellungshaus Variant 35-161 in Mannheim wurde beispielsweise um einen großflächig verglasten Erker am Wohnbereich erweitert, der den offenen Küchen- und Essbereich großzügiger gestaltet.
An der Eingangsseite des Hauses befindet sich ein Anbau, in dem ein Studio-/Bürobereich untergebracht ist. Wer diesen Extraraum nicht benötigt, könnte statt des Studios auch über eine Komfortgarage mit direktem Zugang in den Hauswirtschaftsraum nachdenken.
Möglichkeiten gibt es bei der Hausplanung unendlich viele. Wir bei Hanse Haus sehen es als unsere Aufgabe, für Sie die perfekte Lösung zu finden.
| Merkmale | |
|---|---|
| Dachform | Satteldach |
| Dachneigung | 35° |
| Kniestock | 120 cm |
| Wohnfläche | 142,78 m² |
| Grundfläche | 161,25 m² |
| Anzahl Geschosse | 1,5 |
Besonderheiten
& Extras
Dieses Haus live erleben:
Xaver-Fuhr-Straße 111/33
68163 Mannheim
Telefon 0621 31880940
Anbaumöglichkeiten:
- Erker
- Haustürvordach
- Büroanbau
Beispiel
Grundrisse
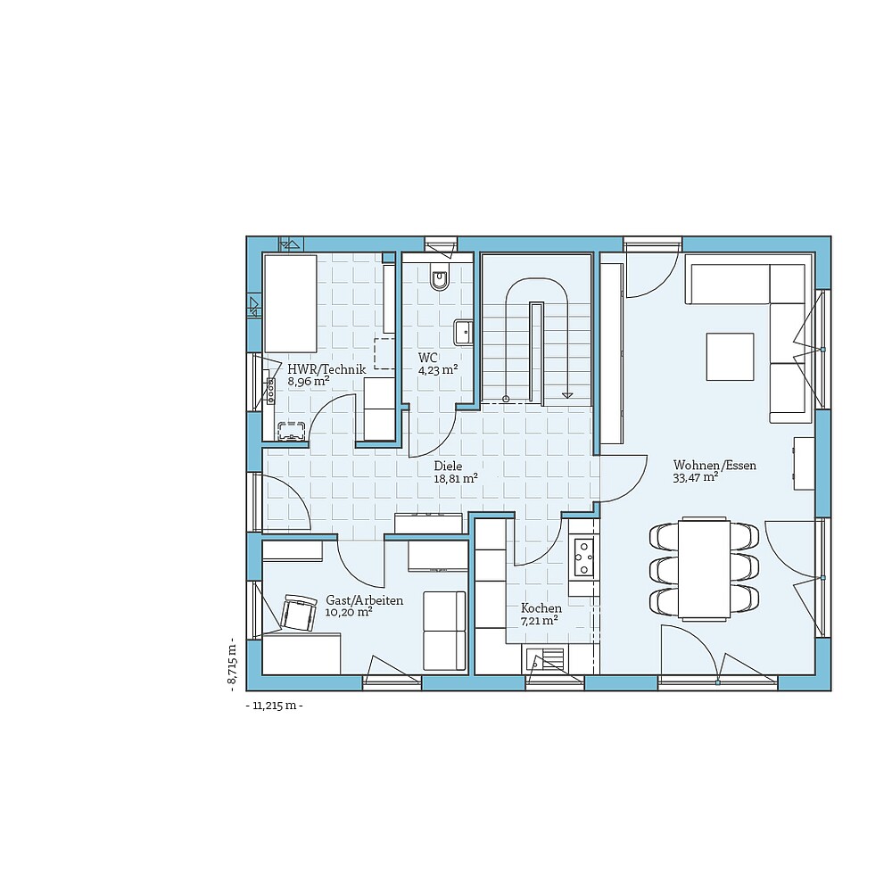
Bekommen Sie durch die Grundrisse einen Eindruck von diesem Haus. Wir zeigen Ihnen unsere Planungsvorschläge, die natürlich auf Wunsch individuell umgeplant werden können.
Zusätzlich haben wir für dieses Haus interessante Planungsoptionen vorbereitet. Klicken Sie sich durch und sehen Sie selbst, welche Varianten wir uns überlegt haben.


Fordern Sie ganz unverbindlich & kostenfrei unser Fertighaus-Katalog mit ausführlichen Hinweisen zum Unternehmen sowie alle Hausentwürfe oder Bauleistungs- und Ausstattungsbeschreibungen an. Darüber hinaus erhalten Sie in unserer Aktionsbroschüre die Preise für unsere Aktionshäuser.



















