Die Hanse Haus Villa 165: moderne Stadtvilla mit Stil
Der Hausentwurf Villa 165 verspricht großzügiges Wohnen auf zwei Vollgeschossen. Seine trendige Farb- und Materialkombination mit Echtholzfassaden am Anbau verleiht der klassischen Stadtvillenarchitektur einen ganz neuen, modernen Charakter.
Im Musterhaus Köln-Frechen in der FertighausWelt können Sie dieses Haus besichtigen und sich vor Ort einen eigenen Eindruck verschaffen. Dank der hervorragenden Wärmedämmung und des Energiekonzeptes erfüllt das Musterhaus die Anforderungen an ein KfW-40-Effizienzhaus.
Klassische Stadtvillenarchitektur liegt nach wie vor voll im Trend. Kein Wunder, schließlich passt sie mit ihrem urbanen Stil sowohl in stadtnahe als auch in ländliche Gebiete und ist in der Grundrissgestaltung sehr variabel. All unsere Stadtvillenentwürfe können sowohl innen als auch außen individuell nach Ihren Wünschen und Bedürfnissen angepasst werden.
Wir legen großen Wert darauf, mit funktionalen Details wie z. B. versteckten Stauräumen, Ankleidezimmern, einem großen Garderobenbereich oder einem praktischen Wäscheabwurfschacht den Alltag für Sie komfortabler zu gestalten. Schließlich möchten wir, dass Sie sich in Ihrem Zuhause wohlfühlen und das Leben in vollen Zügen genießen können.
| Merkmale | |
|---|---|
| Dachform | Walmdach |
| Dachneigung | 25° |
| Wohnfläche | 156,39 m² |
| Grundfläche | 164,08 m² |
| Anzahl Geschosse | 2 |
Besonderheiten
& Extras
Dieses Haus live erleben:
Europaallee 45
Parzelle 21
50226 Frechen (bei Köln)
Telefon 02234-9906500
Anbaumöglichkeiten:
- Erker mit Flachdach
Beispiel
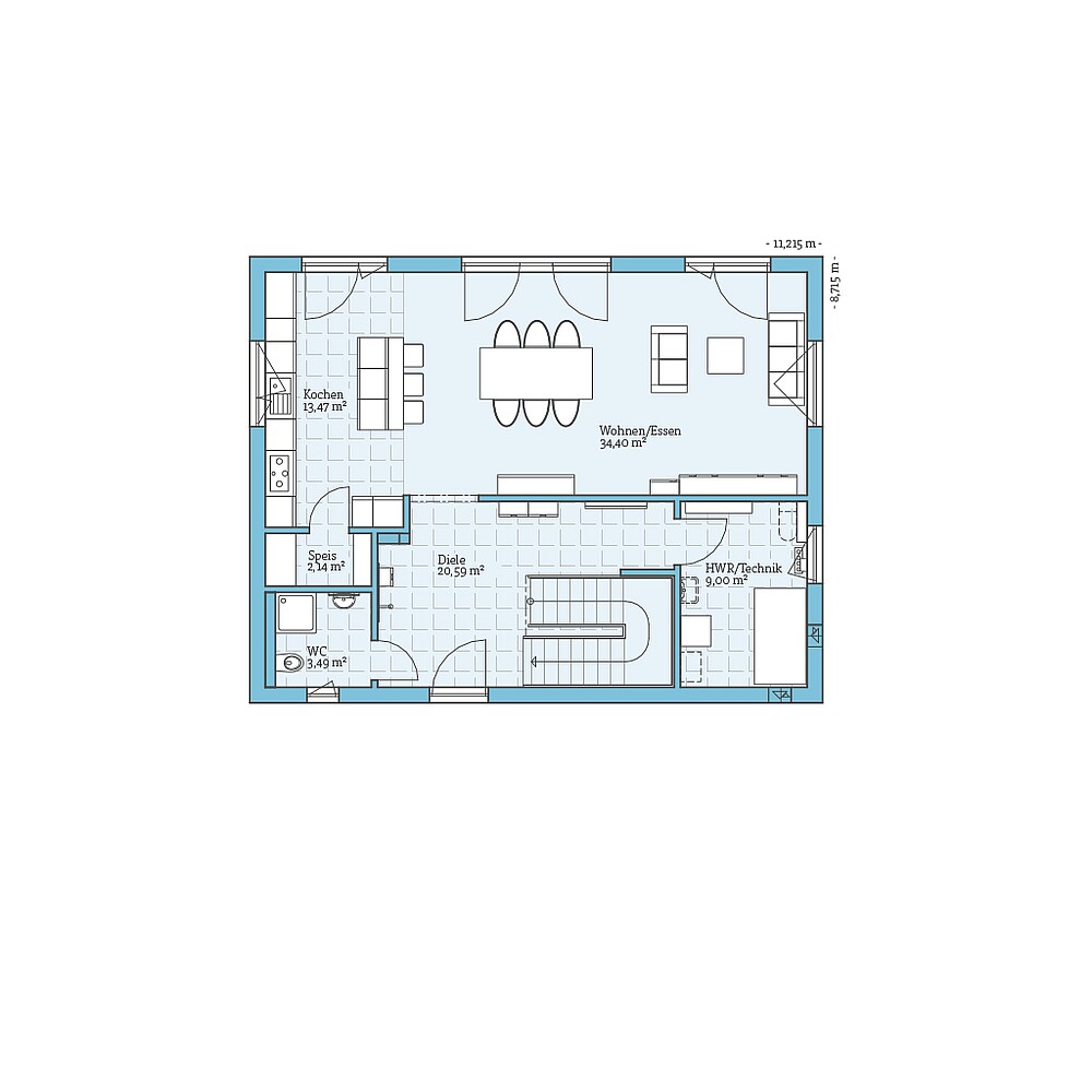
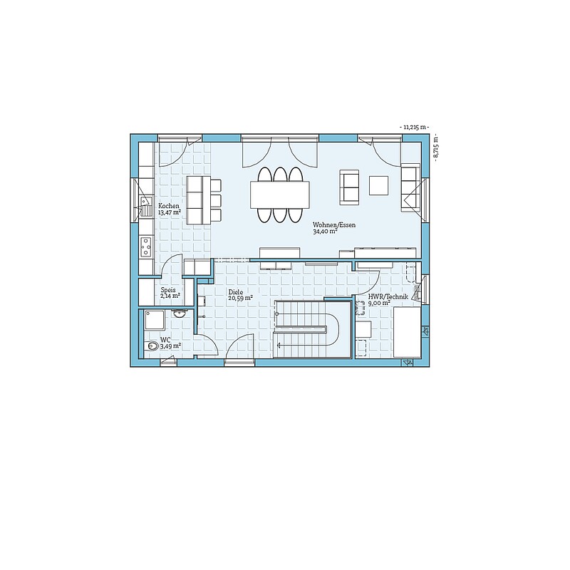
Grundrisse
Bekommen Sie durch die Grundrisse einen Eindruck von diesem Haus. Wir zeigen Ihnen unsere Planungsvorschläge, die natürlich auf Wunsch individuell umgeplant werden können.
Zusätzlich haben wir für dieses Haus interessante Planungsoptionen vorbereitet. Klicken Sie sich durch und sehen Sie selbst, welche Varianten wir uns überlegt haben.


Fordern Sie ganz unverbindlich & kostenfrei unser Fertighaus-Katalog mit ausführlichen Hinweisen zum Unternehmen sowie alle Hausentwürfe oder Bauleistungs- und Ausstattungsbeschreibungen an. Darüber hinaus erhalten Sie in unserer Aktionsbroschüre die Preise für unsere Aktionshäuser.




















