QNG⁺-Line: Großzügig wohnen ohne Dachschrägen
Viel Licht und Freiraum prägen den Charakter der Villa 133 mit 126 m² Wohnfläche. Unter dem flachen Satteldach mit 25° Dachneigung verfügt das Einfamilienhaus über zwei Vollgeschosse: Dank der fehlenden Dachschrägen kann das helle Obergeschoss flexibel genutzt werden.
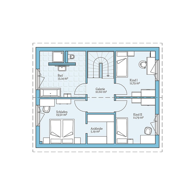
Im Badezimmer lässt sich die T-Lösung realisieren, die Platz für einen großen Waschtisch für die ganze Familie schafft. Breite Fenster sorgen außerdem für besonders viel Tageslicht in den beiden gleich großen Kinderzimmern.
Bis zu 10 % sparen dank serieller Fertigung
- Ausbauhaus: ab 361.058 €
- Technikfertig: ab 318.024 €
- Fast Fertig: ab 333.179 €
- Schlüsselfertig: ab 367.762 €
Ihr Vorteil
Wir können garantieren, dass Ihr Fertighaus aus der QNG+-Line unter Einhaltung bestimmter Vorgaben eine QNG-Zertifizierung erhält. So ist die höchste Förderstufe der KfW-Förderung Wohneigentum für Familien möglich und Sie profitieren von zinsgünstigen Krediten, die Ihnen die Finanzierung noch einmal zusätzlich erleichtern.
Info:
Abbildungen und Grundrisse enthalten Sonderausstattungen und Anbauten, die nicht im Grundpreis enthalten sind.
| Merkmale | |
|---|---|
| Dachform | Satteldach |
| Dachneigung | 25° |
| Wohnfläche | 126,00 m² |
| Grundfläche | 133,00 m² |
| Anzahl Geschosse | 2 |
Planungs-
möglichkeiten
Da die Häuser aus der QNG+-Line seriell gefertigt werden, ist keine individuelle Planung möglich. Trotzdem stehen Ihnen einige Planungsmöglichkeiten offen:
Ergeschoss
- Abstellraum unter der Treppe
- L-förmiges Haustürvordach
- Dusche im Gäste-WC
- Zusätzliches Fenster
- Größeres Fenster
Obergeschoss
- Größere Dusche im Badezimmer
- Zusätzliches Fenster
- Größerer Dachüberstand
- Walmdach statt Satteldach
Grundrisse
Bekommen Sie durch die Grundrisse einen Eindruck von unserem Fertighaus aus der QNG⁺-Line.
Voraussetzung für die serielle, günstigere Fertigung ist, dass an den vordefinierten Grundrissen nur bestimmte Änderungen vorgenommen werden können. Entdecken Sie die unterschiedlichen Planungsoptionen für diesen Hausentwurf!

Fordern Sie ganz unverbindlich & kostenfrei unser Fertighaus-Katalog mit ausführlichen Hinweisen zum Unternehmen sowie alle Hausentwürfe oder Bauleistungs- und Ausstattungsbeschreibungen an. Darüber hinaus erhalten Sie in unserer Aktionsbroschüre die Preise für unsere Aktionshäuser.















