Viel Platz auf zwei Vollgeschossen im Raumwunder mit Satteldach
Unser Hausentwurf Villa 169, den wir auch als Musterhaus realisiert haben, bietet mit seinem flachen Satteldach und den zwei Vollgeschossen jede Menge Raum.
Im Erdgeschoss sind der offene Wohn-, Ess- und Kochbereich, ein Arbeits- oder Gästezimmer, der Hauswirtschafts- bzw. Technikraum und ein Duschbad untergebracht.
Ein separater Flachdachanbau mit Garage ermöglicht den wettergeschützten Zugang zum Haus, der Kellerersatzraum bietet praktische Abstellfläche.
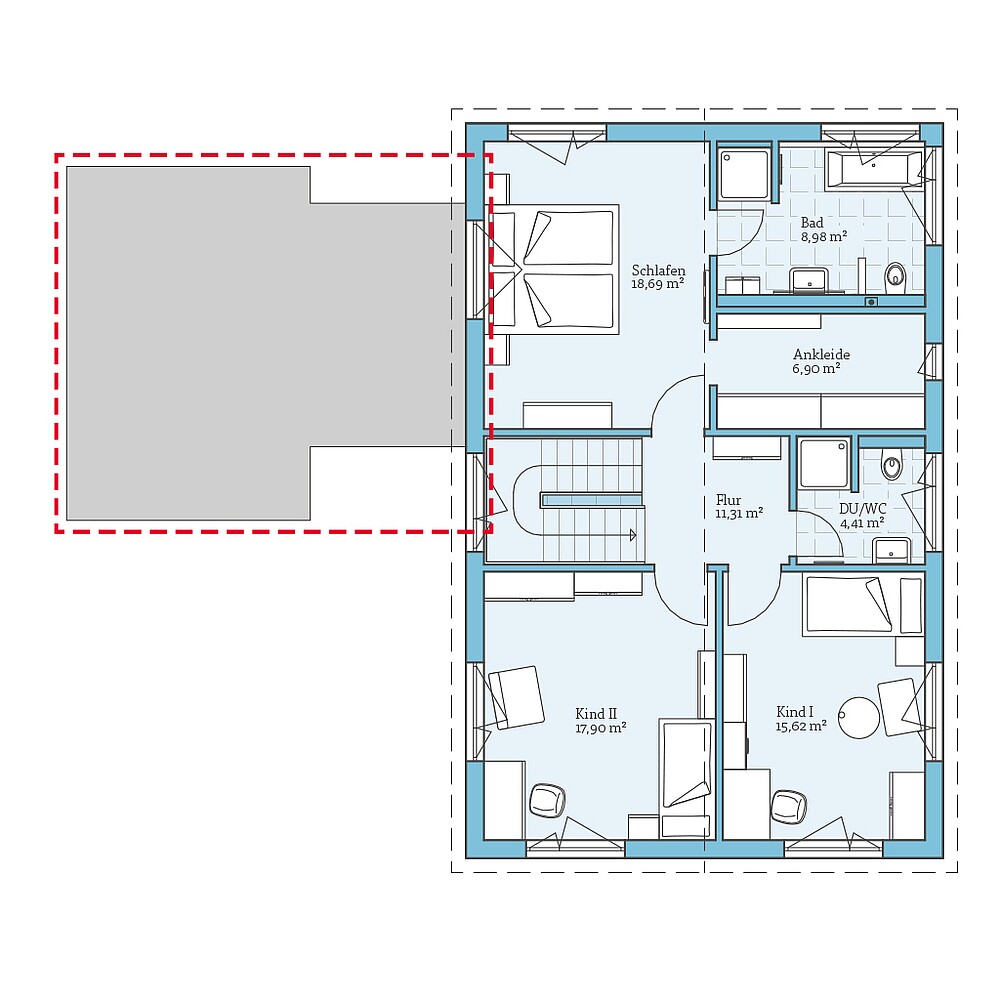
Im Obergeschoss des Hanse Hauses mit Satteldach befinden sich das Elternschlafzimmer mit eigenem Bad und Ankleide sowie zwei Kinderzimmer und ein Duschbad.
| Merkmale | |
|---|---|
| Dachform | Satteldach |
| Dachneigung | 25° |
| Wohnfläche | 161,74 m² |
| Grundfläche | 169,45 m² |
| Anzahl Geschosse | 2 |
Besonderheiten
& Extras
Dieses Haus live erleben:
Ludwig-Erhard-Straße 27
61118 Bad Vilbel
Telefon 06101-9870616
Beispiel
Grundrisse
Bekommen Sie durch die Grundrisse einen Eindruck von diesem Haus. Wir zeigen Ihnen unsere Planungsvorschläge, die natürlich auf Wunsch individuell umgeplant werden können.


Fordern Sie ganz unverbindlich & kostenfrei unser Fertighaus-Katalog mit ausführlichen Hinweisen zum Unternehmen sowie alle Hausentwürfe oder Bauleistungs- und Ausstattungsbeschreibungen an. Darüber hinaus erhalten Sie in unserer Aktionsbroschüre die Preise für unsere Aktionshäuser.





















