Ein Basisentwurf, zwei Musterhäuser: die Hanse Haus Fertighaus Villa 177
Die beliebte Villa 177 ist die Grundlage für eine individuelle Hausplanung. Der Erdgeschossgrundriss wurde für das Musterhaus in Villingen-Schwenningen gleich an zwei Seiten um ein Anbauteil ergänzt. An der Küche vergrößert ein holzverschalter Anbau den Kochbereich und schafft durch das daran angesetzte Flachdach einen überdachten Freisitz, der über eine große Terrassentür auch aus dem Essbereich erreichbar ist.
Als zweites Anbauteil fällt sofort die Erweiterung des Hauswirtschaftsraumes plus Carport auf. So wird auch der Eingangsbereich überdacht und Stellfläche für Fahrräder und Mülltonnen geschaffen. Das Erdgeschoss der beiden Planungsvarianten bietet einen offenen Wohnbereich, WC mit Dusche und ein Arbeits- bzw. Gästezimmer.
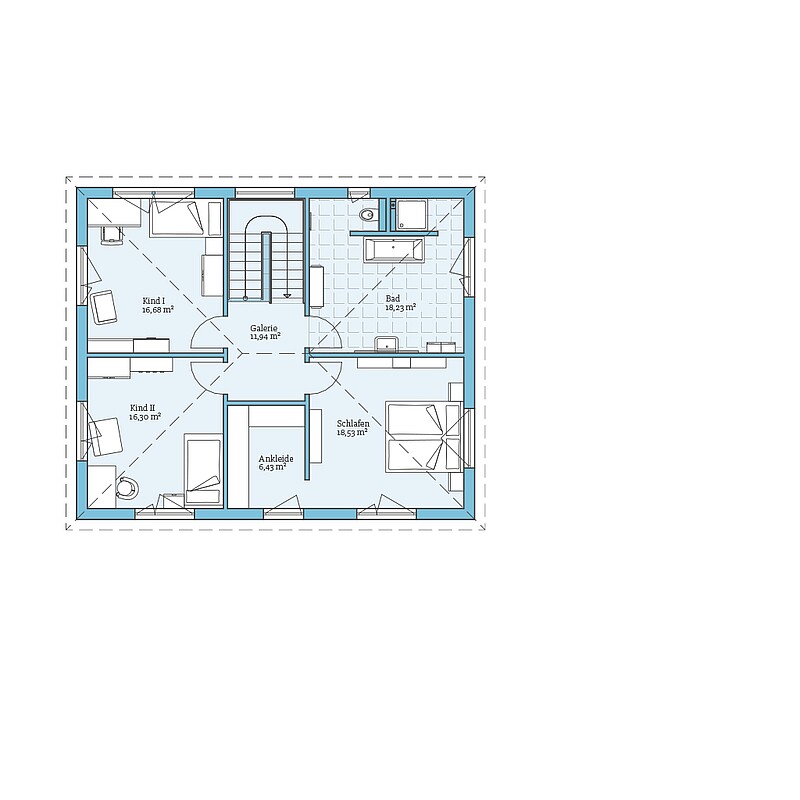
Zwei Kinderzimmer, das Elternschlafzimmer mit Ankleide und das Familienbad mit Dusche und Badewanne sind im Obergeschoss untergebracht. Wird noch ein drittes Kinderzimmer benötigt, kann das Gäste- bzw. Arbeitszimmer im Erdgeschoss zum Elternschlafzimmer umgeplant werden. Dann steht im Obergeschoss ein zusätzlicher Raum für den Nachwuchs zur Verfügung.
| Merkmale | |
|---|---|
| Dachform | Walmdach |
| Dachneigung | 25° |
| Wohnfläche | 184,98 m² |
| Grundfläche | 197,35 m² |
| Anzahl Geschosse | 2 |
Besonderheiten
& Extras
Dieses Haus live erleben:
Hausbaupark Villingen-Schwenningen
Messe 1
Haus-Nr. 35
78056 Villingen-Schwenningen
Telefon 07720-9557177
Beispiel
Grundrisse
Bekommen Sie durch die Grundrisse einen Eindruck von diesem Haus. Wir zeigen Ihnen unsere Planungsvorschläge, die natürlich auf Wunsch individuell umgeplant werden können.
Erweitern können Sie diesen Entwurf z. B. mit folgenden Anbauteilen:
- Ein überdachter Freisitz mit ca. 9 m² Fläche passt optisch hervorragend zur Architektur des Hauses.
- Der Küchenanbau erweitert den Wohnbereich um ca. 6 m² und ermöglicht den Zugang zum Freisitz.
- Durch die Erweiterung des Hauswirtschaftsraumes um ca. 3,5 m² und den Carport wird zusätzliche, wettergeschützte Stellfläche im Außenbereich geboten.


Fordern Sie ganz unverbindlich & kostenfrei unser Fertighaus-Katalog mit ausführlichen Hinweisen zum Unternehmen sowie alle Hausentwürfe oder Bauleistungs- und Ausstattungsbeschreibungen an. Darüber hinaus erhalten Sie in unserer Aktionsbroschüre die Preise für unsere Aktionshäuser.




















