Besuchen Sie uns im Musterhaus Heßdorf in der FertighausWelt
Hanse Haus in Heßdorf
Sie möchten das Projekt Hausbau in Angriff nehmen und mehr über Hanse Haus als Baupartner erfahren? Unser Musterhaus in Heßdorf bietet Ihnen die Gelegenheit, ein modernes Einfamilienhaus mit Satteldach zu besichtigen: den Hausentwurf Variant 25-175 (Parzelle 15). Vereinbaren Sie ein kostenloses, unverbindliches Beratungsgespräch oder schauen Sie sich ganz in Ruhe um und stellen uns Ihre Fragen. Wir freuen uns auf Sie!



Termine in der Nähe von Heßdorf

Musterhaus in Heßdorf
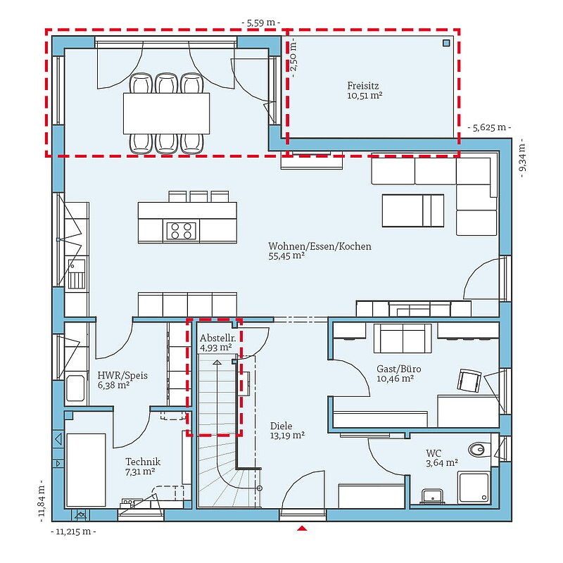
Unser Musterhaus Variant 25-175 in Heßdorf bietet auf 158 m² Wohnfläche ein modernes Wohnkonzept und eine durchdachte architektonische Gestaltung.
Besonders der 43 m² große Wohn-, Ess- und Kochbereich mit seinen bodentiefen Fensterflächen wird zum Mittelpunkt des täglichen Familienlebens. Das Dachgeschoss des Musterhauses mit Satteldach bietet genug Raum für drei Kinderzimmer.
Erdgeschoss
- Geräumige Diele
- Gäste-WC mit Dusche
- Offener Wohn-, Ess- und Kochbereich mit Zugang zum Freisitz
- Hauswirtschaftsraum / Speisekammer
- Technikraum
- Abstellraum unter der Treppe
- Gästezimmer / Büro
Dachgeschoss
- Zwei Kinderzimmer
- Galerie / weiteres Kinderzimmer
- Elternschlafzimmer mit Zugang zur Ankleide
- Familienbad mit Badewanne und Dusche
Ihr Besuch in unserem Musterhaus in Heßdorf
Moderne Fertighäuser in der FertighausWelt Nürnberg
Besichtigen Sie moderne, energieeffiziente Musterhäuser namhafter Fertighaushersteller.
- Eintrittspreis: 4€ | Familie: 6€ | Kinder bis 18 Jahre frei
- Parken: direkt am Fertighauszentrum
- Parkkosten: kostenlos
- Verpflegung: Café im Empfangsbereich
- Anzahl der Musterhäuser: 19
Warum sich ein Besuch in der FertighausWelt lohnt
Der Besuch im Musterhauspark in Heßdorf kann einen wichtigen Beitrag zur Entscheidung für einen Fertighausanbieter, einen Haustyp oder einen Architekturstil leisten.
Sie haben die Möglichkeit, die Wohnatmosphäre, die Raumaufteilung, die Dimensionen und die Hausausstattung in unserem Ausstellungshaus live zu erleben und Ihre Fragen einem kompetenten Fachberater vor Ort zu stellen – und so anhand von persönlichen Eindrücken herauszufinden, wie Sie sich Ihr Traumhaus vorstellen.
Tipps für den Musterhauspark in Heßdorf
Ein entspannter und gleichzeitig produktiver Besuch in der FertighausWelt – das gelingt mit unseren Tipps:
- Bringen Sie ausreichend Zeit mit, um entspannt durch die Musterhäuser schlendern zu können und alle Eindrücke in Ruhe auf sich wirken zu lassen.
- Machen Sie Notizen oder Fotos, wenn Ihnen etwas an einem Musterhaus besonders gut gefällt oder bei der Besichtigung Fragen aufkommen. Unsere Fachberater vor Ort stehen Ihnen gerne mit Rat und Tat zur Seite.
- Wenn Sie bereits konkrete Fragen zu unseren Fertighäusern oder rund um den Hausbau mit Hanse Haus haben, vereinbaren Sie am besten bereits im Voraus einen Beratungstermin bei einem unserer Fachberater.
Leistungen
Unser Anspruch ist es, Sie sicher und entspannt durch die gesamte Bauphase zu begleiten. Ihr Projekt beginnt für uns schon lange bevor die ersten Wände gefertigt werden.
Von den Planungsgesprächen über die Detailplanung des Hauses bis hin zur Erstellung von Ausführungsplänen, statischen Berechnungen und Wärmeschutznachweisen übernehmen wir eine Vielzahl von wertvollen Serviceleistungen für Sie. Dazu gehören unter anderem:
- Bedarfsanalyse
- Barrierefreiheit
- Vorentwurfsplanung und Angebot
- Festpreisgarantie 15 Monate
- Bauantrag
- Wärmeschutzberechnung / Energiebedarfsausweis
- Baugrundgutachten
- Werkplanung
- Deckenaussparung
- Ausstattungsberatung / Bemusterung
- Statik
- Beantragung der Hausanschlüsse
- Anlaufberatung
- Bauleitung, Überwachung und Betreuung
- Baustelleneinrichtung
- Versicherungsschutz
- Montage
- Luftdichtigkeitsprüfung (Blower-Door-Test)
- DGNB-Zertifizierung
- Garantie/Gewährleistung
- Kundendienst
Die einzelnen Leistungen können von der jeweiligen Ausbaustufe abweichen. Weitere Infos zu den Inklusivleistungen finden Sie auf unserer Website.
- Über 38.600 zufriedene Hanse Haus-Bauherren
- Fairster Fertighausanbieter zum 13. Mal in Folge
- Ausgezeichnetes Preis-Leistungs-Verhältnis

- Bornkessel, Oliver
- Kothe Bräunig, Jasmin
- Kurz, Michael
Im Gewerbepark 30n, 91093 Heßdorf
Öffnungszeiten: Mi. - So. 11-18 Uhr
Häuser: Variant 25-183
- Bornkessel, Oliver
- Kothe Bräunig, Jasmin
- Kurz, Michael
Im Gewerbepark 30n, 91093 Heßdorf
Öffnungszeiten: Mi. - So. 11-18 Uhr
Häuser: Variant 25-183
Vereinbaren Sie einen unverbindlichen & kostenfreien Termin und erhalten Sie zusätzlich als Download oder per Post unseren Fertighaus-Katalog mit allen Hausentwürfen und ausführlichen Infos zum Hausbau mit Hanse Haus. In unserer Aktionsbroschüre finden Sie die Preise für unsere Aktionshäuser.












