One basic design, two model homes: Hanse Haus prefabricated Villa 177
What if you have found a floor plan where almost everything is perfect – but only almost?
Will you make compromises and hope that you can deal with them in your everyday life? We say “no” and will refine the layout until it is perfect for our clients.
The following two planning options demonstrate just how easy this is with Hanse Haus.
The prefabricated villa in Villingen-Schwenningen: variant 1 of our Villa 177. The popular Villa 177 is the basis for individual house planning. For the show home in Villingen-Schwenningen, the ground floor layout was supplemented on two sides by an extension:
- A timber-cladded addition to the kitchen enlarges the cooking area and at the same time creates a covered patio, which can also be accessed from the dining area through a large patio door.
- A second extension is the immediately noticeable carport, which also covers the entrance area and creates space for bicycles, rubbish bins etc.
The prefabricated villa in Villingen-Schwenningen: variant 2 of our Villa 177: the Villa 178
| Characteristics | |
|---|---|
| Roof form | Hipped roof |
| Roof inclination | 25 ° |
| Living space | 184,98 m² |
| Base area | 197,35 m² |
| Number of floors | 2 |
Special features & extras
Experience this house in person:
Housebuilding Park in Villingen-Schwenningen
Messe 1
House no. 35
78056 Villingen-Schwenningen
Telephone 07720-9557177
Floor plan
example
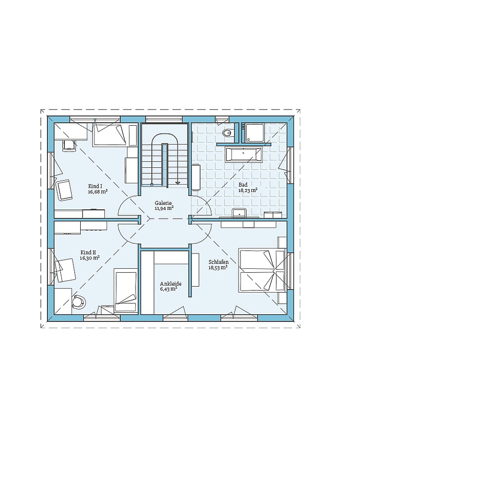
Get an impression of this house through the floor plans. We will show you our planning suggestions, which of course can be customised on request.
We have also prepared some interesting planning options for this house. Click through them and see for yourself which variants we have come up with.
- Both the basic layout shown here and the show house feature an open living area, WC with shower and a study or guest room on the ground floor.
- Two children’s rooms, the master bedroom with dressing room and the family bathroom with shower and bathtub are located on the upper floor in both variants.
- If a third children’s room is needed, the guest room or study on the ground floor can be redesigned as a master bedroom. Then there will be one more room for the younger generation upstairs.

What our clients say about our houses
references

Request without obligation & free of charge our prefabricated house catalog with detailed information about the company as well as all house designs or construction performance and equipment descriptions. In addition, you will find the prices for our campaign houses in our campaign brochure.











![[Translate to Englisch:] [Translate to Englisch:]](/fileadmin/_processed_/f/0/csm_Familie_Frech_Haus_96ada4ce11.jpg)







