Bungalow- und Winkelbungalow-Grundrisse entdecken
Es ist nicht immer leicht, den perfekten Grundriss für sich selbst zu finden. Daher haben wir eine Vielzahl an Vorschlagsentwürfen für Sie konzipiert. Doch natürlich planen wir Ihr Haus nach Ihren Wünschen und Bedürfnissen. Die Liste der Grundrisse ist der Gesamtgröße nach aufsteigend sortiert.
Bungalow-Grundrisse mit 80 m² Grundfläche – Planungsoption Erker & Keller
Bungalow-Grundrisse mit 92 m² Grundfläche
Bungalow-Grundrisse mit 110 m² Grundfläche – Planungsoption Anbau mit Pultdach & Keller
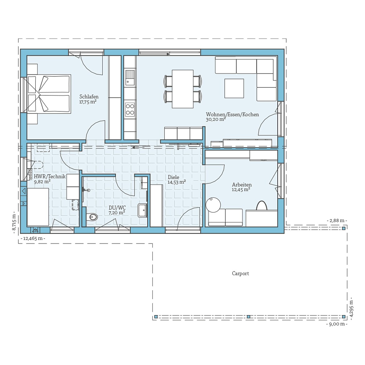
Winkelbungalow-Grundriss mit 114 m² Grundfläche – Planungsoption Keller & überdachtem Freisitz
Bungalow-Grundriss mit 116 m² Grundfläche – Planungsoption Freisitz & Haustürvordach
Bungalow-Grundriss mit 122 m² Grundfläche
Bungalow-Grundriss mit 124 m² Grundfläche
Bungalow-Grundriss mit 126 m² Grundfläche – Planungsoption mit überdachtem Freisitz
Bungalow-Grundriss mit 135 m² Grundfläche
Bungalow-Grundriss mit 132 m² Grundfläche
Bungalow-Grundriss mit 140 m² Grundfläche
Bungalow-Grundriss mit 147 m² Grundfläche
Bungalow-Grundriss mit 182 m² Grundfläche – Planungsoption mit Garage
Bungalow-Grundriss mit 154 m² Grundfläche – Planungsoptionen mit Garage
Bungalow-Grundriss mit 156 m² Grundfläche – Planungsoptionen mit Garage
Bungalow-Grundriss mit 157 m² Grundfläche – Planungsoptionen mit Freisitz & Carport
Bungalow-Grundriss mit 160 m² Grundfläche
Bungalow-Grundriss mit 170 m² Grundfläche


Grundrisse für Bungalows
In einem Bungalow sind alle Räume auf einer Ebene untergebracht, sodass sich dieser Haustyp in der Grundriss-Planung von mehrgeschossigen Häusern unterscheidet. Dennoch gelten auch hier unsere elf Tipps für den perfekten Grundriss.
Von der optimalen Ausrichtung des Bungalows über mögliche Vorschriften aus dem Bebauungsplan bis hin zur Planung mit Keller – hier finden Sie alles Wichtige zu Ihrem Bungalow-Grundriss.
Wichtige Infos rund um unsere Bungalow-Grundrisse
- Es müssen keine tragenden Wände berücksichtigt werden, d.h. Sie sind in der Gestaltung sehr flexibel und haben die Möglichkeit, sehr offene Raumkonzepte zu schaffen, ohne auf die Statik der darüber liegenden Stockwerke Rücksicht nehmen zu müssen.
- Durch Winkel in der Planung kann das Haus mühelos in verschiedene Abschnitte unterteilt werden, z.B. Wohnraum und Büro oder Wohnbereich und Schlafbereich.
- Falls Sie einen Bungalow im Hinblick auf das Wohnen im Alter planen, denken Sie daran, dass alle Räume komfortabel mit dem Rollstuhl erreicht werden müssen, die Türen entsprechend breit sind und auch Terrassentüren barrierefrei zu öffnen sind.
- Bei der richtigen Planung können Sie durch die Gebäudeform eine Terrasse schaffen, die von drei Seiten von den Blicken der Nachbarn und vor dem Wind geschützt ist.
- Das Wohnen auf einer Ebene bietet die einmalige Chance, von jedem Raum aus die Nähe zur Natur zu genießen. Nutzen Sie diese Chance, indem Sie bodentiefe Fenster einbauen und mit Terrassentüren Zugang zum Garten schaffen.
- Die Kosten für schlüsselfertige Bungalows sind in der Regel nur schwer pauschal anzugeben da sie von der Art der Ausstattung (welcher Bodenbelage, welche Wand, welche Türen usw.) abhängig sind.
- In unserer Aktionsbroschüre haben wir den Preis eines 126m² Bungalows in der Ausbaustufe "Fast Fertig" aufgeführt.
- Um den Preis für einen Schlüsselfertigen Bungalow zu erhalten müssen, aufgrund des hohen Standards der Ausbaustufe "Fast Fertig" lediglich noch die Kosten für Bodenbeläge, Innentüren und Maler-, Spachtel- und Tapezierarbeiten hinzugerechnet werden.
Was ist der Unterschied zwischen einem Bungalow und einem Winkelbungalow? Während der Grundriss eines Bungalows rechteckig oder quadratisch ist, ist die Form eines Winkelbungalows vielfältiger. Gängige Hausformen für den Winkelbungalow sind hierbei z.B. U-, L-, T- oder auch eine Z-Form.
Was sind die Vorteile eines Winkelbungalows gegenüber eines rechteckigen/quadratischen Baus?
- Durch die Winkel im Haus wirkt das Gebäude nicht so lang oder schmal und somit häufig etwas ästhetischer als ein rechteckiger Bau.
- Außerdem ist die Aufteilung der Räume variabler und die Lebensbereiche können räumlich besser voneinander getrennt werden.
- Man kann eine vom Haus windgeschützte Terrasse einplanen.
Was sind die Nachteile eines Winkelbungalows gegenüber eines rechteckigen/quadratischen Baus?
- Je mehr Winkel geplant werden, desto schwieriger ist es, das richtige Grundstück zu finden.
- Es entstehen Mehrkosten durch größere Dachflächen.
Vielleicht finden Sie hier eine Alternative zu unseren Bungalow Grundrissen:
Fordern Sie ganz unverbindlich & kostenfrei unser Fertighaus-Katalog mit ausführlichen Hinweisen zum Unternehmen sowie alle Hausentwürfe oder Bauleistungs- und Ausstattungsbeschreibungen an. Darüber hinaus erhalten Sie in unserer Aktionsbroschüre die Preise für unsere Aktionshäuser.


























