Zweifamilienhaus-Grundrisse entdecken
Es ist meist gar nicht so einfach, den perfekten Grundriss für sein neues Eigenheim zu finden. Welche Zimmer benötige ich? Wo sollen diese angeordnet werden? Wohin mit dem Garten und dem Carport? Worauf muss ich achten? Fragen über Fragen. Um Ihnen hier eine Hilfestellung geben zu können, haben unsere Architekten eine Vielzahl an Grundrissen für Sie angefertigt. Es handelt sich hierbei um Vorschlagsentwürfe, die wir dann natürlich Ihren Wünschen entsprechend anpassen. Eines vorab: Bei uns gleicht kein Haus einem anderen – Ihr Eigenheim wird ein Unikat!
Zweifamilienhaus-Grundrisse mit 203 m² Grundfläche – Planungsoption Erker
Zweifamilienhaus-Grundrisse mit 210 m² Grundfläche – Planungsoption Erker
Zweifamilienhaus-Grundrisse mit 211 m² Grundfläche
Zweifamilienhaus-Grundriss mit 212 m² Grundfläche – Planungsoption Erker
Zweifamilienhaus-Grundrisse mit 225 m² Grundfläche – Planungsoption Flachdachanbau
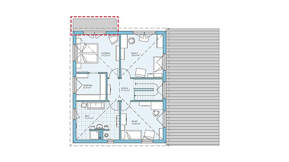
Zweifamilienhaus-Grundrisse mit 229 m² Grundfläche – Planungsoption Zwerchgiebel & Spitzboden
Zweifamilienhaus-Grundrisse mit 315 m² Grundfläche – Planungsoption Zwerchgiebel & Spitzboden


Grundrisse für Zweifamilienhäuser
Im Vergleich zu freistehenden Einfamilienhäusern kann die Planung eines Grundrisses für ein Zweifamilienhaus komplexer ausfallen. Dennoch gelten auch hier viele unserer 11 Tipps für den perfekten Grundriss.
Wichtig bei der Planung ist der Bebauungsplan! Informieren Sie sich vorab, ob Sie überhaupt ein Zweifamilienhaus auf Ihrem Grundstück bauen dürfen.
Wichtige Infos rund um unsere Zweifamilienhaus-Grundrisse
- Wie sollen die beiden Wohnungen angeordnet werden? Übereinander, nebeneinander oder vielleicht in einem Haupthaus und einem Anbau?
- Gibt es genug Fläche für Stellplätze für alle Wohneinheiten oder ist eine Tiefgarage nötig?
- Sollen beide Einheiten gleichviel Wohnfläche besitzen oder soll es eine größere und eine kleinere Wohneinheit geben?
- Gibt es eine gemeinsame Fläche wie Treppe und Keller oder ein gemeinsamer Technikraum?
- Gibt es separate Hauseingänge? Wenn nicht, wie großzügig sollen der Eingangsbereich und das Treppenhaus gestaltet werden?
Während bei einem Doppelhaus die beiden Wohneinheiten zwar nebeneinander liegen, aber dennoch eigenständig sind, ist ein Zweifamilienhaus enger verwoben. So gibt es meistens einen gemeinsamen Eingang und einen gemeinsam genutzten Keller. Ein weiterer Unterschied ist, dass auch der Garten meistens gemeinsam genutzt wird, was sich oftmals durch die Aufteilung der Wohneinheiten in Erdgeschoss und Obergeschoss ergibt. Durch geschickte Planung kann jedoch auch im Zweifamilienhaus ein weitgehend separiertes Wohnen ermöglicht werden.
Vielleicht finden Sie hier eine Alternative zu unseren Zweifamilienhaus-Grundrissen:
Fordern Sie ganz unverbindlich & kostenfrei unser Fertighaus-Katalog mit ausführlichen Hinweisen zum Unternehmen sowie alle Hausentwürfe oder Bauleistungs- und Ausstattungsbeschreibungen an. Darüber hinaus erhalten Sie in unserer Aktionsbroschüre die Preise für unsere Aktionshäuser.

























