Helles Zuhause im Doppelpack
Als Alternative zum offenen Wohn-, Ess- und Kochbereich kommt nicht nur eine geschlossene Küche infrage. Auch das Wohnzimmer kann separat untergebracht werden.
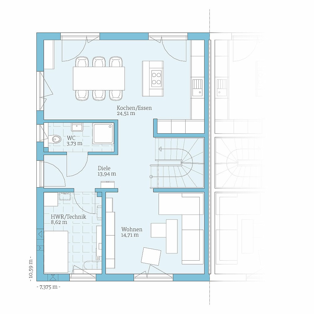
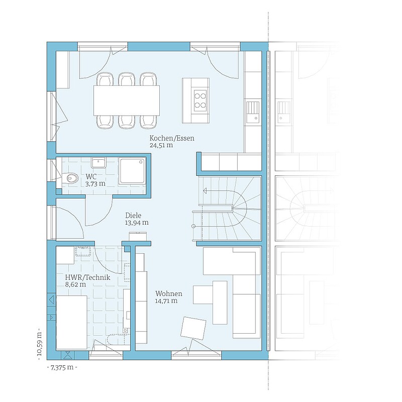
Unser Entwurf Doppelhaus 25-129 zeigt, wie das aussehen kann: In den Doppelhaushälften, die perfekt auf den Alltag einer vierköpfigen Familie zugeschnitten sind, ist zum Garten hin eine helle Wohnküche mit Zugang zur Terrasse eingeplant – groß genug für einen Esstisch, an dem Familie und Freunde bequem Platz finden. Das Wohnzimmer liegt offen auf der anderen Seite der Diele. So entsteht ein gemütlicher Rückzugsort, während die beiden Bereiche trotzdem miteinander in Verbindung stehen.
| Merkmale | |
|---|---|
| Dachform | Satteldach |
| Dachneigung | 25° |
| Kniestock | 200 cm |
| Wohnfläche je Einheit | 120,56 m² |
| Grundfläche je Einheit | 129,76 m² |
| Anzahl Geschosse | 1,5 |
Besonderheiten
& Extras
Dieses Haus ab Oktober 2024 live erleben
Damit Sie sich gleich mehrere Möglichkeiten für die Planung moderner Doppelhäuser live ansehen können, haben wir in unserem Musterhauspark am Firmensitz in Oberleichtersbach zwei unterschiedliche Doppelhaushälften mit flachem Satteldach und hohem Kniestock aneinandergebaut – eine Haushälfte basiert auf dem hier gezeigten Hausentwurf Doppelhaus 25-129, die zweite auf unserem Entwurf Doppelhaus 25-125.
Planungsoptionen
Wir planen Ihr individuelles Fertighaus ganz nach Ihren Wünschen. Hier finden Sie einige Planungsvorschläge für diesen Hausentwurf:
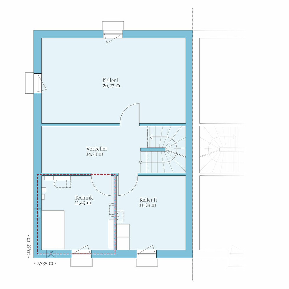
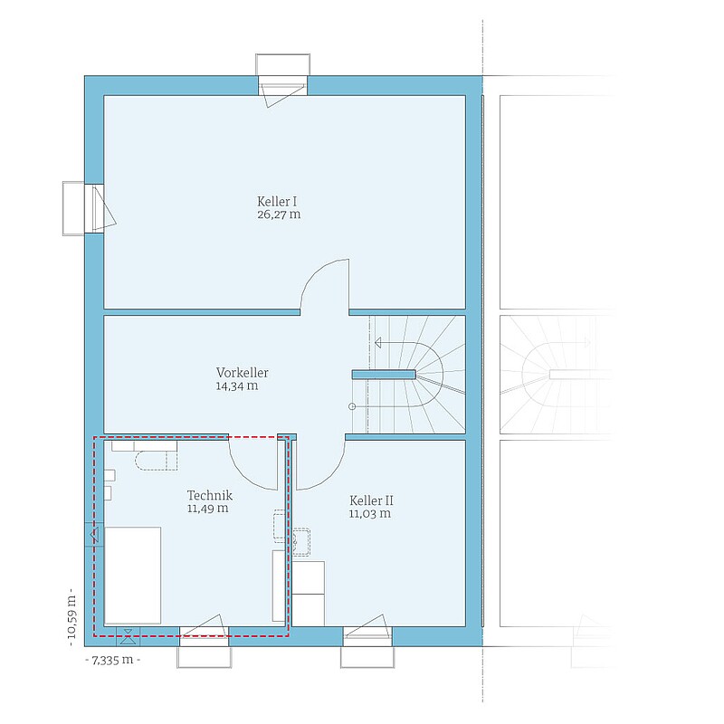
- Optionales Kellergeschoss: Hauswirtschafts- und Technikraum im Keller, dafür Arbeits- oder Gästezimmer im Erdgeschoss
- Carport
Beispiel
Grundrisse
Bekommen Sie durch die Hanse Haus-Grundrisse einen Eindruck von diesem Haus. Wir zeigen Ihnen unsere Planungsvorschläge, die natürlich auf Wunsch individuell umgeplant werden können.


Fordern Sie ganz unverbindlich & kostenfrei unser Fertighaus-Katalog mit ausführlichen Hinweisen zum Unternehmen sowie alle Hausentwürfe oder Bauleistungs- und Ausstattungsbeschreibungen an. Darüber hinaus erhalten Sie in unserer Aktionsbroschüre die Preise für unsere Aktionshäuser.
















