Heller Wohnraum in zwei Vollgeschossen
Das QNG⁺-Line Doppelhaus 125 bietet auf zwei Vollgeschossen viel lichtdurchfluteten Wohnraum für einen lebendigen Familienalltag.
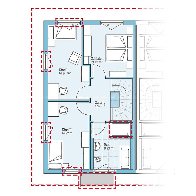
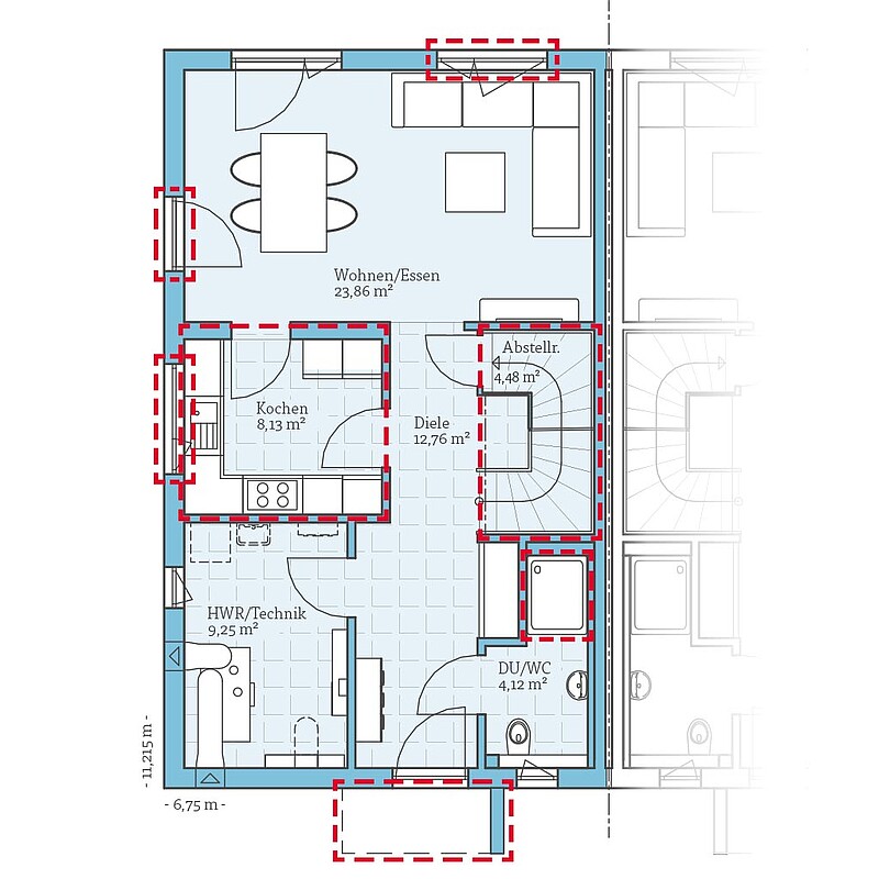
Im Erdgeschoss liegt der Essplatz zentral im offenen Wohn-, Ess- und Kochbereich, umgeben von großen Fensterflächen und mit direktem Zugang zum Garten. Im Obergeschoss sorgen Elternschlafzimmer, zwei gleich große Kinderzimmer und ein Familienbad dank vieler Fenster für helle Rückzugsorte.
Zwei Vollgeschosse ohne Dachschrägen, große Fensterflächen an drei Hausseiten und flexibel nutzbare Räume machen das Doppelhaus 125 besonders zukunftsfähig.
Bis zu 10 % sparen dank serieller Fertigung:
- Ausbauhaus: ab 252.329 € pro Haushälfte
- Technikfertig: ab 308.119 € pro Haushälfte
- Fast Fertig: ab 322.277 € pro Haushälfte
- Schlüsselfertig: ab 354.036 € pro Haushälfte
Ihr Vorteil:
Wir können garantieren, dass Ihr Fertighaus aus der QNG⁺-Line unter Einhaltung bestimmter Vorgaben eine QNG-Zertifizierung erhält. So ist die höchste Förderstufe der KfW-Förderung Wohneigentum für Familien möglich – mit zinsgünstigen Krediten für eine erleichterte Finanzierung.
Info:
Abbildungen und Grundrisse enthalten Sonderausstattungen und Anbauten, die nicht im Grundpreis enthalten sind.
| Merkmale | |
|---|---|
| Dachform | Satteldach |
| Dachneigung | 25 |
| Wohnfläche je Einheit | 118,60 m² |
| Grundfläche je Einheit | 125,14 m² |
| Anzahl Geschosse | 2 |
Ihr Plus an Komfort
Serielle Fertigung mit Flexibilität – auch ohne individuelle Planung stehen Ihnen bei unseren Häusern aus der QNG⁺-Line einige Planungsoptionen offen:
Erdgeschoss
- Größere Fenster
- Terrassentür statt Fenster
- Küche geschlossen
- Abstellraum unter der Treppe
- Dusche im Gäste-WC
- L-förmiges Haustürvordach
- Mit Keller: Arbeiten/Gast anstelle Technik
Obergeschoss
- Fenster bodentief statt Fenster
- Zusätzliches Fenster
- Größere Dusche im Bad
- Größerer Dachüberstand
Beispiel-
Grundrisse
Bekommen Sie durch die Grundrisse einen Eindruck von unserem Fertighaus aus der QNG⁺-Line.
Voraussetzung für die serielle, günstigere Fertigung ist, dass an den vordefinierten Grundrissen nur bestimmte Änderungen vorgenommen werden können. Entdecken Sie die möglichen Planungsoptionen für diesen Hausentwurf:

Inspiration für das passende Traumhaus
„Sie möchten weitere günstige Fertighäuser entdecken? Dann lernen Sie unsere komplette QNG⁺-Serie kennen – mit durchdachten Grundrissen und förderfähigen Konzepten.
Für noch mehr Inspiration und Variantenvielfalt stöbern Sie außerdem in unserer großen Fertighaus-Übersicht.“


Fordern Sie jetzt ganz unverbindlich und kostenfrei unseren Fertighaus-Katalog mit ausführlichen Hinweisen zum Unternehmen sowie alle Hausentwürfe oder Bauleistungs- und Ausstattungsbeschreibungen an.













