Raum zum Leben für alle, die mehr Platz schätzen
Im QNG⁺-Line Doppelhaus 174 entstehen je zwei Wohnungen pro Haushälfte. Die Flächen mit rund 75 m² im Erdgeschoss und 77 m² im Obergeschoss sind großzügig geschnitten und komfortabel ausgestattet.
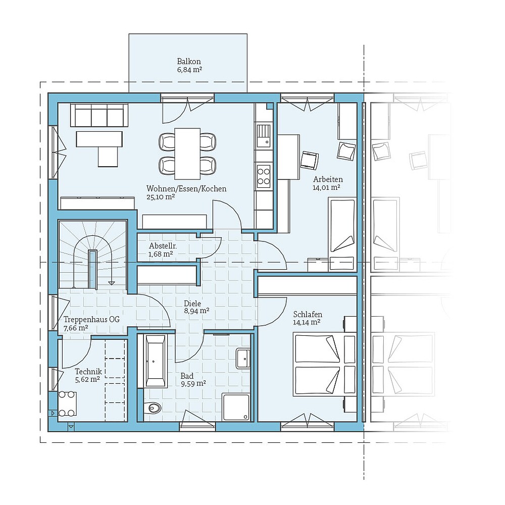
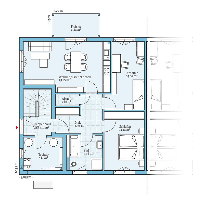
Jede Wohnung überzeugt mit klarer Gliederung: ein offener Wohn-, Ess- und Kochbereich, Schlafzimmer, Arbeitszimmer, Bad mit Wanne und Dusche, Abstellraum und Technikraum.
Die Erdgeschosswohnungen punkten mit einem überdachten Freisitz, die oberen mit einem Balkon – perfekt für Singles, Paare oder kleine Familien.
Bis zu 10 % sparen dank serieller Fertigung:
- Ausbauhaus: ab 318.070 € pro Haushälfte
- Technikfertig: ab 427.703 € pro Haushälfte
- Fast Fertig: ab 455.757 € pro Haushälfte
- Schlüsselfertig: ab 502.403 € pro Haushälfte
Ihr Vorteil:
Wir können garantieren, dass Ihr Fertighaus aus der QNG+-Line unter Einhaltung bestimmter Vorgaben eine QNG-Zertifizierung erhält. So ist die höchste Förderstufe der KfW-Förderung Wohneigentum für Familien möglich – mit zinsgünstigen Krediten für eine erleichterte Finanzierung.
Info:
Abbildungen und Grundrisse enthalten Sonderausstattungen und Anbauten, die nicht im Grundpreis enthalten sind.
| Merkmale | |
|---|---|
| Dachform | Satteldach |
| Dachneigung | 25 ° |
| Wohnfläche je Einheit | 160,67 m² |
| Grundfläche je Einheit | 187,56 m² |
| Anzahl Geschosse | 2 |
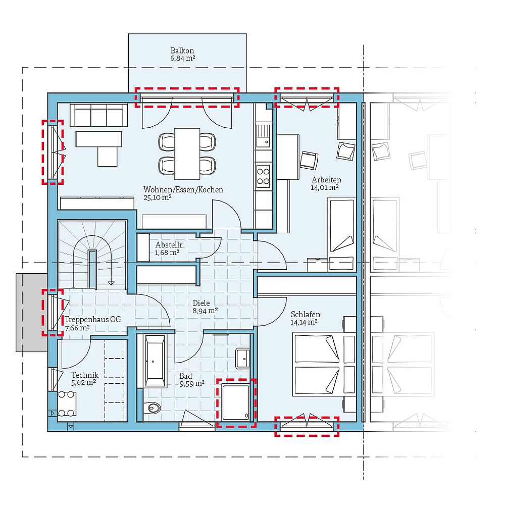
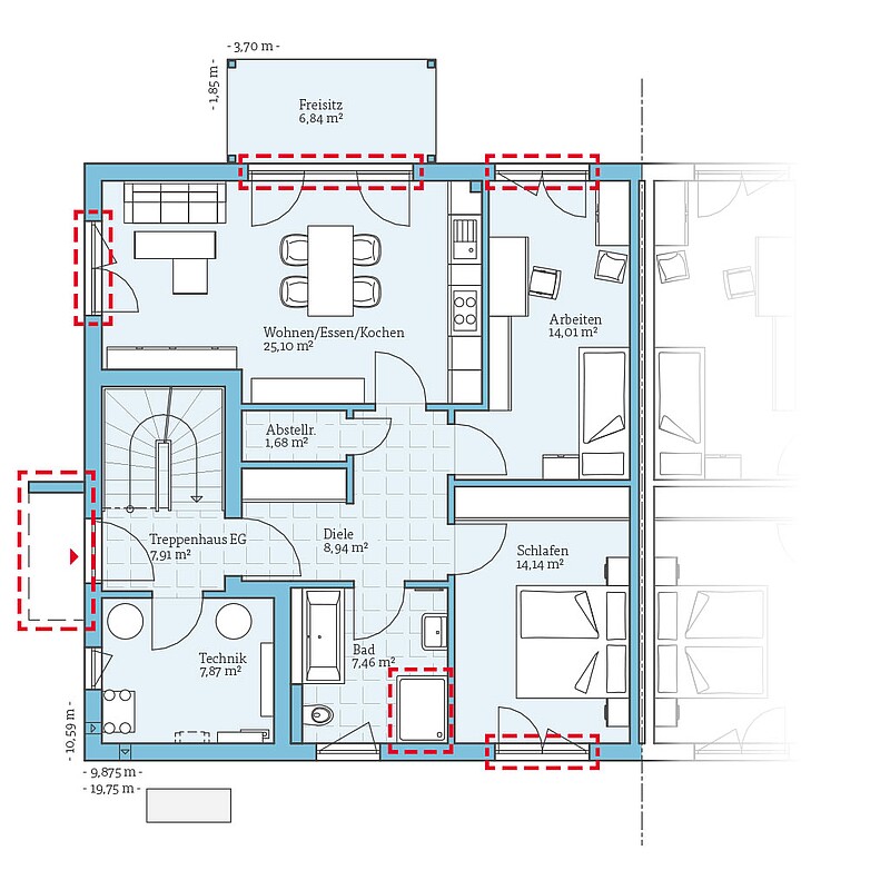
Ihr Plus an Komfort
Serielle Fertigung mit Flexibilität – auch ohne individuelle Planung stehen Ihnen bei unseren Häusern aus der QNG+-Line einige Planungsoptionen offen:
Erdgeschoss
- Größere Dusche im Badezimmer
- Terrassentür statt Fenster im Wohn-, Ess- und Kochbereich sowie Arbeits- und Schlafzimmer
- Größere Terrassentür im Wohn-, Ess- und Kochbereich
- Haustürvordach
Obergeschoss
- Größere Dusche im Badezimmer
- Größere Terrassentür im Wohn-, Ess- und Kochbereich
- Bodentiefe Fenster statt Fenster im Wohn-, Ess- und Kochbereich sowie Arbeits- und Schlafzimmer
- Größerer Dachüberstand
Beispiel-
Grundrisse
Bekommen Sie durch die Grundrisse einen Eindruck von unserem Fertighaus aus der QNG⁺-Line.
Voraussetzung für die serielle, günstigere Fertigung ist, dass an den vordefinierten Grundrissen nur bestimmte Änderungen vorgenommen werden können. Entdecken Sie die möglichen Planungsoptionen für diesen Hausentwurf:

Fordern Sie ganz unverbindlich & kostenfrei unser Fertighaus-Katalog mit ausführlichen Hinweisen zum Unternehmen sowie alle Hausentwürfe oder Bauleistungs- und Ausstattungsbeschreibungen an. Darüber hinaus erhalten Sie in unserer Aktionsbroschüre die Preise für unsere Aktionshäuser.













