Viel Raum für Familienleben und gemeinsame Momente
Das Doppelhaus 179 aus unserer QNG⁺-Line bietet mit ca. 151 m² Wohnfläche pro Haushälfte viel Platz zum Wohlfühlen.
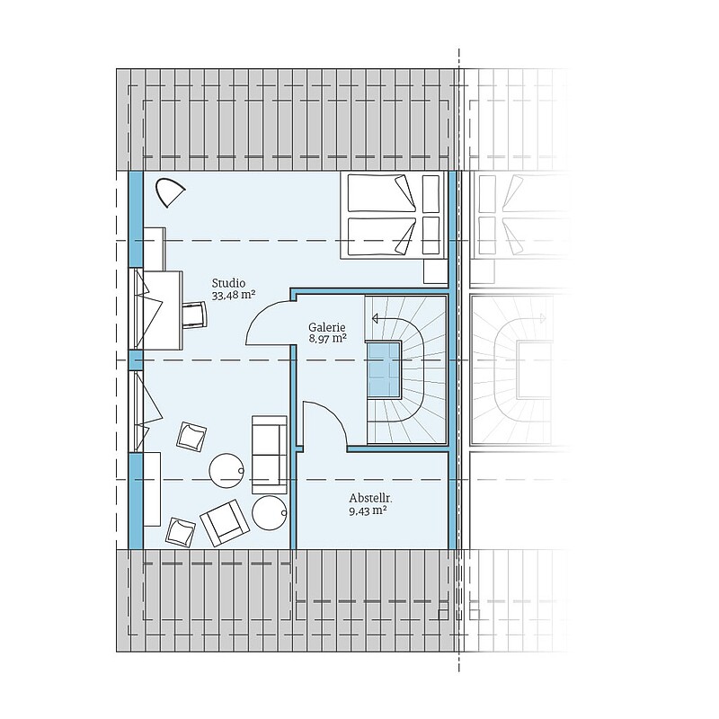
Zwei helle Vollgeschosse und ein ca. 33 m² großes Studio im Dachgeschoss schaffen flexible Nutzungsmöglichkeiten – ob als Gästezimmer, Rückzugsort oder Hobbyraum. Ein zusätzlicher Abstellraum sorgt für praktischen Stauraum.
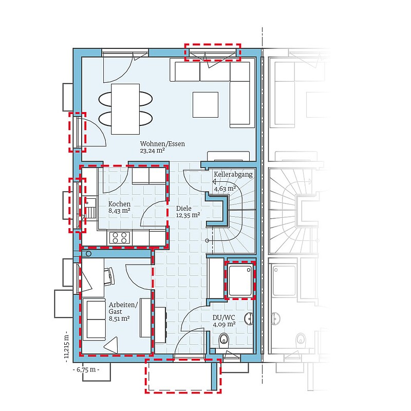
Das Gäste-WC im Erdgeschoss kann auf Wunsch zu einem Duschbad erweitert werden – ideal als zweite Duschmöglichkeit für Familien mit Kindern oder häufigem Besuch.
Bis zu 10 % sparen dank serieller Fertigung:
- Ausbauhaus: ab 277.166 € pro Haushälfte
- Technikfertig: ab 351.006 € pro Haushälfte
- Fast Fertig: ab 374.294 € pro Haushälfte
- Schlüsselfertig: ab 416.012 € pro Haushälfte
Ihr Vorteil:
Wir können garantieren, dass Ihr Fertighaus aus der QNG+-Line unter Einhaltung bestimmter Vorgaben eine QNG-Zertifizierung erhält. So ist die höchste Förderstufe der KfW-Förderung Wohneigentum für Familien möglich – mit zinsgünstigen Krediten für eine erleichterte Finanzierung.
Hinweis:
Abbildungen und Grundrisse enthalten Sonderausstattungen und Anbauten, die nicht im Grundpreis enthalten sind.
| Merkmale | |
|---|---|
| Dachform | Satteldach |
| Dachneigung | 35° |
| Kniestock | 24 cm |
| Wohnfläche je Einheit | 151,14 m² |
| Grundfläche je Einheit | 176,92 m² |
| Anzahl Geschosse | 2,5 |
Ihr Plus an Komfort
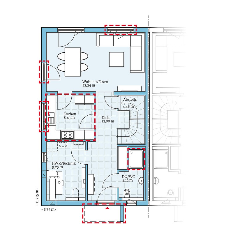
Serielle Fertigung mit Flexibilität – auch ohne individuelle Planung stehen Ihnen bei unseren Häusern aus der QNG+-Line einige Planungsoptionen offen:
Erdgeschoss
- Größere Fenster im Wohn-, Ess- und Kochbereich
- Terrassentür statt Fenster im Wohn-, Ess- und Kochbereich
- Küche geschlossen
- Größere Dusche im Badezimmer
- Haustürvordach
- Mit Keller: Gäste- oder Arbeitszimmer statt Hauswirtschafts- und Technikraum
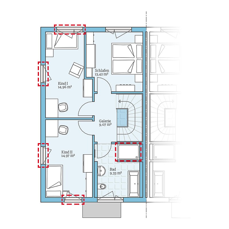
Obergeschoss
- Größere Dusche im Badezimmer
- Bodentiefe Fenster statt Fenster in den Kinderzimmern
- Zusätzliche Fenster in den Kinderzimmern
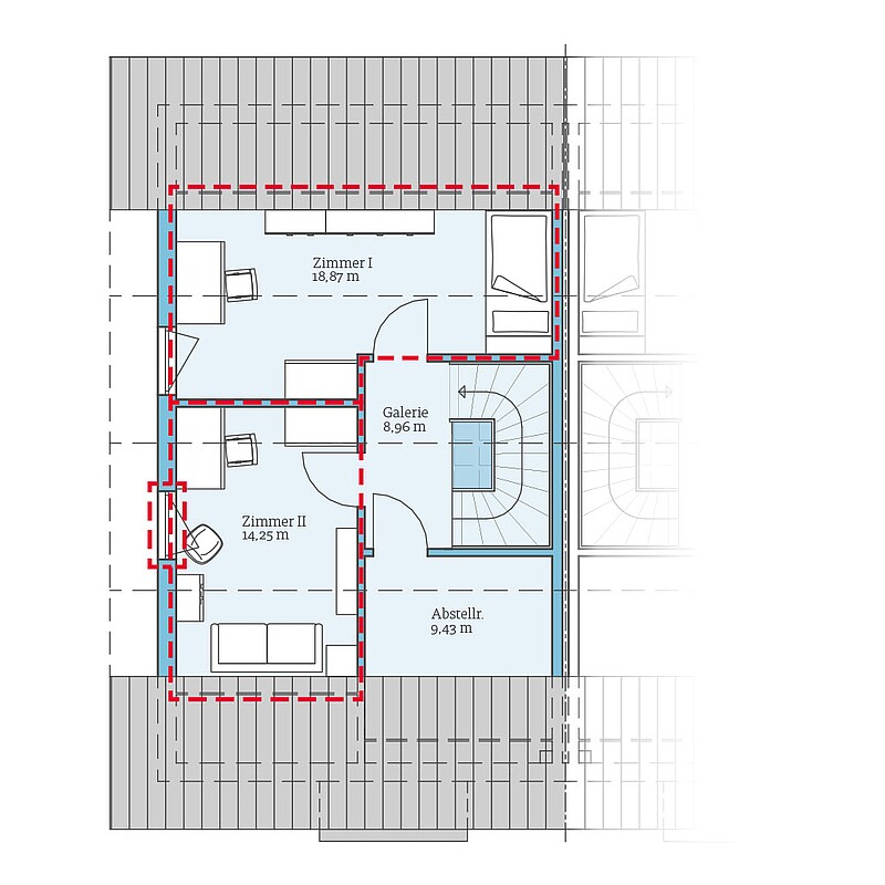
Dachgeschoss
- Bodentiefe Fenster statt Fenster im Studio
- Zwei Zimmer statt Studio
- Größerer Dachüberstand
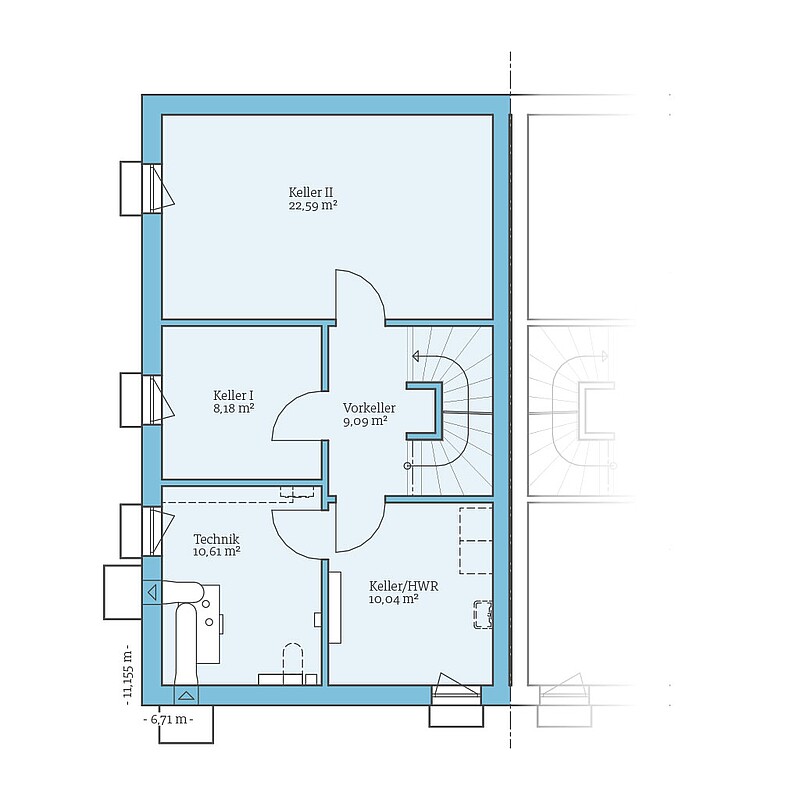
Optionales Kellergeschoss
- Mit zwei Kellerräumen, Vorkeller, Technikraum sowie einem Hauswirtschafts- oder Kellerraum
Beispiel-
Grundrisse
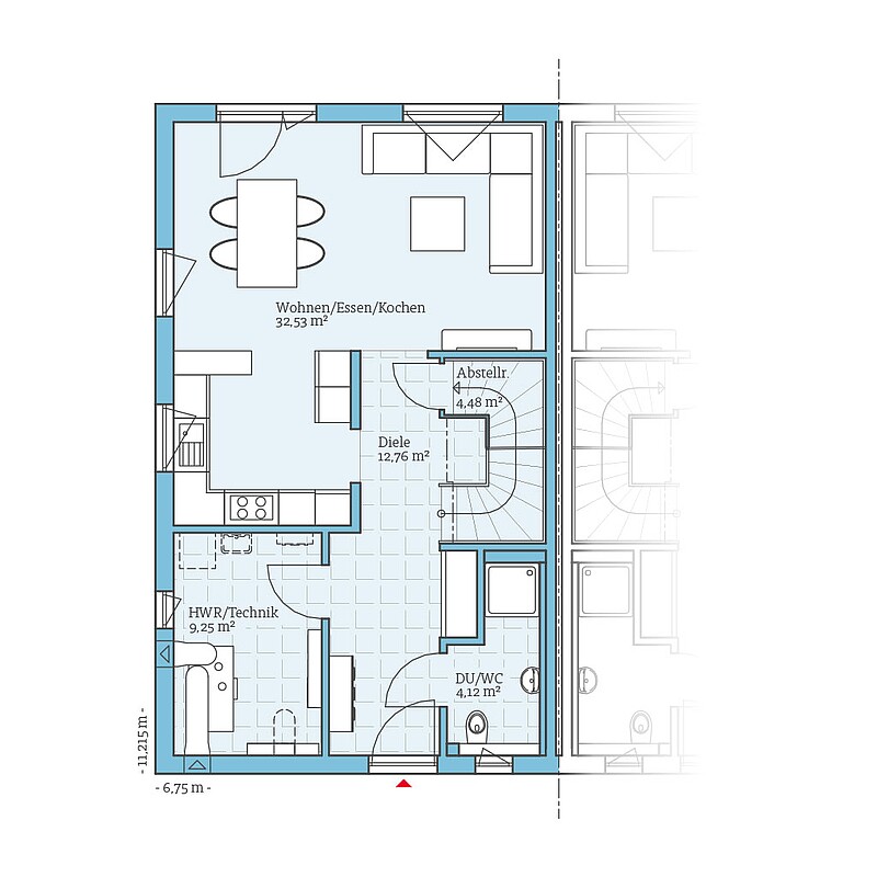
Bekommen Sie durch die Grundrisse einen Eindruck von unserem Fertighaus aus der QNG⁺-Line.
Voraussetzung für die serielle, günstigere Fertigung ist, dass an den vordefinierten Grundrissen nur bestimmte Änderungen vorgenommen werden können. Entdecken Sie die möglichen Planungsoptionen für diesen Hausentwurf:

Fordern Sie ganz unverbindlich & kostenfrei unser Fertighaus-Katalog mit ausführlichen Hinweisen zum Unternehmen sowie alle Hausentwürfe oder Bauleistungs- und Ausstattungsbeschreibungen an. Darüber hinaus erhalten Sie in unserer Aktionsbroschüre die Preise für unsere Aktionshäuser.

















