QNG⁺-Line: Mehr Raum für maximalen Wohnkomfort
Die geräumigste Doppelhaus-Option aus unser QNG+-Line ist das Doppelhaus 195. Dafür haben wir unser Doppelhaus 179 einfach noch ein wenig vergrößert – für alle, die gerne besonders großzügig wohnen.
In diesen modernen Doppelhaushälften kann man sich einfach nur wohlfühlen: Zwei Vollgeschosse mit viel Tageslicht und ein flexibel nutzbares Studio unter dem Dach warten darauf, mit viel Leben und Ihren Wohnideen gefüllt zu werden.
Bis zu 10 % sparen dank serieller Fertigung
- Ausbauhaus: ab 301.520 € pro Haushälfte
- Technikfertig: ab 381.172 € pro Haushälfte
- Fast Fertig: ab 405.362 € pro Haushälfte
- Schlüsselfertig: ab 452.998 € pro Haushälfte
Ihr Vorteil
Wir können garantieren, dass Ihr Fertighaus aus der QNG+-Line unter Einhaltung bestimmter Vorgaben eine QNG-Zertifizierung erhält. So ist die höchste Förderstufe der KfW-Förderung Wohneigentum für Familien möglich und Sie profitieren von zinsgünstigen Krediten, die Ihnen die Finanzierung noch einmal zusätzlich erleichtern.
Info:
Abbildungen und Grundrisse enthalten Sonderausstattungen und Anbauten, die nicht im Grundpreis enthalten sind.
| Merkmale | |
|---|---|
| Dachform | Satteldach |
| Dachneigung | 35 |
| Kniestock | 24 cm |
| Wohnfläche je Einheit | 167,50 m² |
| Grundfläche je Einheit | 194,00 m² |
| Anzahl Geschosse | 2,5 |
Planungs-
möglichkeiten
Da die Häuser aus der QNG+-Line seriell gefertigt werden, ist keine individuelle Planung möglich. Trotzdem stehen Ihnen einige Planungsmöglichkeiten offen:
Erdgeschoss
- L-förmiges Haustürvordach
- Größere Fenster
- Geschlossene Küche
- Größere Dusche im Duschbad
- Mit Keller: Gäste-/Arbeitszimmer statt Hauswirtschafts- und Technikraum
Obergeschoss
- Größere Dusche im Badezimmer
- Zusätzliche Fenster
Dachgeschoss
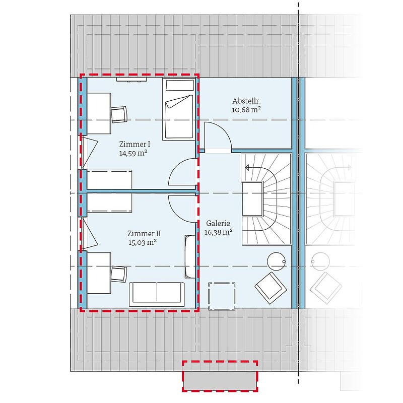
- Zwei Zimmer statt Studio
Beispiel
Grundrisse
Bekommen Sie durch die Grundrisse einen Eindruck von unserem Fertighaus aus der QNG⁺-Line.
Voraussetzung für die serielle, günstigere Fertigung ist, dass an den vordefinierten Grundrissen nur bestimmte Änderungen vorgenommen werden können. Entdecken Sie die unterschiedlichen Planungsoptionen für diesen Hausentwurf!

Fordern Sie ganz unverbindlich & kostenfrei unser Fertighaus-Katalog mit ausführlichen Hinweisen zum Unternehmen sowie alle Hausentwürfe oder Bauleistungs- und Ausstattungsbeschreibungen an. Darüber hinaus erhalten Sie in unserer Aktionsbroschüre die Preise für unsere Aktionshäuser.


















