QNG⁺-Line: Gute Raumaufteilung für kurze Wege und hohen Wohnkomfort
Das QNG⁺‑Line Variant 30‑141 bietet auf rund 132 m² Wohnfläche zeitgemäße Architektur, viel Tageslicht und eine klar strukturierte Planung – ideal für Eltern und zwei Kinder.
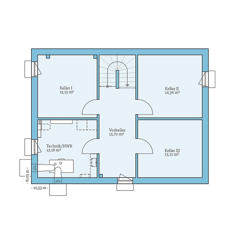
Im Erdgeschoss: offener Wohn‑, Ess‑ und Kochbereich mit Licht von zwei Seiten und Verbindung in den Garten, Diele mit Platz für Garderobe, Technikraum mit HWR‑Zeile, halbgewendelte Treppe sowie ein ca. 10 m² großes Gäste-/Arbeitszimmer.
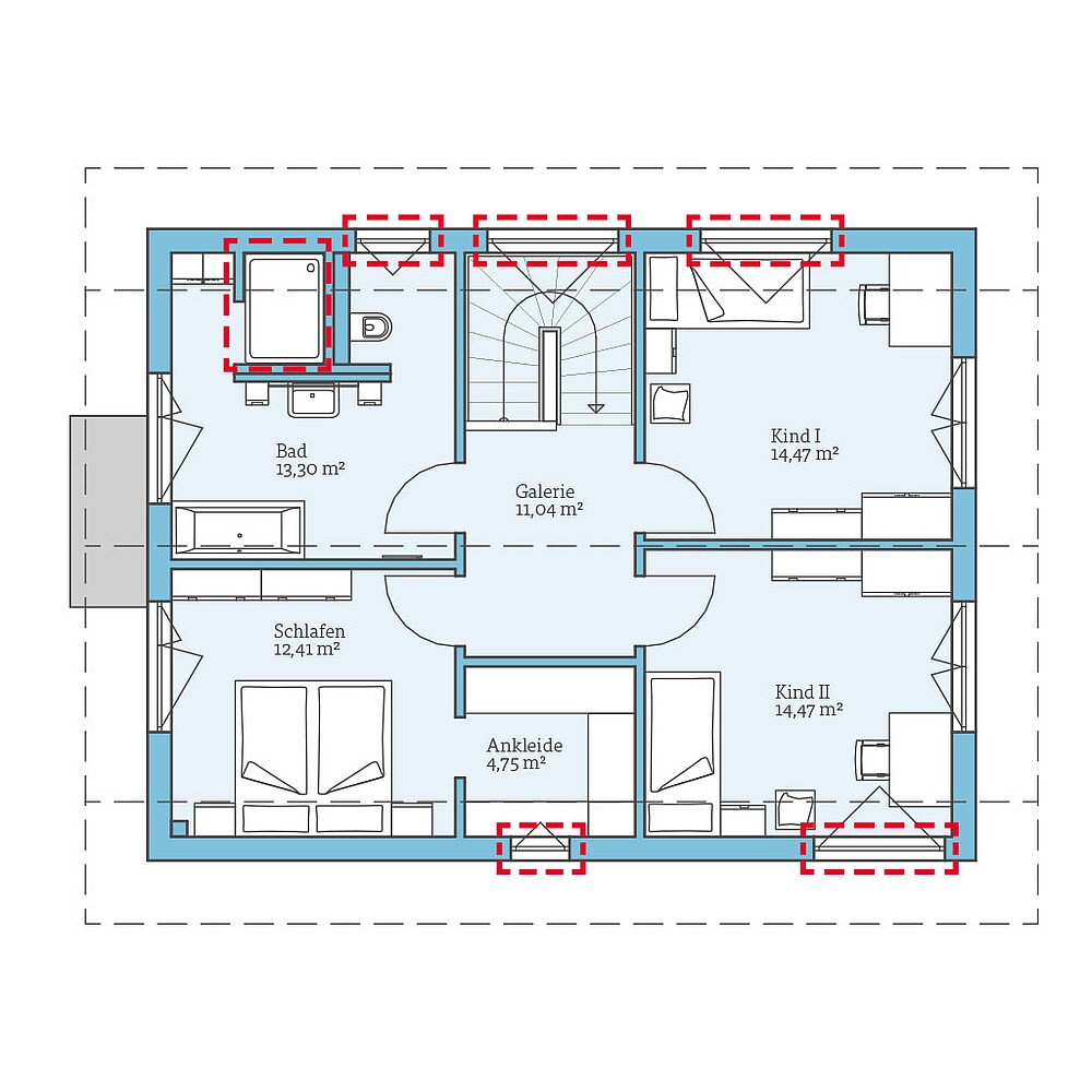
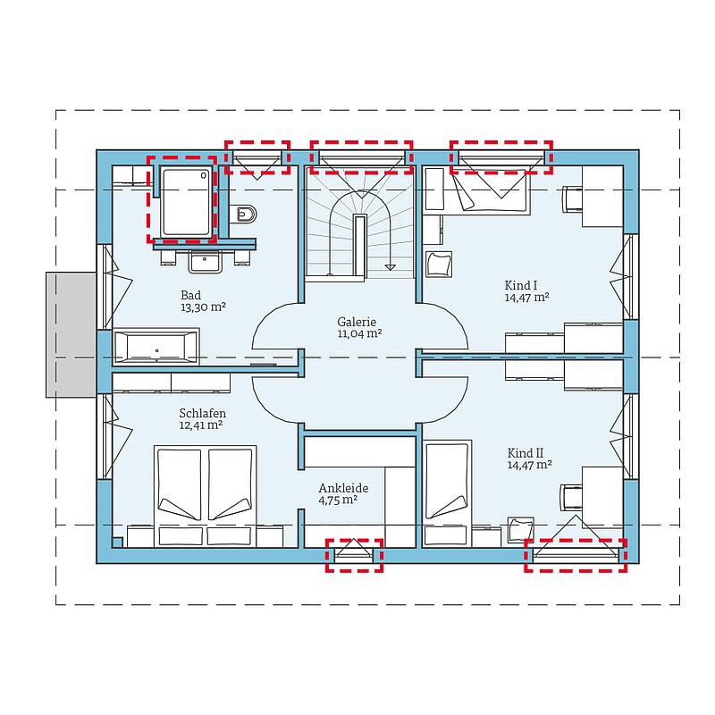
Im Dachgeschoss erschließt eine geräumige Galerie vier Zimmer – zwei gleich große Kinderzimmer mit hohem Kniestock, ein Elternschlafzimmer mit separater Ankleide und ein Familienbad mit T‑Lösung.
Bis zu 10 % sparen dank serieller Fertigung
- Ausbauhaus: ab 250.125 €
- Technikfertig: ab 305.965 €
- Fast Fertig: ab 325.549 €
- Schlüsselfertig: ab 360.864 €
Ihr Vorteil
Wir können garantieren, dass Ihr Fertighaus aus der QNG+-Line unter Einhaltung bestimmter Vorgaben eine QNG-Zertifizierung erhält. So ist die höchste Förderstufe der KfW-Förderung Wohneigentum für Familien möglich und Sie profitieren von zinsgünstigen Krediten, die Ihnen die Finanzierung noch einmal zusätzlich erleichtern.
Info:
Abbildungen und Grundrisse enthalten Sonderausstattungen und Anbauten, die nicht im Grundpreis enthalten sind.
| Merkmale | |
|---|---|
| Dachform | Satteldach |
| Dachneigung | 30° |
| Kniestock | 200 |
| Wohnfläche | 131,38 m² |
| Grundfläche | 141,14 m² |
| Anzahl Geschosse | 1,5 |
Planungs-
möglichkeiten
Da die Häuser aus der QNG+-Line seriell gefertigt werden, ist keine individuelle Planung möglich. Trotzdem stehen Ihnen einige Planungsmöglichkeiten offen:
Ergeschoss
- Abstellraum unter der Treppe
- L-förmiges Haustürvordach und -Seitenteil
- Dusche im Gäste-WC
- Größere Fenster und Terrassentür
Dachgeschoss
- Größerer Dachüberstand
- Größere Dusche
- Zusätzliches Fenster
Grundrisse
Bekommen Sie durch die Grundrisse einen Eindruck von unserem Fertighaus aus der QNG⁺-Line.
Voraussetzung für die serielle, günstigere Fertigung ist, dass an den vordefinierten Grundrissen nur bestimmte Änderungen vorgenommen werden können. Entdecken Sie die unterschiedlichen Planungsoptionen für diesen Hausentwurf!

Fordern Sie ganz unverbindlich & kostenfrei unser Fertighaus-Katalog mit ausführlichen Hinweisen zum Unternehmen sowie alle Hausentwürfe oder Bauleistungs- und Ausstattungsbeschreibungen an. Darüber hinaus erhalten Sie in unserer Aktionsbroschüre die Preise für unsere Aktionshäuser.

















