Individuell planbare Wohnkonzepte für jede Grundstückssituation
Hausentwürfe können ganz einfach gespiegelt werden, um den Grundriss an die jeweils gegebene Grundstückssituation anzupassen und optimal an den Himmelsrichtungen auszurichten. Ein Beispiel: Unser Musterhaus Variant 35-163, das im Unger-Park in Dresden besichtigt werden kann, ist der gespiegelte Entwurf zu unserem Musterhaus Variant 35-161 in Mannheim.
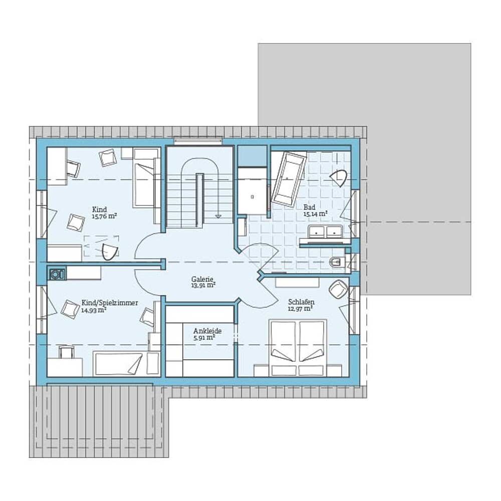
Das Herzstück des Variant 35-163 ist der offen gestaltete Wohn-, Ess- und Kochbereich. In unserem Musterhaus in Dresden schafft ein verglaster Erker zusätzlichen Raum und lässt viel Licht herein. Mit einem Kniestock von 140 cm verfügt das Haus über ein geräumiges Obergeschoss, in dem neben einem Schlafzimmer mit angrenzendem Ankleidezimmer und zwei Kinderzimmern auch ein großzügiges Wellnessbad Platz findet.
| Merkmale | |
|---|---|
| Dachform | Satteldach |
| Dachneigung | 35° |
| Kniestock | 140 cm |
| Wohnfläche | 173,92 m² |
| Grundfläche | 192,40 m² |
| Anzahl Geschosse | 1,5 |
Besonderheiten
& Extras
Dieses Haus live erleben:
Ungar-Park Dresden
Zur Kuhbrücke 11
01458 Ottendorf-Okrilla
Telefon 03520 5704603
Anbaumöglichkeiten:
- Erker
- Haustürvordach
- Büroanbau
Beispiel
Grundrisse
Bekommen Sie durch die Grundrisse einen Eindruck von diesem Haus. Wir zeigen Ihnen unsere Planungsvorschläge, die natürlich auf Wunsch individuell umgeplant werden können.
Zusätzlich haben wir für dieses Haus interessante Planungsoptionen vorbereitet. Klicken Sie sich durch und sehen Sie selbst, welche Varianten wir uns überlegt haben.


Fordern Sie ganz unverbindlich & kostenfrei unser Fertighaus-Katalog mit ausführlichen Hinweisen zum Unternehmen sowie alle Hausentwürfe oder Bauleistungs- und Ausstattungsbeschreibungen an. Darüber hinaus erhalten Sie in unserer Aktionsbroschüre die Preise für unsere Aktionshäuser.



















