Ganz groß auf kleinen Grundstücken
Es muss nicht immer ein großes Grundstück sein, wenn man eigene Wohnvorstellungen verwirklichen möchte.
Mit einem Hausentwurf wie dem Variant 45-130 aus unserer Hanse Haus Serie Variant mit Satteldach sind auch kleinere Baulücken oder geteilte Baugrundstücke optimal zu nutzen.
Durch die offene Gestaltung des Grundrisses wirkt gerade das Erdgeschoss trotz der kompakten Außenmaße wesentlich größer. Auch auf einen praktischen Hauswirtschaftsraum und ein separates Gäste-WC müssen Sie nicht verzichten.
Das Haus ist von uns so geplant, dass es kostengünstig auf einer Bodenplatte gebaut werden kann.
| Merkmale | |
|---|---|
| Dachform | Satteldach |
| Dachneigung | 45° |
| Kniestock | 50 cm |
| Wohnfläche | 114,18 m² |
| Grundfläche | 129,61 m² |
| Anzahl Geschosse | 1,5 |
Anbau
Möglichkeiten
- Arbeits- oder Gästezimmer
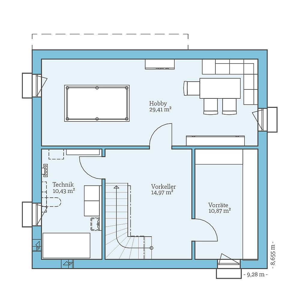
- Keller mit Heiztechnik, Hobbyräumen, Vorratsräumen oder Werkstatt
- Zwerchgiebel
Beispiel
Grundrisse
Bekommen Sie durch die Grundrisse einen Eindruck von diesem Haus. Wir zeigen Ihnen unsere Planungsvorschläge, die natürlich auf Wunsch individuell umgeplant werden können.
Zusätzlich haben wir für dieses Haus interessante Planungsoptionen vorbereitet. Klicken Sie sich durch und sehen Sie selbst, welche Varianten wir uns überlegt haben.


Fordern Sie ganz unverbindlich & kostenfrei unser Fertighaus-Katalog mit ausführlichen Hinweisen zum Unternehmen sowie alle Hausentwürfe oder Bauleistungs- und Ausstattungsbeschreibungen an. Darüber hinaus erhalten Sie in unserer Aktionsbroschüre die Preise für unsere Aktionshäuser.
















