Das Vita 165 Pultdachhaus: bauen nach Wunsch
Ein Hausentwurf, viele Variationsmöglichkeiten: Der Grundriss des Vita 165 basiert auf der Planung der Villa 165, des Hanse Haus Musterhauses in Frechen bei Köln.
Das ist der Vorteil der individuellen Architektenplanung bei Hanse Haus: Ihnen gefällt der Grundriss eines Hauses, aber Sie hätten statt eines Walmdaches lieber ein moderneres Pultdach oder Flachdach? Gerade bei zweigeschossigen Häusern lassen sich die Dachformen meist problemlos umplanen und das Haus bekommt dadurch einen ganz neuen Charakter.
Lassen Sie sich also ruhig von unterschiedlichen Entwürfen und Stilrichtungen inspirieren und planen Sie mit Hanse Haus genau Ihr Haus.
| Merkmale | |
|---|---|
| Dachform | Pultdach |
| Dachneigung | 5° |
| Wohnfläche | 156,54 m² |
| Grundfläche | 164,23 m² |
| Anzahl Geschosse | 2 |
Anbau
Möglichkeiten
- Pultdachanbau
Beispiel
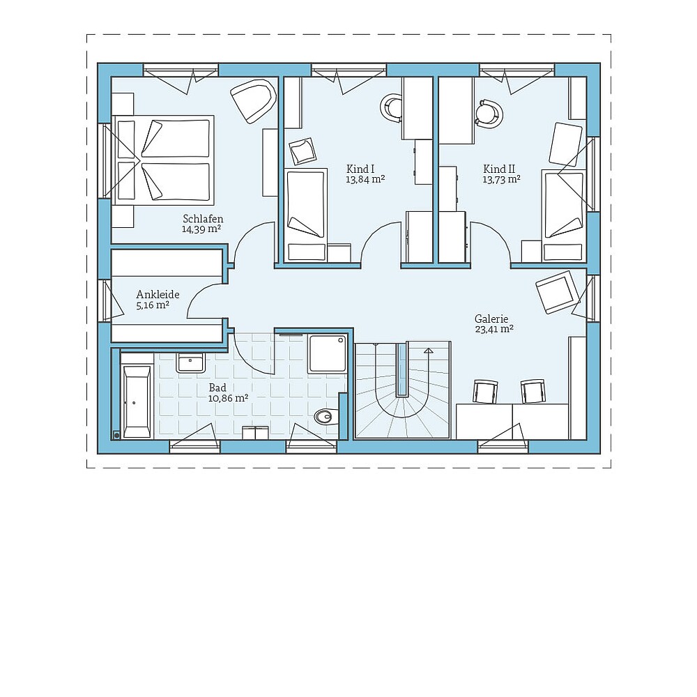
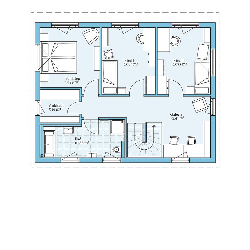
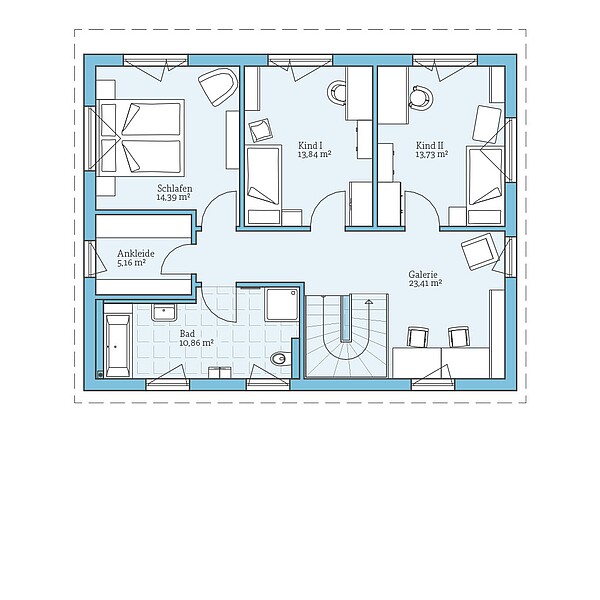
Grundrisse
Bekommen Sie durch die Grundrisse einen Eindruck von diesem Haus. Wir zeigen Ihnen unsere Planungsvorschläge, die natürlich auf Wunsch individuell umgeplant werden können.
Zusätzlich haben wir für dieses Haus interessante Planungsoptionen vorbereitet. Klicken Sie sich durch und sehen Sie selbst, welche Varianten wir uns überlegt haben.


Fordern Sie ganz unverbindlich & kostenfrei unser Fertighaus-Katalog mit ausführlichen Hinweisen zum Unternehmen sowie alle Hausentwürfe oder Bauleistungs- und Ausstattungsbeschreibungen an. Darüber hinaus erhalten Sie in unserer Aktionsbroschüre die Preise für unsere Aktionshäuser.















