Besuchen Sie uns im Musterhaus Habichtswald bei Kassel
Hanse Haus in Habichtswald
Sie möchten das Projekt Hausbau in Angriff nehmen und mehr über Hanse Haus als Baupartner erfahren? Unser Musterhaus in Habichtswald bietet Ihnen die Gelegenheit, ein modernes Doppelhaus mit Satteldach zu besichtigen: den Hausentwurf Doppelhaus 35-130. Vereinbaren Sie ein kostenloses, unverbindliches Beratungsgespräch oder schauen Sie sich ganz in Ruhe um und stellen uns Ihre Fragen. Wir freuen uns auf Sie!

Termine in der Nähe von Habichtswald

Doppelhaus als Musterhaus in Habichtswald
Unser Musterhaus in Habichtswald zeigt, wie man mit einem modernen Doppelhaus auch aus kleinen Grundstücken das Beste herausholen kann. Die beiden Haushälten verfügen jeweils über großzügige 139 m² Wohnfläche.
Die Grundrisse der Doppelhaushälten sind identisch und bieten Platz für die ganze Familie. Die Zwerchgiebel sorgen für noch mehr Raum und Tageslicht unter dem Dach und lockern gleichzeitig die Außenansicht der versetzt platzierten Haushäften auf.
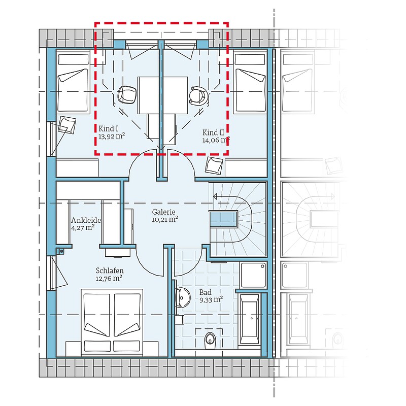
Erdgeschoss
- Geräumige Diele
- Gäste-WC mit Dusche
- Offener Wohn-, Ess- und Kochbereich
- Abstellraum
- Hauswirtschafts- und Technikraum
Dachgeschoss
- Galerie
- Zwei Kinderzimmer
- Elternschlafzimmer mit Ankleide
- Familienbad mit Badewanne und Dusche
Ihr Besuch in unserem Musterhaus in Habichtswald
Warum sich ein Besuch im Musterhaus in Habichtswald bei Kassel lohnt
Der Besuch im Musterhaus Habichtswald bei Kassel kann einen wichtigen Beitrag zur Entscheidung für einen Fertighausanbieter, einen Haustyp oder einen Architekturstil leisten.
Sie haben die Möglichkeit, die Wohnatmosphäre, die Raumaufteilung, die Dimensionen und die Hausausstattung in unserem Ausstellungshaus live zu erleben und Ihre Fragen einem kompetenten Fachberater vor Ort zu stellen – und so anhand von persönlichen Eindrücken herauszufinden, wie Sie sich Ihr Traumhaus vorstellen.
Tipps für das Musterhaus in Habichtswald
Ein entspannter und gleichzeitig produktiver Besuch im Musterhaus in Habichtswald – das gelingt mit unseren Tipps:
- Bringen Sie ausreichend Zeit mit, um entspannt durch die Musterhäuser schlendern zu können und alle Eindrücke in Ruhe auf sich wirken zu lassen.
- Machen Sie Notizen oder Fotos, wenn Ihnen etwas an einem Musterhaus besonders gut gefällt oder bei der Besichtigung Fragen aufkommen. Unsere Fachberater vor Ort stehen Ihnen gerne mit Rat und Tat zur Seite.
- Wenn Sie bereits konkrete Fragen zu unseren Fertighäusern oder rund um den Hausbau mit Hanse Haus haben, vereinbaren Sie am besten bereits im Voraus einen Beratungstermin bei einem unserer Fachberater.
Leistungen
Unser Anspruch ist es, Sie sicher und entspannt durch die gesamte Bauphase zu begleiten. Ihr Projekt beginnt für uns schon lange bevor die ersten Wände gefertigt werden.
Von den Planungsgesprächen über die Detailplanung des Hauses bis hin zur Erstellung von Ausführungsplänen, statischen Berechnungen und Wärmeschutznachweisen übernehmen wir eine Vielzahl von wertvollen Serviceleistungen für Sie. Dazu gehören unter anderem:
- Bedarfsanalyse
- Barrierefreiheit
- Vorentwurfsplanung und Angebot
- Festpreisgarantie 15 Monate
- Bauantrag
- Wärmeschutzberechnung / Energiebedarfsausweis
- Baugrundgutachten
- Werkplanung
- Deckenaussparung
- Ausstattungsberatung / Bemusterung
- Statik
- Beantragung der Hausanschlüsse
- Anlaufberatung
- Bauleitung, Überwachung und Betreuung
- Baustelleneinrichtung
- Versicherungsschutz
- Montage
- Luftdichtigkeitsprüfung (Blower-Door-Test)
- DGNB-Zertifizierung
- Garantie/Gewährleistung
- Kundendienst
Die einzelnen Leistungen können von der jeweiligen Ausbaustufe abweichen. Weitere Infos zu den Inklusivleistungen finden Sie auf unserer Website.
- Über 38.600 zufriedene Hanse Haus-Bauherren
- Fairster Fertighausanbieter zum 13. Mal in Folge
- Ausgezeichnetes Preis-Leistungs-Verhältnis

- Ghazarian, Patrick
Himmelsborn 1, 34317 Habichtswald
Öffnungszeiten: nach Vereinbarung
Häuser: Doppelhaus 35-130
- Ghazarian, Patrick
Himmelsborn 1, 34317 Habichtswald
Öffnungszeiten: nach Vereinbarung
Häuser: Doppelhaus 35-130
Vereinbaren Sie einen unverbindlichen & kostenfreien Termin und erhalten Sie zusätzlich als Download oder per Post unseren Fertighaus-Katalog mit allen Hausentwürfen und ausführlichen Infos zum Hausbau mit Hanse Haus. In unserer Aktionsbroschüre finden Sie die Preise für unsere Aktionshäuser.









