Spacious living with lots of room for your ideas
With 184 m² of floor space, this house from the Hanse Haus “Variant” series offers lots of room for the entire family.
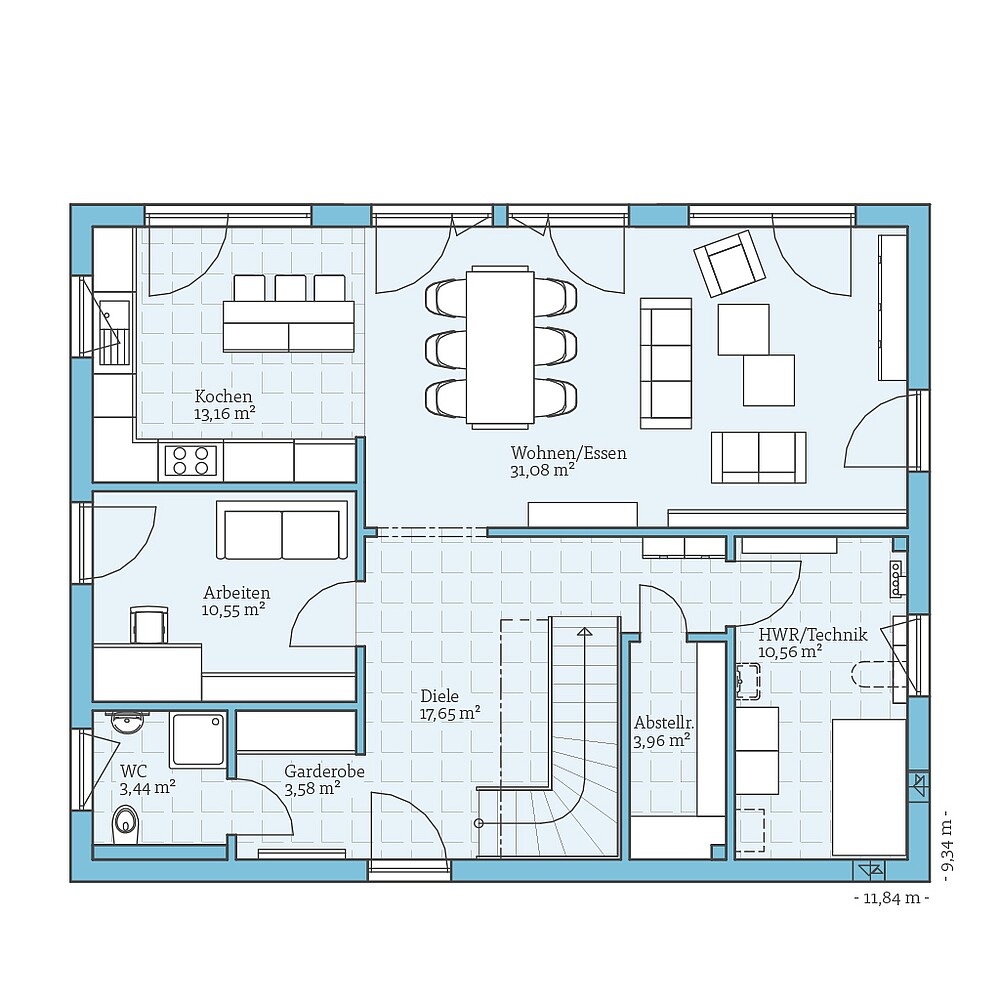
On the ground floor, the bright and friendly design of the open living, dining and cooking area creates a pleasant living environment. The loft features three children’s rooms, the family bathroom and the master bedroom with a dressing room.
Ideal if you like to have guests: the additional guest room or study on the ground floor and the guest bathroom with optional shower.
| Characteristics | |
|---|---|
| Roof form | Pitched roof |
| Roof inclination | 35 ° |
| Jamb wall | 120 cm |
| Living space | 163,86 m² |
| Base area | 182,02 m² |
| Number of floors | 1,5 |
Possible
extensions:
- Wall dormer
Floor plan
example
Get an impression of this house through the floor plans. We will show you our planning suggestions, which of course can be customised on request.
We have also prepared some interesting planning options for this house. Click through them and see for yourself which variants we have come up with.

What our clients say about our houses
references

Request without obligation & free of charge our prefabricated house catalog with detailed information about the company as well as all house designs or construction performance and equipment descriptions. In addition, you will find the prices for our campaign houses in our campaign brochure.








![[Translate to Englisch:] [Translate to Englisch:]](/fileadmin/_processed_/f/0/csm_Familie_Frech_Haus_96ada4ce11.jpg)







