Build an energy-saving home and live comfortably with the pent roof Vita 138
Energy-efficient construction starts with the planning.
The Vita 138 underscores what really matters in house planning: the basic structure has a very favourable ratio of outer wall surface to building volume due to its cubic shape, and the building’s north side has hardly any windows, while the south side opens to the sun.
The living area faces south in this pent roof house, allowing the sunlight to create a pleasant atmosphere.
On request, a vestibule can be built which prevents cold from the outside entering the living area when entering the house.
| Characteristics | |
|---|---|
| Roof form | Pent roof |
| Roof inclination | 5 ° |
| Living space | 132,69 m² |
| Base area | 138,72 m² |
| Number of floors | 2 |
Possible
extensions:
- Vestibule
- Create a study by detaching the technical room.
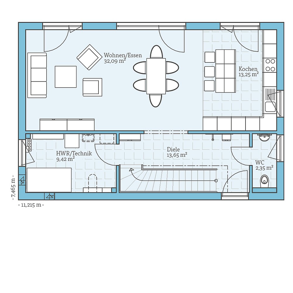
Floor plan
example
Get an impression of this house through the floor plans. We will show you our planning suggestions, which of course can be customised on request.
We have also prepared some interesting planning options for this house. Click through them and see for yourself which variants we have come up with.

What our clients say about our houses
references

Request without obligation & free of charge our prefabricated house catalog with detailed information about the company as well as all house designs or construction performance and equipment descriptions. In addition, you will find the prices for our campaign houses in our campaign brochure.






![[Translate to Englisch:] [Translate to Englisch:]](/fileadmin/_processed_/f/0/csm_Familie_Frech_Haus_96ada4ce11.jpg)







