Komfortables Wohnen auf kompakter Fläche
Das QNG⁺-Line Reihenhaus 113 nutzt den vorhandenen Platz optimal und hält gleichzeitig die laufenden Kosten gering. Trotz kompakter Grundfläche bietet es dank cleverer Planung mit zwei Vollgeschossen genug Raum für eine vierköpfige Familie.
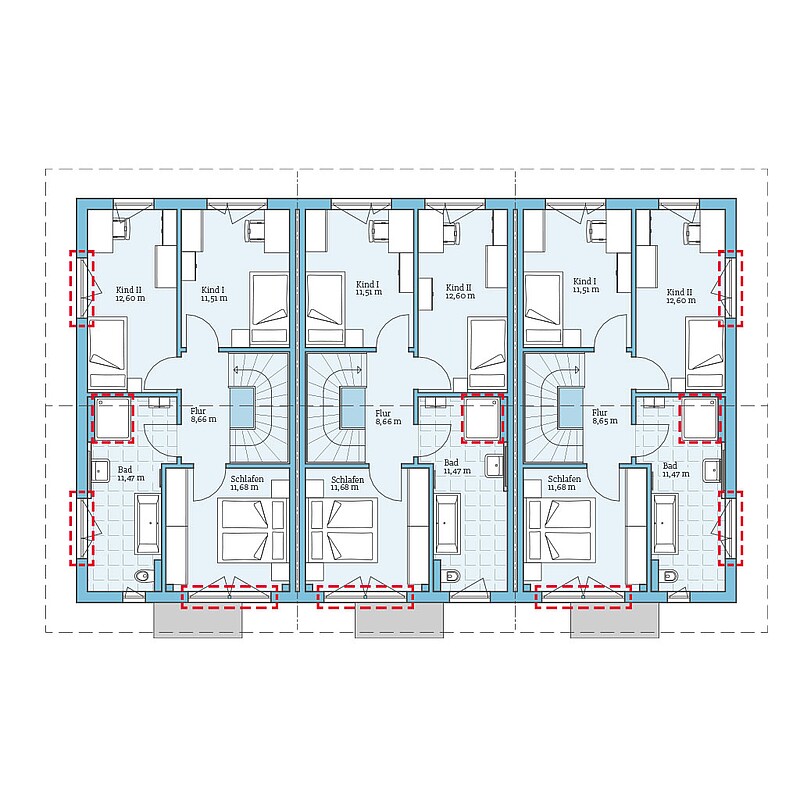
Im Erdgeschoss befindet sich der zum Garten ausgerichtete Wohn-, Ess- und Kochbereich, ergänzt durch ein Gäste-WC und einer Garderobe. Das Obergeschoss umfasst zwei Kinderzimmer, ein Elternschlafzimmer mit viel Schrankfläche und ein helles Bad.
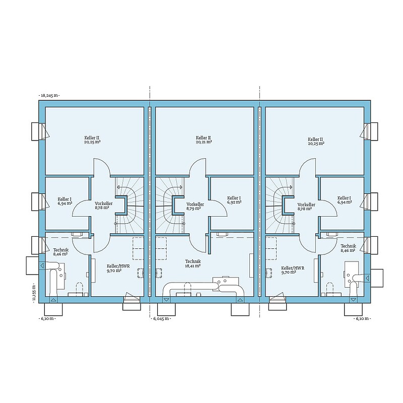
Ein optionaler Keller schafft zusätzlichen Platz: Der Technik- und Hauswirtschaftsraum wandert ins Untergeschoss, sodass im Erdgeschoss Raum für ein Gäste- oder Arbeitszimmer entsteht.
Bis zu 10 % sparen dank serieller Fertigung:
- Ausbauhaus:
Reihenendhaus ab 231.240 €; Reihenmittelhaus ab 225.933 € - Technikfertig:
Reihenendhaus ab 286.474 €; Reihenmittelhaus ab 281.087 € - Fast Fertig:
Reihenendhaus ab 300.611 €; Reihenmittelhaus ab 295.027 € - Schlüsselfertig:
Reihenendhaus ab 328.236 €; Reihenmittelhaus ab 322.342 €
Ihr Vorteil:
Wir können garantieren, dass Ihr Fertighaus aus der QNG+-Line unter Einhaltung bestimmter Vorgaben eine QNG-Zertifizierung erhält. So ist die höchste Förderstufe der KfW-Förderung Wohneigentum für Familien möglich – mit zinsgünstigen Krediten für eine erleichterte Finanzierung.
Info:
Abbildungen und Grundrisse enthalten Sonderausstattungen und Anbauten, die nicht im Grundpreis enthalten sind.
| Merkmale | |
|---|---|
| Dachform | Satteldach |
| Dachneigung | 25° |
| Wohnfläche | 107,06 m² |
| Grundfläche | 113,61 m² |
| Anzahl Geschosse | 2 |
Ihr Plus an Komfort
Serielle Fertigung mit Flexibilität – auch ohne individuelle Planung stehen Ihnen bei unseren Häusern aus der QNG+-Line einige Planungsoptionen offen:
Erdgeschoss
- Größere und/oder zusätzliche Fenster im Wohn-, Ess- und Kochbereich
- Terrassentür statt Fenster im Wohn-, Ess- und Kochbereich
- Größere Terrassentür im Wohn-, Ess- und Kochbereich
- Abstellraum unter der Treppe
- Duschbad statt Gäste-WC
- Haustürvordach
- Mit Keller: Arbeits- oder Gästezimmer statt Hauswirtschafts- und Technikraum
Obergeschoss
- Größere Fenster im Badezimmer und/oder Schlafzimmer
- Größere Dusche im Badezimmer
- Größerer Dachüberstand
Optionales Kellergeschoss
- mit zwei Kellerräumen, Vorkeller, Technikraum sowie einem Hauswirtschafts- oder zusätzlichen Kellerraum
Beispiel-
Grundrisse
Bekommen Sie durch die Grundrisse einen Eindruck von unserem Fertighaus aus der QNG⁺-Line.
Voraussetzung für die serielle, günstigere Fertigung ist, dass an den vordefinierten Grundrissen nur bestimmte Änderungen vorgenommen werden können. Entdecken Sie die möglichen Planungsoptionen für diesen Hausentwurf:

Fordern Sie ganz unverbindlich & kostenfrei unser Fertighaus-Katalog mit ausführlichen Hinweisen zum Unternehmen sowie alle Hausentwürfe oder Bauleistungs- und Ausstattungsbeschreibungen an. Darüber hinaus erhalten Sie in unserer Aktionsbroschüre die Preise für unsere Aktionshäuser.















