An eye-catcher from inside and outside
In this design, the main apartment is located in a two-storey villa with a hipped roof. The granny flat is housed in a separate, single-storey extension with a pent roof. Since the granny annexe stands on its own in terms of planning, it can also be easily adapted to other property designs and scheduled accordingly. In the main apartment there is space for almost 90 m² of living space on the ground floor. The dining area can be expanded with a small extension. This planning option makes the dining area appear even more spacious and also spices up the house from the exterior.
| Characteristics | |
|---|---|
| Roof form | Hipped roof, Pent roof |
| Roof inclination | hipped roof 25°/ pent roof 5° |
| Living space granny flat | 48,19 m² |
| Living space main dwelling | 169,38 m² |
| Base area granny flat | 48,19 m² |
| Base area main dwelling | 177,06 m² |
| Number of floors | 2 |
possible
extensions
- extension with flat roof
floor plan
example
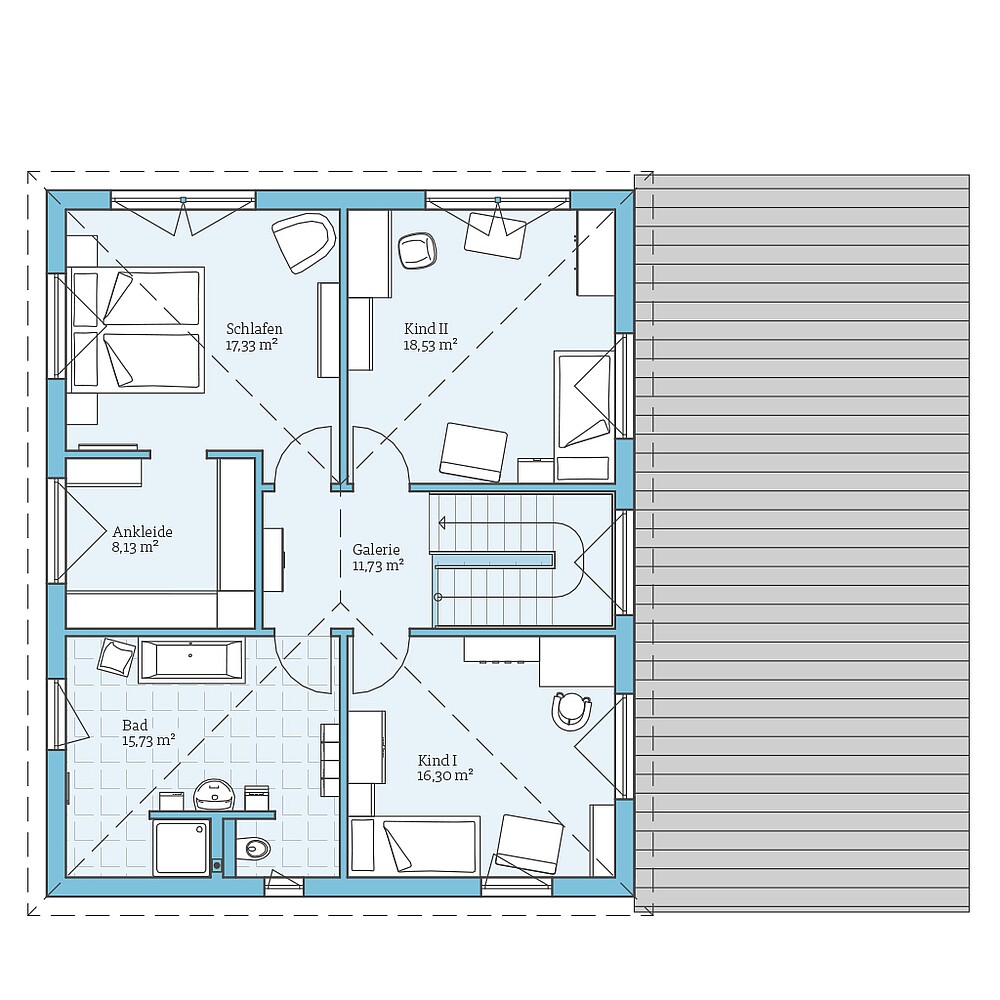
Get an impression of this house through the floor plans.
We will show you our planning suggestions, which of course can be customised on request.
We have also prepared some interesting planning options for this house. Click through them and see for yourself which variants we have come up with.


Request without obligation & free of charge our prefabricated house catalog with detailed information about the company as well as all house designs or construction performance and equipment descriptions. In addition, you will find the prices for our campaign houses in our campaign brochure.













