Small house, big spatial wonder
Variant 25-135 impressively shows how true spatial wonders can be built on smaller plots. Thanks to the thoughtful planning of this compact pitched roof house, these houses are really fun.
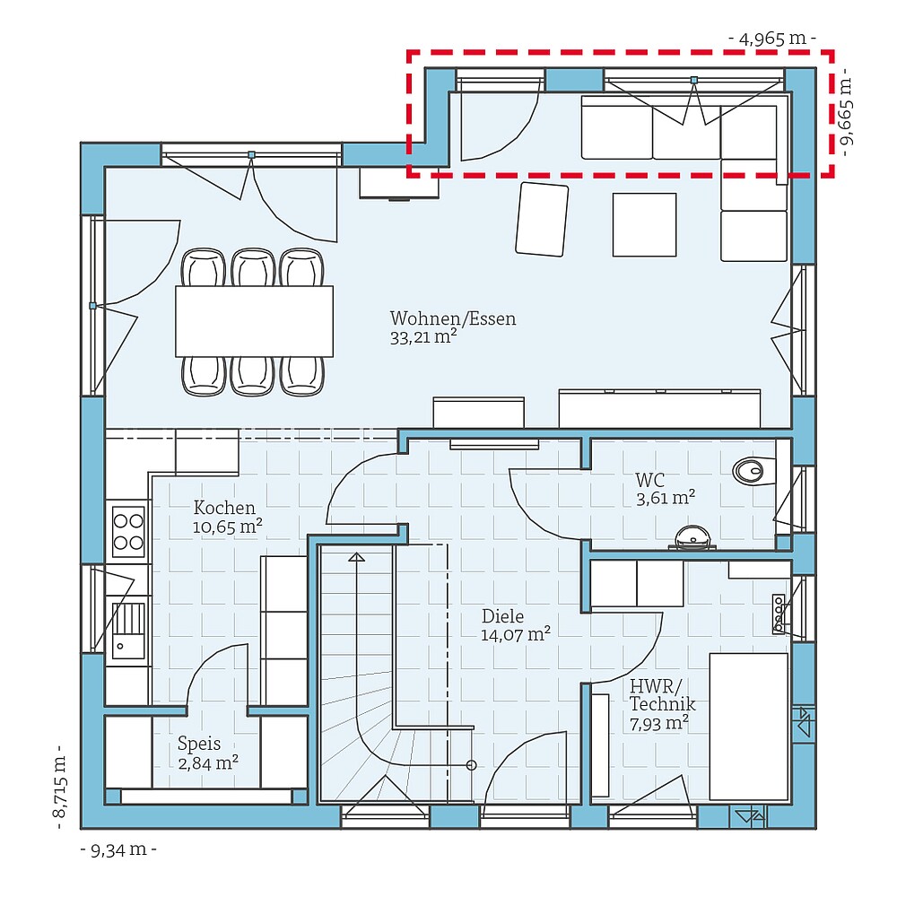
The spacious, light-drenched living, dining and kitchen area, a separate guest toilet and the large bathroom in the loft offer pleasant living comfort and make the house a place of well-being for a family of up to four. The utility/heating system room on the ground floor makes it possible to save money by building this model without a basement.
| Characteristics | |
|---|---|
| Roof form | Pitched roof |
| Roof inclination | 25 ° |
| Jamb wall | 200 cm |
| Living space | 124,74 m² |
| Base area | 133,86 m² |
| Number of floors | 1,5 |
Possible
extensions:
- Bay window
Floor plan
example
Get an impression of this house through the floor plans. We will show you our planning suggestions, which of course can be customised on request.
We have also prepared some interesting planning options for this house. Click through them and see for yourself which variants we have come up with.

What our clients say about our houses
references

Request without obligation & free of charge our prefabricated house catalog with detailed information about the company as well as all house designs or construction performance and equipment descriptions. In addition, you will find the prices for our campaign houses in our campaign brochure.







![[Translate to Englisch:] [Translate to Englisch:]](/fileadmin/_processed_/f/0/csm_Familie_Frech_Haus_96ada4ce11.jpg)







