Discover semi-detached house floor plans
It's often not easy to find the perfect floor plan for your dream home. We have therefore designed some floor plans to inspire you. But of course we will plan your new detached house according to your wishes and needs - and there are no limits to individuality. The list of floor plans is sorted in ascending order of total size.
Semi-detached house floor plans with 123 m² of floor space – planning option dwarf gable
Semi-detached house floor plans with 124 m² of floor space – planning option basement
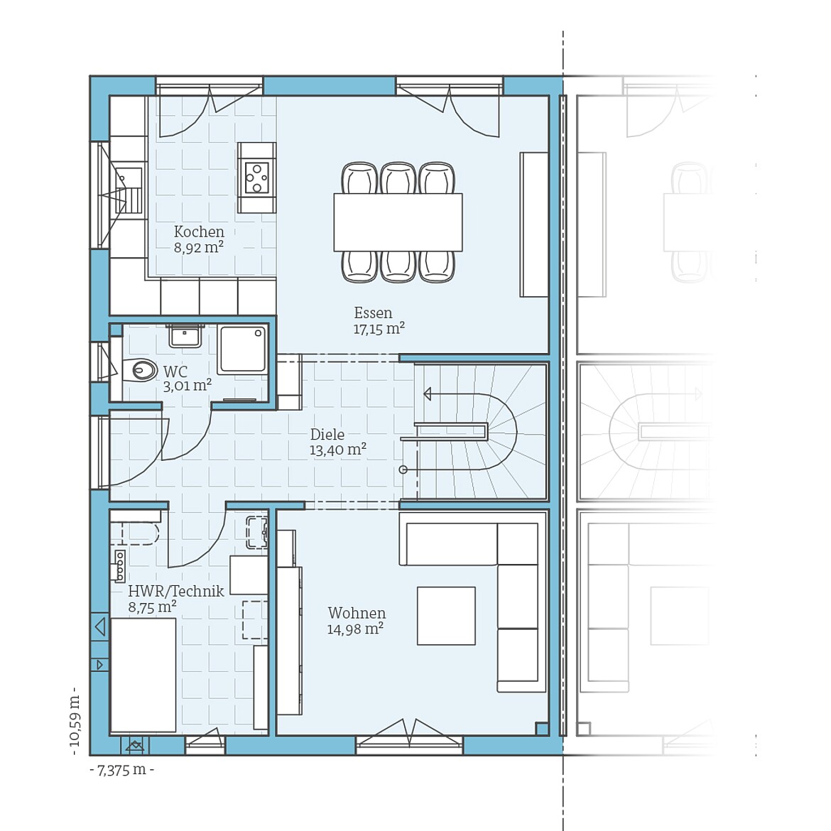
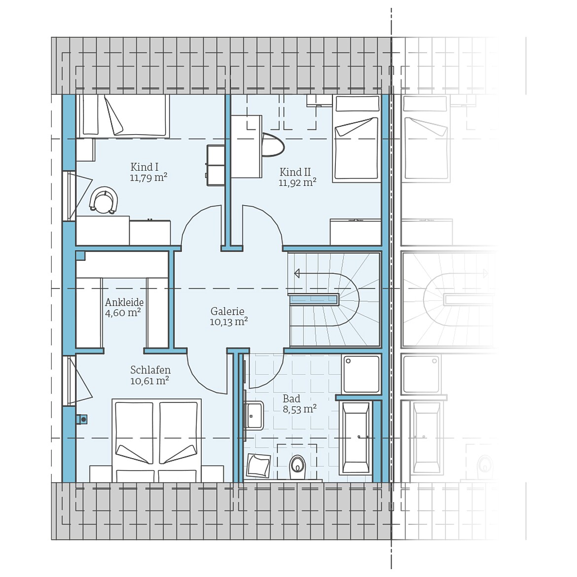
Semi-detached house floor plans with 126 m² of floor space – planning option basement
Semi-detached house floor plans with 130 m² of floor space – planning option dwarf gable
Semi-detached house floor plans with 135 m² of floor space – planning option loggia
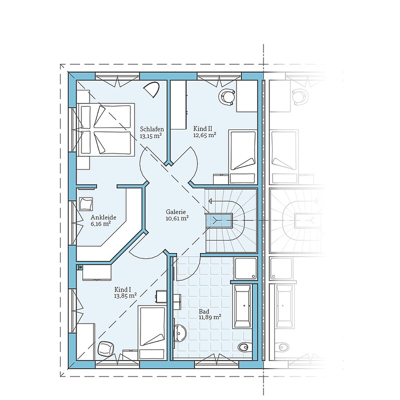
Semi-detached house floor plans with 131/138 m² of floor space – planning option dwarf gable & balcony
Semi-detached house floor plans with 138 m² of floor space – planning option conservatory
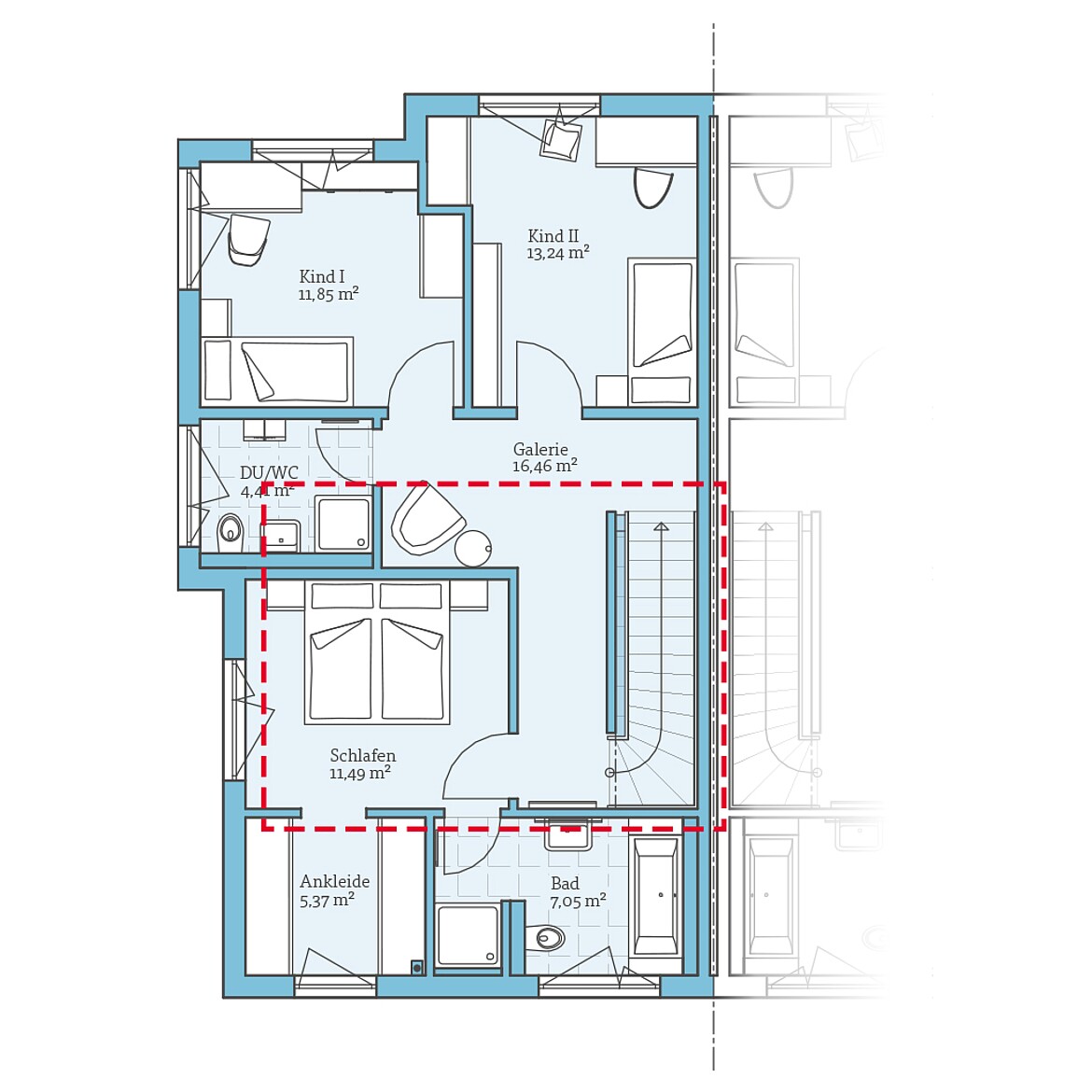
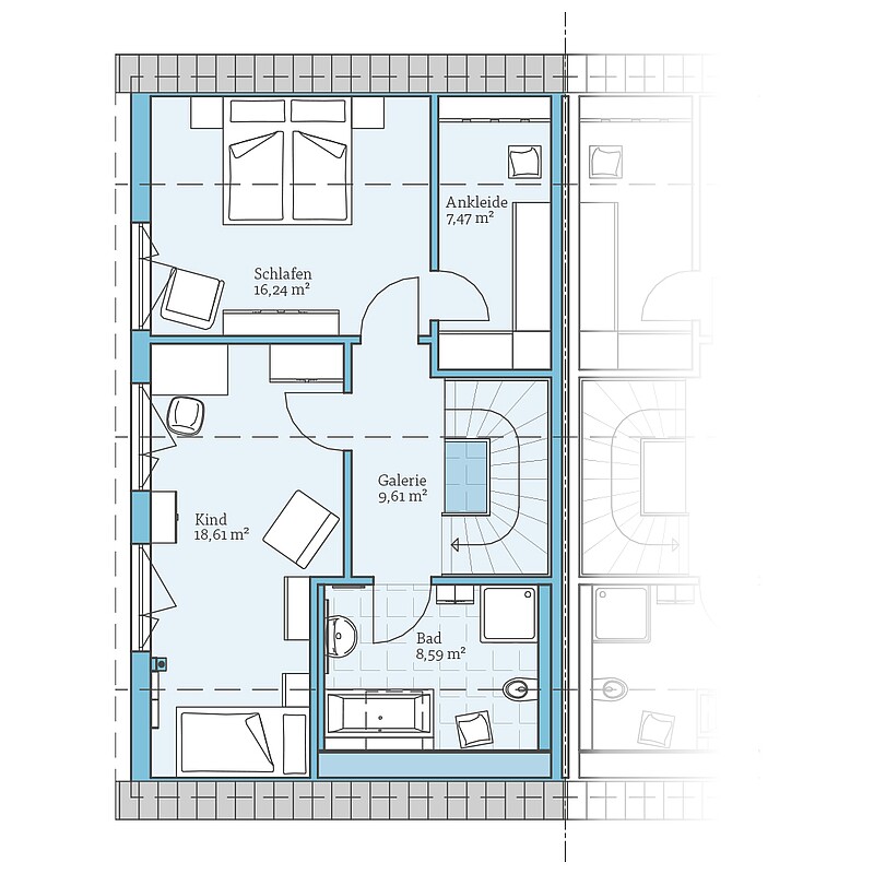
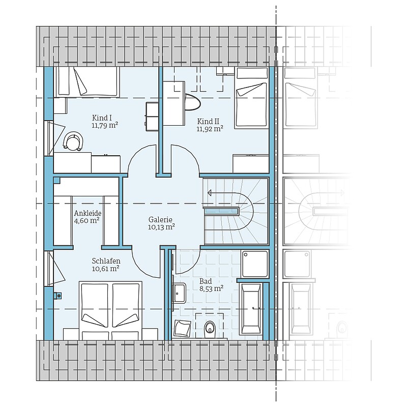
Semi-detached house floor plans with 143 m² of floor space – planning option 2nd floor & roof terrace
Semi-detached house floor plans with 164 m² of floor space – planning option front door canopy
Semi-detached house floor plans with 174 m² of floor space


Floor plans for semi-detached houses
A semi-detached house does not necessarily consist of two identical or at least similar houses that are built directly next to each other, so that wall to wall is adjacent and the overall structure is often perceived as a single house.
Although most of our 11 tips for a perfect house layout also apply here, the proximity to the neighbours results in some special features when planning.
Important information about our semi-detached house floor plans
Finding the optimum orientation for a semi-detached house is not quite as easy as for a detached house, especially if both halves are built symmetrically.
- If the dividing wall of the house runs vertically along the north/south axis, the centre of the house with the living room, dining room and terrace can be oriented towards the south. The party in the east can have breakfast in the morning sun, but towards the afternoon the sun disappears behind the house in the west. For the other party, it is the other way round - no sun in the house in the morning, but in the evening.
- With a north/west - south/east orientation, the party in the west receives sunlight much earlier in the day and into the evening hours, but for the party in the east the sun disappears much earlier behind the corner of the building.
- One option is to plan the semi-detached houses in a staggered arrangement so that light enters certain parts of the house at all times of the day. This arrangement also gives both parties more privacy, e.g. on the terrace.
- The wider the house, the smaller the windowless wall to the neighbour and the brighter you can make your living space.
To ensure that living together wall to wall is harmonious, you should consult with your neighbours when planning.
- Your own wishes: Are your individual wishes compatible or do they hinder each other? To what extent can compromises perhaps even benefit both parties?
- Basement: Are both parties planning with or without a basement? Different construction methods can lead to higher costs.
- Heating system: Are you planning to have two separate heating systems or one for reasons of economy and space saving?
- Terraces & balconies: Privacy is a valuable asset. If you coordinate in advance, you can plan your garden access in such a way that two largely separate living spaces are created.
- Car parking spaces: Here too, prior agreement usually makes life easier. Garages or carports can be planned/built together or parking spaces can be combined into one large parking area.
If you are interested in building a semi-detached house, consider building the entire property and renting out one half. This way, you can choose your own neighbours and have the option of having family members move in next door at a later date.
- One of the four exterior walls has no windows. The entrance area, stairs, storage rooms or the toilet are preferably located here.
- To avoid problems with sound insulation, the bedrooms should not be planned along the partition wall.
- As a rule, your semi-detached house has two sides with strong sunlight; make the most of this to ensure sufficient daylight in your living areas.
Find an alternative to our semi-detached house floor plans here:
Request without obligation & free of charge our prefabricated house catalog with detailed information about the company as well as all house designs or construction performance and equipment descriptions. In addition, you will find the prices for our campaign houses in our campaign brochure.







































